Pasir Ris 8
8 Pasir Ris Drive 8
S$ 1,600,000
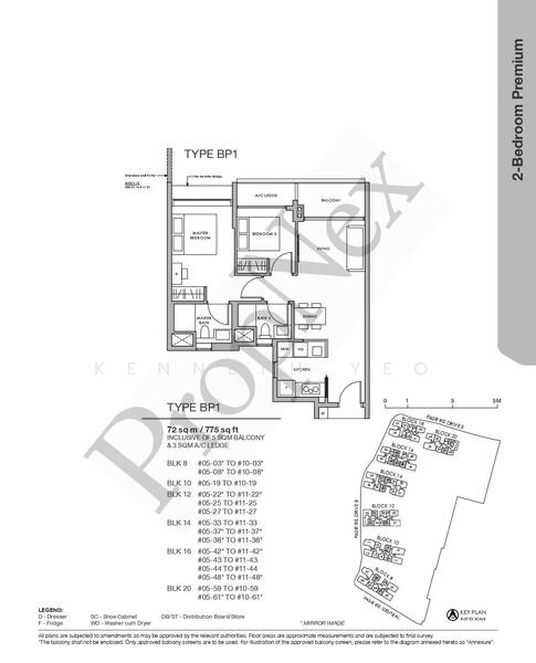
2
Beds
2
Baths
775
sqft (floor)
S$ 2,065
psf (floor)
380 m (5 mins) from EW1/CP1/CR5 Pasir Ris MRT
About this property
C.H.E.A.P ! C.H.E.A.P ! C.H.E.A.P !
Living room facing North East
No extension needed
109m to Pasir Ris MRT
2 schools within 1km
7 groceries within 1km
4 malls within 1km
Amenities
Air conditioner
Balcony
Bedroom cabinets
Covered car parking
Common facilities
24 hours security
Adult fitness stations
Basement car park
Car park
Affordability
Tell us your monthly income and expenses to see if this home fits your budget.
Pasir Ris 8

Pasir Ris 8 is a 99-year leasehold integrated development located at 12 Pasir Ris Drive in District 18 (D18). With the last integrated development in Pasir Ris being Bedok Residences which TOP-ed in 2015, Pasir Ris 8 is a rare new gem in the neighbourhood. With the Pasir Ris MRT (EW1) right at their doorsteps, Pasir Ris 8 residents enjoy unrivalled access to the East-West Line (EWL) which connects directly to the Changi Airport, Raffles Place, and the Central Business District (CBD). Commuters can also conveniently switch over to various train networks at the interchange stations along the EWL. Furthermore, residents also get ready access to healthcare, dining, and retail options in the comfort of their homes. Pasir Ris 8’s strongest selling point is its transport accessibility. The integrated development is connected to an air-conditioned bus interchange on the first floor that is served by 20 bus networks and an underground linkway leading to the upcoming Cross Island Line (CRL). With the completion of Phase 1 of the CRL in 2029, residents get significantly reduced travel time when travelling directly from Pasir Ris to Hougang and Ang Mo Kio. For drivers, it is conveniently located near the Tampines Expressway (TPE), which connects residents to the Orchard shopping belt and the CBD in under half an hour. In addition to shops and F&B establishments in the adjoining Pasir Ris Mall, residents also get convenient access to healthcare and childcare services within the mall. Study Pavilion Co-working Pavilion Reading Pavilion Chillout Corner Swing Pavilion Clubhouse Party Room Gourmet Kitchen Song Room 1&2 Co-working Lounge Club Lounge Poolside BBQ Pavilion Jacuzzi Lounge Party Room Interactive Playroom Fountain Waterplay Foggy Waterplay Children’s Pool Pool Deck Adventure Pool Children’s Play Area Wall Climb Toddler Playground Grill Area The Lawn Sensory Garden Reflexology Path Urban Farm Greenhouse Pavilion Yoga Deck Open Gym Zen Pavilion East Spring Primary School East Spring Secondary School Elias Park Primary School (within 1km radius) Gongshang Primary School Hai Sing Catholic School Meridian Primary School Meridian Secondary School Ngee Ann Secondary School Pasir Ris Crest Secondary School Pasir Ris Primary School Pasir Ris Secondary School Park View Primary School Poi Ching School Preschools such as the Little Preschool @ White Sands, Learning Adventure Preschool @ Pasir Ris, and Sunflower Montessori Discovery Ark are near the vicinity. For expatriate families, the UWC South East Asia (East Campus) is also easily accessible. Nearby healthcare facilities include: Pasir Ris Polyclinic Parkway Shenton Medical Clinic Pasir Ris 8 brings retail and dining options right to the doorsteps of its residents with its integrated retail podium. Alternatively, residents can take a short three-minute walk to White Sands Mall for more shops and F&B establishments. Families with children can also take a quick four-minute drive from Pasir Ris 8 to Downtown East. The lifestyle and entertainment hub is packed with facilities such as an indoor skating rink, water park, and a bowling alley for a fun-filled weekend with the kids. Those who enjoy local food can take a six-minute stroll to the Pasir Ris Central Hawker Centre. Pasir Ris 8 is a joint venture between Allgreen Properties and Kerry Properties. Founded in 1986, Allgreen Properties is the real estate arm of the Kuok conglomerate. With a portfolio comprising residential, office, and retail spaces, Allgreen Properties holds a presence in Singapore, China, and Vietnam. Notable projects under their belt include The Cascadia, Blossoms@Woodleigh, and RV Residences. Listed on the Hong Kong Stock Exchange in 1996, Kerry Properties focuses on projects primarily in Hong Kong and China. This condo marks their first venture in Singapore. Sitting on a site area of approximately 409,071.83 sq ft, Pasir Ris 8 is an integrated development comprising commercial and residential components. Amenities worth highlighting include a four-storey podium housing a bus interchange, HDB Town Plaza, and Polyclinic. The Residential component starts from the fourth floor and houses 487 units across seven residential towers of either 10 or 11-storeys high. Units range from 1 to 4-bedroom configurations, with 2 and 3-bedroom units making the majority of the unit mix. Residential blocks are purposefully built facing the North-South direction to minimize exposure to the afternoon sun and to reduce noise levels from the MRT. Unit sizes at the condo are also larger than average so homebuyers seeking out roomier homes have the option of considering a new launch as opposed to resale units. Under the URA Master Plan, new housing developments have been planned for Pasir Ris, including new amenities to support new housing in the area. Pasir Ris 8 will be the newest integrated development in the area, housing a polyclinic, childcare facilities, an integrated transport hub with a retail component, and a town plaza. New developments in the Pasir Ris Water Fabrication Park will create more work opportunities closer to home. With the completion of the CRL, Pasir Ris MRT will become an interchange for both the EWL and the CRL, giving residents enhanced connectivity and reduced travel times to other parts of Singapore. Allgreen Properties and Kerry Properties secured the site with a winning bid of almost $700 million, which works out to $684.48 psf per plot ratio (psf ppr). With Bedok Residences being the last integrated development launched in Pasir Ris almost a decade ago, Pasir Ris 8 will alleviate pent-up demand for integrated properties in the area. All in all, Pasir Ris 8 is a project to be considered given how a substantial pool of upgraders within Pasir Ris and from neighbouring estates such as Tampines, Sengkang, and Punggol will likely keep demand for units strong. Check out Pasir Ris 8 listings for sale and units on rent PropertyGuru Singapore.
View project details



















