Midwood
8 Hillview Rise
S$ 1,980,000
3
Beds
3
Baths
990
sqft (floor)
S$ 2,000
psf (floor)
290 m (4 mins) from DT3 Hillview MRT
About this property
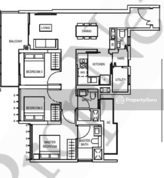
3 bedroom with utility room. North South facing. Pristine condition.
*** 3BR+yard+utility.
** quiet facing, no afternoon sun
*1km to CHIJ Our Lady Queen of Peace, 2km to Bukit Panjang Pri Sch, Zhenghua Pri Sch, St Anthony's Pri Sch.
- 3 bedrooms with utility room and yard area
- corner unit for maximum privacy
- both bathrooms have windows for natural ventilation
- common bedrooms can easily fit queen sized bed or single bed with a study table
- master bedroom can easily fit a king-sized bed
- unit's facing ensures much natural lighting and ventilation
-just next door to HillV2 & within 5mins walk to Hillview MRT (downtown line)
Please WhatsApp 8***** now for your enquiries.
* the owner is selling due to family expansion and needs a bigger space.
* serious seller
Amenities
Air-conditioning
Balcony
Cooker hob/hood
Corner unit
Common facilities
24 hours security
Barbeque pits
Clubhouse
Lap pool
Affordability
Tell us your monthly income and expenses to see if this home fits your budget.
Midwood

MidWood Condo is a collection of 535 glamorous units situated at Bukit Batok vicinity enclosed by lush greenery in District 23. Equipped with five-star facilities and exquisite interior designs, Midwood is expected to be completed by year 2023. The project is developed by Intrepid Investments and Garden Estates, a subsidiary of Hong Leong Holdings and Hong Realty. The unique selling point of Midwood is its strategic location that can offer convenience to its residents in a well-developed private residential estate. Midwood Condo is surrounded by many amenities within easy reach while also being well connected to other parts of Singapore Island. Another highlight is that Midwood is closed to greenery, nature reserves and parks such as Bukit Gombak’s “Little Guilin”, Bukit Batok Nature Park, Dairy Farm Nature Park and Bukit Timah Nature Reserve, serving as an attraction to those who embrace nature. In addition, Midwood offers five-star facilities to its residents comprising of tennis courts, swimming pools, children playground, gymnasium, lap pools and barbeque pits, serving as an avenue for bonding with families and friends. There are also comprehensive shared facilities such as outdoor fitness, sun deck, spa pond, dining pavilion, palm court, kid’s pool with aqua play equipment, stargazing deck and many more for the residents. The residence is situated just 300m away from Hillview MRT station on the Downtown Line which connects to Bukit Timah, past Botanic Gardens, Newton, Marina Bay, Chinatown and Bedok as well as Tampines. The residence is well-connected to Bukit Timah Expressway (BKE) via Hillview Road and across Dairy Farm Road, leading to Seletar Expressway (SLE) or Causeway northwards or southwards to the Pan Island Expressway (PIE). Midwood is 15 minutes’ drive from the Jurong Lake District and 20 minutes from Orchard Road. iO Italian OsteriaJiak Modern Tze CharDean & DelucaKinsa SushiJoyden Canton Kitchen Chestnut Drive Secondary SchoolDazhong Primary SchoolCanadian International SchoolDulwich CollegeBukit Panjang Primary SchoolLianhua Primary SchoolFajar Secondary School Healthway Medical (Bukit Batok)Mary Medical Clinic & SurgeryKoo & Choo Medical Clinic Pte LtdLife 2 Chinese Medical Centre Bukit Panjang PlazaHill V2JemBukit Batok MarketWestgateBukit Timah Shopping Centre Midwood comprise of 564 apartment units in two residential towers soaring 29 storeys high. The development comes with spacious units ranging from 1 bedroom to 5 bedrooms as well as deluxe penthouse. Unit size ranges from 45 square meter to 117 square meter.Project Name: MidwoodType: CondominiumDistrict: 23Configuration: 564 residential unitsSite area: 14,296.1 square meter Unit types for Midwood:1 Bedroom (45 – 46 square meter)1 Bedroom with Study (51 square meter)2 Bedrooms (59 – 65 square meter)2 Bedrooms with Study (72 – 73 square meter)3 Bedrooms (83 – 84 square meter)3 Bedrooms with Yard (92 square meter)4 Bedrooms (116 – 117 square meter) The following developments are in the same neighbourhood as Midwood:Blossom ResidencesThe TenneryThe HillierMidwoodDairy Farm ResidencesKingsford Hillview Peak
View project details