Lentor Modern
Lentor Central
S$ 2,690,000
Negotiable3
Beds
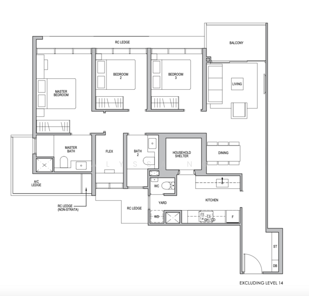
3
Baths
1,130
sqft (floor)
S$ 2,381
psf (floor)
270 m (3 mins) from TE5 Lentor MRT
About this property
Just TOP! Brand New 3 Bedroom Flex. Direct access to MRT & Mall!
Perfect for own-stay. This spacious 3 bedroom of 1,130sqft has a versatile layout, that includes an enclosed kitchen with yard area and a flex room that can be converted to a study or extended walk-in wardrobe. Bright and breezy, with open views.
Enjoy the ultimate convenience of a rare integrated development, with direct access to Lentor MRT (TEL) & Mall right below you. Sheltered convenience and accessibility, rain or shine. Be pampered with a wide range of dining and retail shopping options, including Cold Storage Fresh Supermarket, Guardian and Childcare.
Indulge in the extensive full condominium facilities, that feature Glamping Terrace, 50m and 25m Lap Pools, Dance Studio, Games Room, Indoor and Outdoor Gym, as well as a Tennis Court.
Available for viewing now! Buyers, Sellers and Cobroke welcome.
Common facilities
Car park
Clubhouse
Community garden
Gymnasium room
Affordability
Tell us your monthly income and expenses to see if this home fits your budget.
Lentor Modern

Lentor Modern is a newly launched condominium located in Lentor Central (D26). This 99-year leasehold project is a mixed-use development offering a good combination of commercial options that will be integrated with Lentor MRT station. Lentor Modern sits in the Lentor Hills Estate –– a cosy private enclave largely comprising low to mid-rise condominiums and landed homes. With quite a few parks, reservoirs and nature reserves within the area, residents get to enjoy open unblocked views of the exclusive neighbourhood encircled by lush greeneries. With the integrated Lentor Modern shopping mall right downstairs, residents get to enjoy convenient access to a wide range of shops and services as well as a well-connected train network. A short walk to Lentor MRT station on the Thomson-East Coast Line (TEL) takes residents to various parts of Singapore. In addition to a well-equipped mall, affordable amenities such as wet markets and hawker centres are easily within reach. For those with school going children, Lentor Modern is also within proximity to prestigious schools. Lentor Modern’s hottest selling point is the fact that it is directly connected to the Lentor MRT (TE8) station on the TEL. With the MRT line right at their doorsteps, residents can easily switch to the Circle Line (CCL) at Caldecott (CC17/TE9), the North-South Line (NSL) at Orchard (NS22/TE14), Downtown Line (DTL) at Stevens (DT10/TE11), and the North-East Line (NEL) at Outram Park (NE3/EW16/TE17). The TEL brings Lentor Modern's residents closer to the Orchard Shopping Belt. With the ease of one direct line, those working in the city area can enjoy reduced travelling time to Shenton Way and the Central Business District (CBD). Commuters will also enjoy higher accessibility to other parts of Singapore such as Botanic Gardens and East Coast. For drivers, the development is well served by a highly connected network of arterial roads and expressways. This includes the Central Expressway (CTE) and Seletar Expressway (SLE). The upcoming North-South Corridor (NSC) will also unlock a wider range of public transport services to the North, South, and East of Singapore as well as the Central Business District (CBD). The residents will also be spoilt for choice when it comes to food options in the area. There are several food centres and markets near Lentor Modern such as the 628 Ang Mo Kio Market & Food Centre, Mayflower Market & Food Centre, and Sembawang Hills Food Centre. For those who love a good late-night supper run, the development is just a short drive to popular supper hangouts in Tagore, Springleaf, and Upper Thomson (home to the renown Casuarina Curry). Grand Clubhouse Sun Deck 50m Lap Pool 25m Lap Pool Glamping Terrace Poolside Lounge Poolside Terrace Leisure Pool Spa Pool Jacuzzi Alcove Play Lawn Mini Golf Outdoor Gym Indoor Gym Tennis Court Anderson Primary School CHIJ St Nicholas Girls’ School Mayflower Primary and Secondary School Presbyterian High School Ang Mo Kio Primary and Secondary School Peirce Secondary School Yio Chu Kang Secondary School Other established schools such as Raffles Institution and Catholic High School are also nearby. Tertiary educational institutions near the area include Anderson Serangoon Junior College and Nanyang Polytechnic Nearby healthcare facilities include: SATA CommHealth Ang Mo Kio Medical Centre Ang Mo Kio Polyclinic Ang Mo Kio-Thye Hua Kwan Hospital Healthcare AMK Medical Clinic St Luke’s ElderCare Ang Mo Kio Residence CareDoc Medical Clinic Raffles Medical Ang Mo Kio Life Family Clinic (Ang Mo Kio) Materialising GuocoLand’s vision to have people live, work, and play all at one place in the post-pandemic landscape, residents enjoy unrivalled convenience of having a wide variety of F&B, retail, and service options right at their doorstep. The integrated Lentor Modern shopping mall is set to host 96,000 sq ft of F&B, retail, and service options ranging from cafes and restaurants to supermarkets, childcare centres, and even medical clinics. This means residents and those residing in nearby neighbourhoods can enjoy the perks of heading to a well-furnished mall right at their doorsteps. Those who are open to venturing a little further out of the Lentor Modern neighbourhood can take a 9-minutes’ drive to other heartland malls nearby such as Thomson Plaza and Ang Mo Kio Hub. Lentor Modern is also within reach to various recreational venues and green spaces such as the Yio Chu Kang Stadium & Sports Complex, Lower Peirce Reservoir and Park, Thomson Nature Park, and Bishan-Ang Mo Kio Park. For those who enjoy spending time in nature, cycling and walking paths from the upcoming Lentor Hillock Park will connect the residents to the Lower Seletar Reservoir and the Central Catchment Reserve. GuocoLand Limited, a member of the Hong Leong Group, is one of the most reputable developers in Singapore. Focusing primarily on property management and investment, property development, and hotel operations, GuocoLand has been publicly listed on the Singapore Exchange (SGX) since 1978. With more than 36 residential developments under their belt, GuocoLand has contributed more than 10,000 homes to Singapore’s housing market. GuocoLand’s other reputable projects such as Leedon Residence, Wallich Residence, and Sophia Residence have won environmental sustainability awards such as BCA’s Green Mark Award. Lentor Modern has already been launched for viewing and sale since September 2022. To book a showflat viewing and learn more about the pricing and floor plans, potential buyers can contact Lentor Modern's official development team or listed agents. Sitting on 1.7ha of land, the development is a mixed-use development that is conveniently integrated with Lentor MRT station on the TEL. Lentor Modern comprises three 25-storey blocks housing approximately 605 1 to 4-bedroom residential units. Respective towers come with their own double volume sky terrace. For those who are big on picturesque views when seeking out homes, all three residential towers in the development are intentionally spaced apart to maximise unblocked views of nature facing the Lower Seletar Reservoir Park surrounding the homely neighbourhood. The URA Draft Master Plan 2019 seeks to rejuvenate well established neighbourhoods such as Ang Mo Kio with new housing projects and amenities to create more liveable and inclusive communities. Lentor Modern is situated within the new Lentor Hills neighbourhood that is conveniently located near the upcoming Lentor MRT station. Planned around an existing hillock, the Lentor Hills estate will feature new parks (such as the upcoming Lentor Hillock Park), seamless pedestrian and cycling routes between Teachers Estate and Lentor MRT station, as well as added commercial amenities for the community. The completion of the TEL will also further boost the investment potential of Lentor Modern. Residents will enjoy higher connectivity and shorter commuting times. Newly integrated transport hubs will also help facilitate seamless inter-modal transfers so Ang Mo Kio will become even more accessible to those commuting between the city centre and the north of Singapore. Guocoland was awarded the Government Land Sales tender of Lentor Hills with its top offer of S$784.1 million, which works out to S$1,204 per sq ft per plot ratio (psf ppr). The Ang Mo Kio/ Lentor area is an established estate with many amenities easily within walking distance. The neighbourhood is also highly connected to the rest of Singapore via an efficient transport network and park connectors. As a rare new condominium launched in the Lentor-Upper Thomson enclave after more than a decade, Lentor Modern sold 84% of its units on launch day. The strong demand for private non-landed houses from HDB upgraders and first-time home buyers amidst diminishing supply makes the development a best-selling project in 2022. Upcoming developments under URA’s plans will further boost accessibility and enhance connectivity in the area, stimulating the property value for Lentor Modern. This gives the development a high potential to make a forever home or for enjoying capital appreciation in the long term. Check out Lentor Modern for sale listings and units for rent on PropertyGuru Singapore.
View project details




























