Lakeville
11 Jurong Lake Link
S$ 2,650,000
Negotiable4
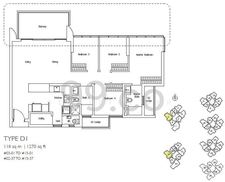
Beds
3
Baths
1,270
sqft (floor)
S$ 2,087
psf (floor)
560 m (7 mins) from EW26 Lakeside MRT
About this property
Spacious 4 Bedroom for Sales
Enjoy easy access to essential amenities with Lakeside MRT Station just 1.1 km away, ensuring seamless connectivity to the rest of Singapore. Families will appreciate the proximity to top educational institutions such as the Canadian International School (0.7 km) and Hua Yi Secondary School (0.9 km). For your shopping needs, FairPrice Jurong West St 41 is a mere 1.2 km away, while the vibrant Jurong Central shopping mall is just 1.4 km from your doorstep, providing a variety of retail and dining options.
This well-appointed unit features elegant cabinets for ample storage, a cozy balcony perfect for relaxation, and air conditioning to keep you cool during the warm Singapore days. Safety is paramount, with a dedicated security guard ensuring your peace of mind at all times. Additionally, covered car parking is available for your convenience.
Whether you are a growing family or an investor seeking a prime property, this condominium offers an exceptional opportunity to own a slice of Singapore's vibrant landscape. Don’t miss out on this chance to elevate your lifestyle in this beautiful home. Schedule a viewing today and experience all that this remarkable property has to offer!
call for an exclusive viewing with Geraldine @ 9731...
Amenities
Air conditioner
Balcony
Bed
Cabinets
Common facilities
24 hours security
Drop off point
Lift lobby
Main entrance
Affordability
Tell us your monthly income and expenses to see if this home fits your budget.
Lakeville

LakevilleLakeside is a residential development with a prime location in District 22. Jurong Lakeside is set to undergo major redevelopment transforming the area into an exciting waterfront destination. Lakeville has the added advantage of giving many of its residents panoramic views of the lake without having to leave the comfort of their own homes. As well as 3 commercial units Lakeville has 696 residential units ranging from 1 bed up to 4 and 5 bed penthouses, as well as 4 bed dual key units. Lakeville is just 5 minutes’ walk from Lakeside MRT Station on the Eat West Line, meaning commuters can be in the CBD in a little over half an hour. MCL Land is a leading property group with a long track record of building quality homes over the last 40 years. A member of the Jardine Matheson Group under Hongkong Land Holdings, it holds an impressive portfolio of prime residential developments in Singapore and Malaysia.Lakeville – Unique Selling PointsThe overriding advantage that Lakeville has in its favour is its location. Jurong Lakeside has been earmarked for drastic changes with many waterfront amenities due to transform the area into a much sought after area to work, play and live. Lakeville is in a prime position overlooking the lake, meaning that many of the residents will enjoy panoramic water views without leaving the comfort of their own home. Lakeville is also in easy walking distance to two MRT stations on the East West Line, and a short drive from several good shopping malls.Lakeville – AccessibilityLakeville is between 2 MRT stations: Lakeside and Chinese Garden, both on the East West Line, and a 5 and 8-minute walk respectively. The CBD in the shape of City Hall and Raffles Place is just over 30 minutes train ride away. There are several high quality shopping malls in the vicinity, but none in walking distance. There is a hawker centre, several shops and a good array of eating options in easy walking distance of Lakeville, and of course there are 3 commercial units on its premises. For drivers, the PIE is a quick and easy drive from the development.Lakeville - Amenities & AttractionsDining near Lakeville:Al Ayza RestaurantVegetarian VillasJurong West 505 Food CentreYi Jia Le Wah Chye Seafood RestaurantShopping near Lakeville:Boon Lay Shopping CentreJurong PointWestgateJEMSchools and Education near Lakeville:Shuqun Primary SchoolRulang Primary SchoolHong Kah Secondary SchoolYuhua Secondary SchoolFuhua Secondary SchoolCanadian International SchoolLakeville - Project informationLakeville is a residential development located in the soon to be revamped Jurong Lakeside area. The development is made up of six 16 storey towers, and has 696 residential units as well as 3 commercial ones. Lakeville has a good variety of unit types, sizes and configurations, ranging from 1 bedders up to 4 and 5 bed penthouses. The 4 bed units come in either standard, dual key, penthouse and penthouse + study. Kitchen appliances are Fisher & Paykel and Electrolux, while bathroom fixtures and fittings are by Grohe. Regarding facilities, Lakeville offers all the ones you would expect including a tennis court, gym and aqua gym and a 50 metre lap pool.Project Name: LakevilleAddress: Jurong Lake LinkSite area: Approx. 240,662 sqftTenure: 99 yearsDistrict: 22Configuration: 696 unitsUnit types:31 x 1-bedroom units (560 – 592 sqft)288 x 2-bedroom units (635 – 872 sqft)247 x 3-bedroom units (872 – 1,324 sqft)88 x 4-bedroom units (1,281 – 1,464 sqft)16 x 4-bedroom Dual Key units (1,475 – 1,668 sqft)15 x 5-bedroom units (1,528 – 1,862 sqft)4 x 4-bedroom penthouse units (1,981 – 2,056 sqft)6 x 4-bedroom + study penthouse units (2,228 – 2,271 sqft)1 x 5-bedroom penthouse unit (2,680 sqft)Parking lots:696 normal lots7 handicapped lotsExpected TOP: January 2018Expected legal completion: January 2021Lakeville - Historical DataAs of September 2015, the number of caveated transactions at Lakeville stood at 496, with only 500 of the total number of 696 units released at that point. The prices for those sales ranged from $732K to $2.669M with just 74 of those coming in at $1.5M and above. With regards to the caveated prices for Lakeville, from that sales data we see that the 1, 2, 3 and 5 bed units were at $1,348 psf, $1,373 psf, $1,259 psf and $1,312 psf respectively. With the 4 bed units, they are split between standard, dual key, penthouse and penthouse + study with the respective median prices of $1,239 psf, $1,209 psf, $1,164 psf and $1,192 psf.Lakeville - Related ProjectsThe following projects are by the same developer as Lakeville:Lake GrandeSol AcresHallmark ResidencesLakeville - Nearby ProjectsThe following developments are in the same neighbourhood as Lakeville:CaspianThe LakeshoreThe MayfairParc VistaLakefront Residences
View project details












