Jade Residences
1 Lew Lian Vale
S$ 1,224,000
Negotiable2
Beds
1
Bath
614
sqft
S$ 1,993
psf
710 m (9 mins) from NE12/CC13 Serangoon MRT
About this property
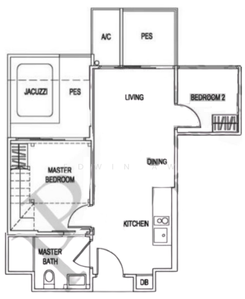
Rare Freehold 2B1B Loft Unit! Walk to MRT and Malls!
- 2 Bed 1 Bath with Loft
- Rare ground floor unit with enclosed private patio for outdoor dining (Ziptrak installed)
- 3.5m high ceiling enhances natural lighting and creates a more spacious feel
- Dedicated walk-in wardrobe
- Tastefully renovated with smart, built-in storage
- Condo Facilities include swimming pool & jacuzzi, gym & fitness corners, BBQ pavilion
Connectivity and Conveniences
- 5 min walk to Serangoon MRT (CCL/NEL) and NEX Mall, with tons of eateries, supermarkets within 700m
Schools:
- Within 1 km from Maris Stella High School, Paya Lebar Methodist Girls' School and Yangzheng Primary School
Contact Serene at 8.9.2.8.5.8.1.5 for an exclusive viewing!
Amenities
Air conditioner
Audio system
Balcony
Barbeque pavilion
Common facilities
Car park
Affordability
Tell us your monthly income and expenses to see if this home fits your budget.
Jade Residences

Jade Residences is a freehold apartment development nestled within the upmarket Serangoon/Thompson neighbourhood of District 19. Jade Residences by development Roxy Residential Pte Ltd comprises a total of 171 residential units spread over 5 storey and was completed in 2017. Given that is it strategically located within a upmarket neighbourhood, Jade Residences has the advantage of convenience and residences can access ample amenities such as transportation, eateries and more. Jade Residences is a short stroll away from the Serangoon MRT station and the Serangoon Bus Interchange. Jade Residences is a freehold development rendering it the preferred choice for buyers. In addition to that it is centrally located within an upmarket neighbourhood of Thompson and Serangoon near the city fringe, making commuting seamless islandwide. It is a short distance from the nearest transportation hub – Serangoon MRT and Serangoon Bus Interchange. The development is also low density with less than 200 units making it exclusive and private. Not to forget, Jade Residences is developed by a respected local developer, Roxy Residential Pte Ltd, a subsidiary of Roxy Holdings Ltd. Jade Residences offers a myriad of facilities residents such as a 50 meter swimming pool, drop off area,grand promenade,aqua playground, pool deck, water jet fountain, dining pavilion,function rooms, gym,children’s playground,marine and garden features,jogging trail, children’s pool,BBQ area, family lawn,outdoor fitness zone, outdoor reading corner,steam room, 24 hours security and car park. As Jade Residences is strategically located it is no doubt that is it easily accessible via major roads, expressway and public transportation such as the Central Expressway (CTE),Upper Serangoon Road, Upper Paya Lebar Road, Bartley Road and Lorong Ah Soo. Jade Residences is a short stroll from the Serangoon MRT and Serangoon Bus Interchange whilst the Kovan MRT and Bartley stations are also not too far away. Other public transportation like buses and taxis are easily available around this area. Kovan & Hougang Market & Food CentreSerangoon Gardens Market & Food CentreChomp Chomp Food CentreSushi TeiPasta Mania Smartgro Tiny TotsCatalyst Infant & Child CareLearning Kidz Child Development CentreYoung Kids Child Care Maris Stella High School (Primary/Secondary)Paya Lebar Methodist Girls’ SchoolYangzheng Primary SchoolCedar Primary ShoolZhonghua Primary School St Gabriel’s Secondary SchoolZhonghua Secondary SchoolYuying Secondary School Nanyang Junior CollegeSerangoon Junior College DPS International SchoolStamford American International SchoolAustralian International School Upper Serangoon Shopping CentreNEX Shopping MallHeartland Mall Prime SupermarketCold Storage NEXMr Kwek StoreFairPrice Xtra Nex MallGood Luck Provision Shop Kovan Sports CentreSerangoon Gardens Country ClubSerangoon Sunshine ParkBoundary Road ParkSerangoon Stadium Jade Residences is a freehold apartment development nestled within the upmarket Serangoon/Thompson neighbourhood of District 19. Jade Residences by development Roxy Residential Pte Ltd comprises a total of 171 residential units spread over 5 storey and was completed in 2017. Project Name: Jade ResidencesTenure: FreeholdType: ApartmentDistrict: 19Developer: Roxy Residential Pte Ltd (Roxy-Pacific Holdings Limited)Completed: 2017 Unit Types:2 bedroom – 527 – 581 sft x 62 units3 bedroom – 732 -829 sft x 32 units3 bedroom (dual key) -861-914 sft x 14 units4 bedroom (dual key)-1119 – 1270 sft x 29 units2 bedroom Penthouse -1011-1141 sft x 15 units3 bedroom Penthouse -1291 -1421 sft x 8 units3 bedroom (dual key) Penthouse -1550-1700sft x 4 units4 bedroom (dual key) Penthouse – 1862 – 1926 sft x 4 units The following developments are by the same developer as Jade Residences:Arena ResidencesNova 48The AzzuroHaig 162Space@Kovan The Florence ResidencesAffinity At SerangoonRiverfront ResidencesLa FiestaKingsford WaterbaySengkang Grand Residences
View project details
















