J Gateway

6 Gateway Drive

S$ 1,590,000

Starting From

Beds

2

Beds

Baths

2

Baths

sqft

958

sqft

auto-size-o

S$ 1,660

psf


400 m (5 mins) from NS1/EW24/JE5 Jurong East MRT


photo

Photos

floorplan

Floor Plan

map

Map View

Property details

home-open-o
Condominium for sale
furnished-o
Unfurnished
document-with-lines-o
TOP in May 2017
calendar-days-o
99-year lease
calendar-time-o
Listed on 17 Apr 2026
document-with-lines-o
Listing ID - 60245989

About this property

Call now to enquire

Discover an exceptional opportunity to own a modern condominium in the vibrant District 22. J Gateway offers a sleek and contemporary living space with 2 bedrooms plus a dedicated study, perfect for young professionals and first-time buyers seeking comfort and versatility. This property is a mortgagee sale, presenting a compelling purchase at SGD 1,590,000, reflecting excellent value in a sought-after location.

Constructed in 2017, this unit is situated at 6 Gateway Drive, with a leasehold tenure of 99 years. The property boasts a thoughtfully designed layout, featuring two bathrooms and a functional living area that maximizes space for a comfortable lifestyle. Its strategic position opposite JEM Mall and Jurong East MRT interchange provides unparalleled connectivity and convenience.

This active listing offers a prime opportunity to invest in a sought-after Singapore address. Whether as a first home or a strategic investment, J Gateway combines affordability with premium location advantages, making it an ideal choice for discerning buyers looking to capitalize on the thriving Jurong East precinct.

Disclaimer: Pictures are for illustration purposes only. The actual unit may vary.
Amenities
layers-2-o

Ground floor

asterisk-o

Outdoor patio

Affordability

Can I afford this property?

Tell us your monthly income and expenses to see if this home fits your budget.

Mortgage breakdown
Est. monthly repayment
S$ 0 / mo
0%
0%
S$ 0 Principal
S$ 0 Interest
Upfront costs
Total downpayment
S$ 0
0%
0%
Downpayment
S$ 0 Loan amount at 0% Loan-to-value

S$
S$
%
Yrs
Key to home analytics
Track this home's value
Get insights on past sales, rentals, and value trends for this home
trend iconTrack now

J Gateway

Project Image

J Gateway is a leasehold condominium that is located at Gateway Drive in District 22. It is a newly developed high rise condominium building. The project was completed in the year 2017 with a total of 738 units available for sale or rent. The condominium is located close to public transportation that allows residents to move easily from one place to another from the condominium. There are many shops and amenities close to the condominium which would ease the process for residents and they do not need to go far to find what they need. The project was developed by MCL Land (Gateway) Pte Ltd, a big-scale real estate organization that has undertaken around 28 real estate projects in Singapore. The company’s aim is to innovate, create and connect where they are constantly pursuing to build homes that are innovate and creative for their customers. - J Gateway is a beautiful condominium that has many charms to it. There are various facilities that residents can enjoy while living in J Gateway. Residents of J Gateway would not have to travel far to get their basic necessities. Residents can enjoy the swimming pool, lap pool, children’s pool, Jacuzzi, function room, meeting room, tennis court, indoor and outdoor gymnasium, barbeque are, dining pavilion and children’s playground. There is a number of public transportation close to J Gateway that residents can make use of. The closest MRT station to J Gateway is Jurong East MRT Station. The closest bus stops are located at Jurong East MRT Station, Block 203, Seventh-Day Adventist Church and IMM Building. For those with vehicles, the business hub and shopping district located at Orchard Road can be easily accessed via the Ayer Rajah Expressway in 18 minutes. Miam Miam French Japanese Café KitchenZaffron Kitchen WestgateOh My CaféMen Don TeiBeng Hiang RestaurantFuhua Primary SchoolShuqun Secondary SchoolYuhua Primary SchoolMy First Skool at WestgateSpring College InternationalUnity West GateOutpatient & Retail PharmacyEu Yan SangWatsonsGuardianWestgateJCube Shopping MallBig Box SingaporeKuriyaFairPrice Xtra JEMFairPrice Jurong Gateway RoadGiant IMMMumbai Mart J Gateway is a condominium development that is made up of a total of 738 units in a 38 storey building. There are 6 unit types available with various layouts that residents can browse through. The sizes for the units range between 474 square feet to 2,024 square feet. The layouts for the units in J Gateway aim to provide residents with homes that is comfortable for working adults, couples or families looking to own a spacious and manageable condominium unit. The selling price for the units in J Gateway ranges between S$ 840,000 to S$ 3,200,000. The rental price for the units ranges between S$ 2,500 to S$ 8,200. Project Name: J GatewayType: CondominiumDistrict: 22Configuration: 738 residential units Unit Types:1 bedroom Suite (474 sqft – 506 sqft)2 bedrooms Suite (689 sqft – 721 sqft)3 bedrooms Suite (893 sqft – 1076 sqft)4 bedrooms Suite (1163 sqft – 1,432 sqft)3 bedrooms Penthouse (1,485 sqft – 1,658 sqft)4 bedrooms Penthouse (1,905 sqft – 2,024 sqft) The following are projects that have been developed Wing Tai Holdings Ltd, the developer of J Gateway:Lake GrandeMargaret VilleMera Springs The following developments are in the same neighborhood as J Gateway:J GatewayLakevilleThe LakeshoreThe Lakefront ResidencesThe CentrisCaspian

View project details
By continuing, you agree to the Terms & Privacy Policy
FAQs
The sale price of this unit at J Gateway is S$ 1,590,000.
Current PSF at J Gateway is about S$ 1,659.71 psf.
The estimated loan repayment is S$ 4,662 / mo.
J Gateway is located at 6 Gateway Drive Boon Lay / Jurong / Tuas West (D22-24).
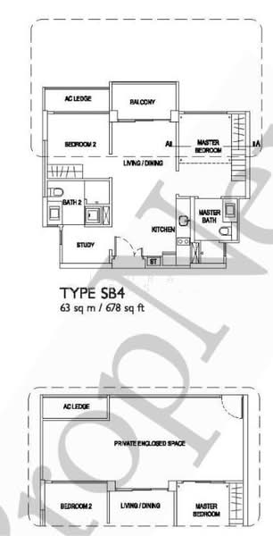
Floor size of this unit at J Gateway is 958 sqft.
By continuing, you agree to the Terms & Privacy Policy