Hillhaven
5 Hillview Rise
S$ 2,250,000
3
Beds
2
Baths
1,141
sqft (floor)
S$ 1,972
psf (floor)
380 m (5 mins) from DT3 Hillview MRT
About this property
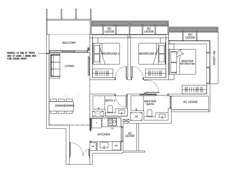
Spacious 3-Bedroom Condo at Hillhaven
Key Features & Highlights:
** ~4-minute walk to Hillview MRT station (Downtown Line), offering direct connectivity into the CBD, and transfers to many other lines.
** Quick access by car to major expressways: BKE & PIE to reach all parts of Singapore efficiently.
** Surrounded by nature: Bukit Timah Nature Reserve, Dairy Farm Nature Park, Bukit Batok Town Park, and Hindhede Nature Park all just a short drive or cycle away.
** Shopping & Dining: Right next door to HillV2, close to The Rail Mall, Hillion Mall, Junction 10, West Mall, Bukit Panjang Plaza / Market & Hawker Centre.
** Education: Nearby schools include CHIJ Our Lady Queen of Peace (<1km), Lianhua Primary, Bukit Panjang Primary, St. Anthony’s Primary, Dazhong Primary. For secondary/international options, German European School and other established institutions are within easy reach.
** Facilities & Project Info: Hillhaven comprises two towers (27 & 28 storeys), approx. 341 units. Expected TOP in Q3 2027. Features include full condominium facilities — pool, gym, outdoor / indoor leisure areas. Some units offer natural ventilation kitchens, study / hobby spaces.
This 3-bedroom unit offers a well-thought-out layout with enough space for family living, home office, and entertaining. With amenities, green spaces, and schools all around, it’s ideal for families seeking both comfort and convenience.
Common facilities
Accessible washroom/shower
Adult fitness stations
Aircon facilities
Alfresco dining
Affordability
Tell us your monthly income and expenses to see if this home fits your budget.
Hillhaven

Hillhaven is a 99-year leasehold condominium located at 5 Hillview Rise in District 23 (D23). Tucked in a tranquil private residential enclave, Hillhaven is within walking distance of a plethora of amenities including the Hillview Community Club and the HillV2 mall. Hillhaven‘s proximity to Hillview MRT station (DT3) on the Downtown Line (DTL) also makes it a desirable option for property buyers who are big on accessibility and convenience. Situated in an area with an abundance of nature parks and reserves, the development also gives residents easy access to green spaces such as the Rail Corridor, Bukit Timah Nature Reserve, Bukit Batok Town Park, Dairy Farm Nature Park, and Hindhede Nature Park. Hillhaven is just a five-minute walk to Hillview MRT station (DT3) on the DTL. The DTL offers residents direct access to key employment and commercial nodes such as Bayfront and Bugis. With two Integrated Transport Hubs at Beauty World MRT station (DT5) and Bukit Panjang MRT station (DT1) just a few stops away, residents get to enjoy a wider range of dining and retail options at the well-equipped neighbourhood malls and eateries in both areas. Upon completion of the Cross Island Line (CRL) in 2032, residents can also conveniently switch over to the CRL at King Albert Park MRT station (DT6). For drivers, it is a three to five-minute drive to expressways such as the Bukit Timah Expressway (BKE) and the Pan Island Expressway (PIE). These expressways give drivers quick access to major commercial and employment hubs such as Jurong Lake District, Woodlands Regional Centre and Downtown Singapore. Sitting on a site area of approximately 140,760 sq ft, Hillhaven houses 341 exclusive residential units across two tower blocks of 27 storeys and 28 storeys high, respectively. The land parcel is squarish with both residential towers perched in the south of the plot., Hillhaven’s facilities are also interestingly segregated from the residential towers. Tropical Palm Garden Exercise Lawn Lobby Garden Urban Farm Ginger Garden Garden Walk Garden Alcove Biker’s Corner Bicycle Parking Central Lawn BBQ Pavilion 1 BBQ Pavilion 2 50m Lap Pool Outdoor Gym Pool Deck Gym Rock Climbing Kids Pool Playground Pickleball Court Changing Room Function Room Alcove Garden Spa Garden Lounge Decks Reflective Pond Floating Decks Alfresco Decks Lounge Deck Party Pavilion Reading Corner Assumption English School Bukit Panjang Primary School CHIJ Our Lady Queen of Peace Dazhong Primary School Fajar Secondary School Hillgrove Secondary School Lianhua Primary School St Anthony Primary School Swiss Cottage Secondary School Zhenghua Primary School For expatriate families, international schools such as the German European School Singapore, Dimension International College (Bukit Timah Campus), Hollandse School Swiss School, and the Singapore Korean International School are all just a short drive. Nearby healthcare facilities include: Phoenix Medical Group (Hillview) Smilearts Dental Studio (Hillview) United Medicare (Elizabeth Dr) Pte Ltd Hillhaven is a short three-minute walk to HillV2 - a mixed-development housing Cold Storage, enrichment centres as well as F&B, retail, and service outlets. Alternatively, residents can take a 10-minute walk to the Rail Mall. Located right beside Dairy Farm Nature Park, the former railway station has been given a facelift and is now home to trendy cafes, restaurants and shops. For more retail and dining options, residents can also take a short train ride to Bukit Panjang to check out Hillion Mall, Bukit Panjang Plaza, and Junction 10. Alternatively, take a one-station train ride to explore Beauty World - home to several long-standing neighbourhood malls such as Beauty World Centre, Beauty World Plaza, Bukit Timah Shopping Centre, and Bukit Timah Plaza. The completion of The Reserve Residences in 2028 will add another mall in the vibrant neighbourhood. Those who enjoy local delights can check out the Beauty World Centre Hawker Centre, Bukit Timah Food Centre, and the eateries along Cheong Chin Nam Road. Hillhaven is a joint venture between the Far East Organisation and Sekisui House. Both established developers have jointly developed other reputable projects, such as Boathouse Residences and One Holland Village Residences. Far East Organisation is the largest private-owned property developer in Singapore. Notable projects under their belt include The Reserve Residences and Parksuites. Sekisui House is a reputable Japanese real estate developer. Sekisui collaborates with local developers to create value-added projects that meet the lifestyle needs of the demographics. Units range from 2 to 4-bedroom configurations, with 2-bedroom units making up more than half of the total units. More specifically, 3-bedders come with layouts to maximise efficient use of space. The attached study room in selected 3-bedders can also be converted into a home office or extra room. 4-bedders come equipped with a master bedroom, junior master bedroom, and 2 other bedrooms - perfect for homebuyers with big families. Residents will benefit from developments both within and beyond Bukit Batok. Under URA’s master plan, developments have been put in place to enhance community living, boost connectivity, and offer new lifestyle options to enhance the investment potential of properties in the area. Residents will enjoy the establishment of new public and private housing precincts complemented with accessible community amenities and healthcare facilities. New green spaces, such as the 4.8-hectare Bukit Gombak Park, equipped with fitness areas, an open lawn, and a dog park, have been added to the existing parks surrounding the vicinity. Residents will also enjoy greater job opportunities closer to home with the opening of commercial nodes, industrial estates, and business parks in the nearby JLD. The completion of the JRL, specifically with the addition of two new stations - Tengah Park and Bukit Batok West will significantly boost connectivity to other parts of Jurong, further reinforcing the condo’s investment potential. Far East Organisation and Sekisui House secured the site with a winning bid of $320.78 million, which works out to $1,024 psf per plot ratio (psf ppr). Hillhaven presents residents with a highly convenient abode with its proximity to the Hillview MRT station, two ITHs, a wealth of amenities, choice schools, and easy access to key employment nodes. For those looking at purchasing Hillhaven from an investment standpoint, the development’s location in an area surrounded by HDB estates makes for access to a good pool of potential HDB upgraders. Check out Hillhaven listings for sale and units for rent on PropertyGuru Singapore.
View project details



















