Copen Grand
Tengah Garden Walk
S$ 1,602,999
4
Beds
3
Baths
1,184
sqft
S$ 1,354
psf
450 m (5 mins) from JS3 Tengah MRT
About this property
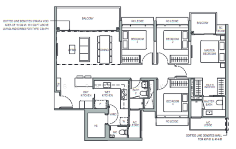
4 Bedroom Executive Condominium - Copen Grand
Spanning 1184 sqft, this property offers comfort and modern living.
Convenience is at your doorstep:
- Pioneer Primary School (1.9 km)
- M.Y World @ Tengah Garden Court (1.7 km)
- Sheng Siong Supermarket (1.6 km)
- Giant Supermarket (1.6 km)
- Plantation Plaza (1.5 km)
- Plantation Village Retail Street (1.3 km)
The condominium boasts fantastic amenities including a Gymnasium room, Swimming pool, Clubhouse, Playground, and 24-hour security, ensuring a vibrant and secure lifestyle for you and your family.
Don't miss this opportunity to own a piece of luxury in a prime location!
Act now and make this your new home today!
Common facilities
24 hours security
Car park
Children's playground
Clubhouse
Affordability
Tell us your monthly income and expenses to see if this home fits your budget.
Copen Grand

Situated in the heart of Singapore’s first smart and sustainable town, Copen Grand is an executive condominium (EC) located in Tengah. This 99-year leasehold luxury EC in the west of Singapore offers 639 units of various configurations. The District 24 project is spearheaded by Taurus Properties SG, a wholly-owned subsidiary of City Developments Ltd and MCL Land.Tengah is set to be Singapore’s premier smart and sustainable town and Copen Grand will be the first ever luxury EC in this future-forward neighbourhood. Copen Grand residents will be spoilt by the unrivalled convenience of the public transport system in the area with not just one, but three MRT stations on the upcoming JRL. There is also a new bus interchange in the works.Another plus point is that the excellent transport infrastructure grants Copen Grand residents easy access to not only the rest of the island, but also two economic hubs outside of Singapore’s city centre. Namely, the Jurong Lake District – the largest commercial and regional centre outside the Central Business District (CBD) – as well as the Jurong Innovation District, a new hub for advanced manufacturing in Jurong West.With Copen Grand being less than a six-minute walk to three MRT stations along the new Jurong Regional Line (JRL) – Tengah MRT Station, Hong Kah MRT Station, and Tengah Plantation MRT station – future residents are impeccably connected to the public transportation network. To be more specific, Copen Grand is conveniently connected to both the North-South Line and East West Line via the JRL. Tengah MRT station is a short two-station ride away from Choa Chu Kang MRT Interchange. Conversely, Hong Kah MRT station is four stations away from Boon Lay MRT station while Tengah Plantation MRT station is just four stations away from Jurong East Interchange that links commuters directly to the CBD area (via City Hall and Tanjong Pagar MRT stations).The only catch is that JRL is still in the works but the stations are set to open between 2026 and 2027. These dates coincide with when Copen Grand is expected to receive its Temporary Occupation Permit (TOP). This way, homeowners can immediately reap the benefits of the new MRT network upon collecting their keys.For those who prefer commuting by bus over train, a new Tengah Boulevard Bus Interchange located close to the junction between Tengah Boulevard and Tengah Park Avenue will be constructed.For those who driver, Copen Grand is conveniently located beside the Kranji Expressway (KJE) and Pan-Island Expressway (PIE). Orchard Road and the CBD are both less than a 30-minute drive away.Copen Grand is a 12-block residential development with 639 units of three, four, and five bedroom apartments spread across 14 stories on a site with a land area of 22,020.8 sq m. Residents enjoy free access to eco-friendly facilities and communal spaces such as function rooms for meetings, the Tree Top Gourmet for hosting guests, as well as rejuvenating spa pools and infinity pools surrounded by lush landscaping. These facilities are spread across the 1st, 4th, and 5th stories of the development.The site is also designed to maximise cross-ventilation between buildings. Each unit has in-built smart home features and fittings. Units come with enclosed balconies with well selected glass specifications to minimise internal heat gain of spacesCopen Grand offers residents a wide selection of facilities. With the Tengah area still undergoing further developments, Copen Grand’s facilities would help to mitigate the short term lack of entertainment options in the vicinity. Notable facilities found in Copen Grand include a Co-working space, Entertainment Room, Games Room, Music Room, Yoga Studio, Dance Studio, and a Pets Club.While condos typically only sport basement car parks, Copen Grand features both a basement and multi-storey car park which will provide 516 carpark lots, comprising 6 Electric Vehicle charging stations for powering up sustainable transport.In line with Tengah being an eco-friendly town, Copen Grand also comes equipped with built-in photovoltaic systems that harness solar energy to provide partial energy replacement for the clubhouse, function room, swimming pool, and gymnasium.Copen Grand is conveniently located near some of the major malls close to Tengah. Visitors can shop for daily necessities and more all in one place at:West MallHillV2Lot One MallJEMIMMWestgateFor quick grocery runs, residents can head to these supermarkets and convenience stores nearby:Giant Express at 491 Jurong WestFairprice at Jurong WestGiant Super at Sunshine PlacePrincess Elizabeth Primary SchoolShuqun Primary SchoolDazhong Primary SchoolJurong Primary SchoolRulang Primary SchoolDunearn Secondary SchoolBukit Batok Secondary SchoolSwiss Cottage Secondary SchoolHua Yi Secondary SchoolJurongville Secondary SchoolMillenia InstituteIchiban Montessori and Greenery Childcare CentreACS (Primary) is also set to move from Barker Road to Tengah from 2030City Developments Ltd (CDL) is a listed international property and hotel conglomerate with a network spanning across 106 locations. It has a strong presence in 29 countries and regions. In addition to holding a track record of being part of 22,000 luxurious and quality homes, CDL has also been at the forefront of green building innovation in the industry since the 1990s. Furthermore, MCL Land, another reputable developer and member of the Jardine Matheson Group under Hongkong Land Holdings Limited, has been building quality homes in Singapore and Malaysia over the last 50 years. MCL Land has notable projects such as Palms @ Sixth Avenue, Sol Acres EC, Hallmark Residences, and Parc Esta in Singapore. In 2022, CDL and MCL Land collaborated in a joint venture to develop Piccadilly Grand, a mixed-use integrated development directly connected to Farrer Park MRT station.Copen Grand has already been launched for viewing and sale since October 2022. Potential buyers can reach out to Copen Grand’s featured agents to book a showflat viewing and to find out more information about available units and selling prices.The URA Master Plan reveals a detailed plan and vision to develop Tengah into Singapore’s first sustainable smart town, which makes Copen Grand an exciting project to look out for. According to the URA Master Plan, Copen Grand is conveniently located close to the upcoming Jurong Innovation District and Jurong Lake District.Taurus Properties, a 50:50 joint venture between City Developments Limited (CDL) MCL Land, submitted the highest bid of $400.3 million, for the land plot. This works out to a $603 per sq ft per plot ratio (psf ppr). Unit type, size and indicative price range:807 sq ft - From $1.08 million936 to 969 sq ft - From $1.18 million1,001 to 1,012 sq ft - From $1.28 million1,184 sq ft - From $1.48 million1,259 to 1,282 sq ft - From $1.58 million1,518 to 1,561 sq ft - From $1.88 millionOn the whole, Copen Grand EC is expected to receive healthy demand from property seekers. As with other ECs, property prices in District 24 are likely to rise in the short - to medium-term, especially since the Singapore government is stepping up efforts to revamp the western side of the island. In addition, Copen Grand is in a developing new town full of promising future developments such as a bus interchange, sports centre, community club, and polyclinic. Three MRT stations along the Jurong Regional Line are within walking distance, which adds value to the project, further increasing its appeal among buyers and investors. Moreover, there are various schools within 2km of the development. Residential projects within close proximity of educational institutions have the tendency to command higher prices as home seekers with school going children may seek out such properties. Check out all available Copen Grand units for sale or rent on PropertyGuru.
View project details










