🌟BRAND NEW BUNGALOW IN EAST COAST FOR CAR LOVERS 🚗
S$ 11,180,000
6
Beds
8
Baths
4,570
sqft (land)
S$ 2,446
psf (land)
850 m (10 mins) from TE28 Siglap MRT
About this property
Brand New Freehold Bungalow in East Coast, Long Driveway, TOP Obtained
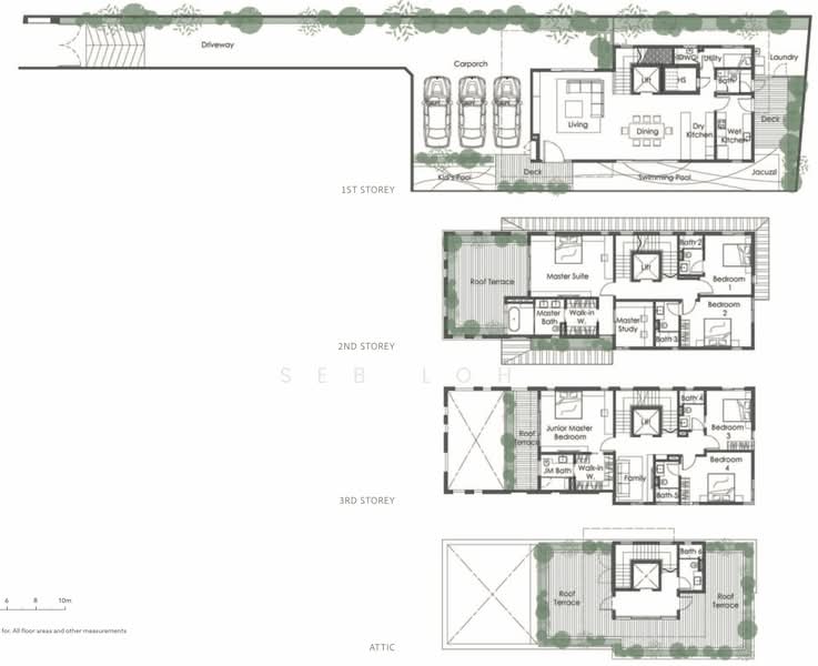
Set within the highly sought-after East Coast landed enclave, this brand new freehold bungalow presents a rare combination of privacy, scale, and refined living. Designed for discerning homeowners who appreciate both presence and functionality, this residence stands out with its distinctive long driveway—creating a sense of arrival while offering enhanced privacy away from the main road.
Positioned on a land size of approximately 4,570 sqft with an expansive built-up of close to 9,000 sqft, the home spans 3.5 storeys and has been thoughtfully planned to accommodate modern multi-generational living.
The long private driveway is a defining feature of this property, ideal for car enthusiasts or owners who value additional space and a more exclusive set-back from the street. With the ability to accommodate up to 8 cars, it offers a level of convenience and flexibility rarely found in landed homes.
Inside, the residence features six well-appointed bedrooms and 7+1 bathrooms, ensuring comfort and privacy for every member of the household. The layout is designed to balance openness and functionality, with generous living and dining areas suitable for both daily family life and hosting.
Key Highlights:
• Brand new bungalow with TOP obtained – immediate move-in
• Freehold tenure in prime District 15 East Coast
• Unique long driveway enhancing privacy and exclusivity
• Car porch capacity of up to 8 cars
• 6 bedrooms with 7+1 bathrooms – ideal for large or multi-generational families
• 3.5 storeys with expansive and efficient layout
• Built-up of approximately 8,996 sqft
This is a rare opportunity to own a brand new bungalow in District 15 that offers both lifestyle appeal and long-term value, ready for immediate occupation.
Contact Seb @ 8.8.6.2.8.9.8.8 today for an exclusive viewing.
Positioned on a land size of approximately 4,570 sqft with an expansive built-up of close to 9,000 sqft, the home spans 3.5 storeys and has been thoughtfully planned to accommodate modern multi-generational living.
The long private driveway is a defining feature of this property, ideal for car enthusiasts or owners who value additional space and a more exclusive set-back from the street. With the ability to accommodate up to 8 cars, it offers a level of convenience and flexibility rarely found in landed homes.
Inside, the residence features six well-appointed bedrooms and 7+1 bathrooms, ensuring comfort and privacy for every member of the household. The layout is designed to balance openness and functionality, with generous living and dining areas suitable for both daily family life and hosting.
Key Highlights:
• Brand new bungalow with TOP obtained – immediate move-in
• Freehold tenure in prime District 15 East Coast
• Unique long driveway enhancing privacy and exclusivity
• Car porch capacity of up to 8 cars
• 6 bedrooms with 7+1 bathrooms – ideal for large or multi-generational families
• 3.5 storeys with expansive and efficient layout
• Built-up of approximately 8,996 sqft
This is a rare opportunity to own a brand new bungalow in District 15 that offers both lifestyle appeal and long-term value, ready for immediate occupation.
Contact Seb @ 8.8.6.2.8.9.8.8 today for an exclusive viewing.
Amenities
Air conditioner
Balcony
Barbeque pavilion
Bicycle parking
Common facilities
Covered car park
Family lounge
Swimming pool
Affordability
Can I afford this property?
Tell us your monthly income and expenses to see if this home fits your budget.
Mortgage breakdown
Est. monthly repayment
S$ 0 / mo
S$ 0 Principal
S$ 0 Interest
Upfront costs
Total downpayment
S$ 0
Downpayment
S$ 0 Loan amount at 0% Loan-to-value
FAQs
The sale price of this unit at 🌟BRAND NEW BUNGALOW IN EAST COAST FOR CAR LOVERS 🚗 is S$ 11,180,000.
Current PSF at 🌟BRAND NEW BUNGALOW IN EAST COAST FOR CAR LOVERS 🚗 is about S$ 2,446.39 psf.
The estimated loan repayment is S$ 32,783 / mo.
🌟BRAND NEW BUNGALOW IN EAST COAST FOR CAR LOVERS 🚗 is located at East Coast / Marine Parade East Coast (D15-16).
Floor size of this unit at 🌟BRAND NEW BUNGALOW IN EAST COAST FOR CAR LOVERS 🚗 is 8,996 sqft.
Explore other options in and around East Coast / Marine Parade
Based on the property criteria, you might be interested on the following
Bungalow House For Sale
Nearest MRT Stations











