Boulevard 88
86 Orchard Boulevard
S$ 8,300,000
3
Beds
4
Baths
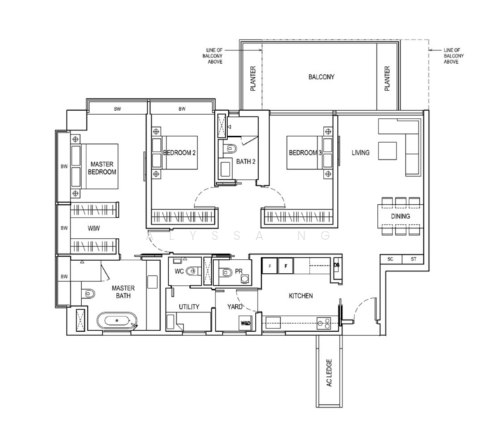
1,776
sqft (floor)
S$ 4,673
psf (floor)
480 m (6 mins) from TE13 Orchard Boulevard MRT
About this property
Freehold 3 Bedroom Along Orchard Boulevard. Fully Furnished I.D. Unit!
• Freehold trophy address along Orchard Boulevard
• Designed by world-renowned Architect, Moshe Safdie
• Luxurious facilities including sky terrace, infinity pools & Concierge Services
• Direct access to Orchard Road shopping belt
• Short walk to the upcoming Orchard Boulevard MRT (TEL)
Contact me for any enquiries or viewings.
Common facilities
24 hours security
Car park
Drop off point
Lift lobby
Affordability
Tell us your monthly income and expenses to see if this home fits your budget.
Boulevard 88

Boulevard 88 is a freehold condominium development that is located at Orchard Boulevard in District 10. It is a condominium project that was completed recently. The project was completed with a total of 154 units available for sale or rent. The condominium development is located close to public transportation that allows residents to move easily from one place to another from the condominium. There are many shops and amenities close to the condominium development which would ease the process for residents and they do not need to go far to find what they need. The project was developed by City Developments Limited, a very large sized real estate company listed on Singapore Exchange and it has undertaken 80 other property projects in Singapore. - Boulevard 88 is a beautiful condominium development that has many charms to it. There are various facilities that residents can enjoy while living in Boulevard 88. Residents of Boulevard 88 would not have to travel far to get their basic necessities as everything is close within their reach. Residents can enjoy easy access to the condominium as there are lift lobbies as well as designated drop off point to avoid traffic in the compounds of the condominium. Residents can enjoy taking evening walks around the condominium development while enjoying the sun set. The condominium comes equipped with car parks and 24 hours security system that ensures the safety of residents is well taken care of. There is a number of public transportation close to Boulevard 88 that residents can make use of. The closest MRT station is Orchard MRT. The closest bus stops are located at The Regent Singapore, Delfi Orchard, Grange Residences, Orchard Boulevard, Cliveden at Grange and Royal Plaza on Scotts. For those with vehicles, the shopping district located at Orchard Road can be easily accessed via Orchard Road and Grange Road in 5 to 10 minutes. Etonhouse International Pre School ClaymoreIss International SchoolKindernomics School Private LimitedRaffles Girls' SchoolThe Excelerate Program Hard rock CaféMuddy Murphy’s Irish PubThe Rice TableLes AmisWild Honey Bites & BracesChow Surgery Pte LtdDr Basanti Sankaran & AssociatesDr Chia Boon Hock ClinicThe Sen Clinic Cold Storage Orchard HotelTanglin Market PlaveValu Dollar Fire SaleKate’s MartCold Storage Takashimaya Boulevard 88 is a condominium development that is made up of a total of 154 units of 28-storey condominiums. There are 4 types of units available with various layouts that residents can browse through. The size of the units ranges between 1,313 square feet to 6,049 square feet. The layouts for the units in Boulevard 88 aim to provide residents with homes that is comfortable for working adults, couples or families looking to own a spacious and manageable condominium unit. The sale price for the units can go up to S$ 35,000,000. Project Name: Boulevard 88Type: CondominiumDistrict: 10Configuration: 154 residential units Unit Types:2 bedrooms (1,313 sqft)3 bedrooms (1,776 sqft)4 bedrooms (2,766 sqft – 2,799 sqft)5 bedrooms (5,673 sqft – 6,049 sqft) The following developments were developed by the same developer as Boulevard 88:The TapestryNew FuturaOne Shenton The following developments are in the same neighborhood as Boulevard 88:Boulevard 88d'Leedon (Former Farrer Court)Nouvel 18Royalgreen3 Orchard By-The-ParkFourth Avenue Residences
View project details















