Altura
111 Bukit Batok West Ave. 8
S$ 1,686,999
4
Beds
3
Baths
1,206
sqft (floor)
S$ 1,399
psf (floor)
1.3 km (16 mins) from JE2 Tengah Park MRT
About this property
Direct Developer Sale! Register For Update On The Next Bounce Out Unit
CALL Barry Chew 8***** Get Free Floor-plans / e-Brochure, Best Price, Viewing, Fix a Showroom Appointment Now!
Register interest now to be on VVIP Waitlist and get priority for Developer Bounced Out units
3-4 bedrooms available
Be the first to ballot for available units!
Common facilities
24 hours security
Aqua gym
Car park
Pool deck
Affordability
Tell us your monthly income and expenses to see if this home fits your budget.
Altura

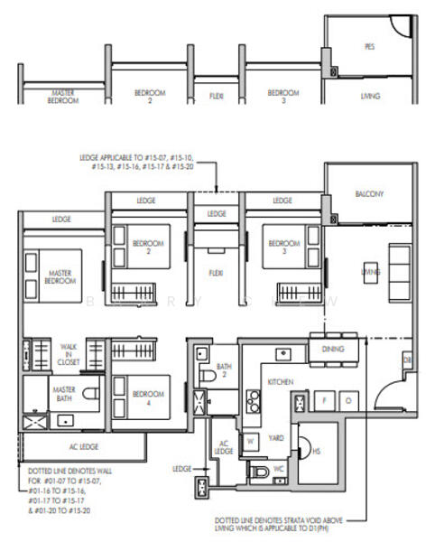
Altura EC is a newly launched executive condominium (EC) located at Bukit Batok West Avenue 8 in District 23 (D23). Altura EC enjoys a unique location nestled between the Bukit Batok heartlands, the Jurong Urban region, and the upcoming Tengah Forest town. Following the launch of The Dew which received its Temporary Occupation Permit in 2003, this is the first EC launched in Bukit Batok in two decades, so this 99 years leasehold project is expected to bode well with home seekers who enjoy living in the West.The nearest MRT station to Altura EC is Bukit Batok MRT (NS2) on the North-South line (NSL) which is an approximate six minutes’ drive away. A one station ride to Jurong East Station (NS1/EW24) gives residents access to the East-West line (EWL) along with a host of amenities and malls such as JEM and Westgate. The completion of the Jurong Regional Line (JRL) will further enhance the transportation options available for residents. Come 2030, Tengah Plantation MRT (JE1) will be the closest MRT station to Altura EC. Residents looking to clock their daily step counts can take a 15 minutes’ walk to the station.While some may argue that Altura EC may not be closely connected to other parts of Singapore, its close proximity to the Jurong Lake District (JLD) may be well-received by those who frequent the West and the Jurong precinct. A short ten minutes’ drive will take prospective residents to the JLD.For those who favour green spaces, the Bukit Batok Hillside Park is also within close distance to the development.Altura EC is a 15 minutes’ walk or a four minutes’ bus ride away from the Bukit Batok Bus Interchange that is conveniently integrated with the Bukit Batok MRT (NS2) station. With a total of 11 bus routes serving the Bukit Batok Bus Interchange, residents can easily travel to other parts of Singapore. Altura EC is also approximately 1.8km away from the upcoming Tengah Plantation MRT (JE1) on the JRL. Set to launch in stages between 2027 to 2029, the JRL will boost accessibility of places in the further ends of Jurong such as NTU and Jurong Hill. Just one train station away from Bukit Batok MRT, the Jurong East Integrated Transport Hub (ITH) will facilitate seamless connection between the EWL, the NSL, and the JRL.For drivers, the condo is five minutes’ drive to the Pan Island Expressway (PIE) so residents enjoy enhanced connectivity to the central and eastern regions of Singapore. The city centre is just a 20 minutes’ drive away via the Ayer Rajah Expressway (AYE) while major business districts like the Jurong Lake District (JLD) and the Jurong Innovation District (JID) are about a 10 minutes’ drive away. For quick grocery runs and daily meal fixes, residents can conveniently take a five minutes’ stroll to Le Quest shopping mall. West Mall and Sheng Siong supermarket are also a stone’s throw away from Altura EC.There are four unique facility zones at Altura EC that caters to residents of all demographicsThe Club Facilities:Reading ClubSocial ClubGlamping GroundThe Lagoon Facilities:50m Lap PoolAqua GymPool DeckConversation PitThe Boutique Facilities:Family DeckSplash PoolBubble PoolGymSteam RoomFunction RoomsBBQ PitsPlaygroundPutting GreenTennis CourtThe Green Facilities:Swing GardenChess GardenMaze GardenReflexology GardenResidents have a couple of options when it comes to shops and malls in the area. Le Quest Shopping Mall and West Mall are within walking distance from home. Residents can find F&B establishments and services such as supermarkets, restaurants, fast-food chains, and enrichment centres at nearby malls. The well-equipped cluster of malls in Jurong East comprising JEM, Westgate, IMM, and JCube are all one train ride away. The residents can explore a wider plethora of F&B, retail, entertainment, and service options ranging from restaurants to supermarkets, cinemas, outlet malls, and even hospitals. For fresh produce and local hawker fare, the Quan Shui Wet Market is 10 minutes’ walk away. Alternatively, residents can take a five minutes’ drive to Yuhua Village Market and Food Centre. Nature lovers can revel in exploring the various neighbourhood parks in the area such as the Bukit Batok Hillside Park, Little Guilin, and Bukit Batok Nature Park.The Jurong Lake Gardens is also a short drive away. Spotting three distinct segments ––– the Lakeside Garden, Chinese and Japanese Gardens, and Garden Promenade, Altura EC residents can enjoy family time outdoors.Future Relocated Bukit View Primary School (within 1km radius)Future Relocated Anglo-Chinese Primary School (within 1km radius)Dazhong Primary School (within 1km radius)Anthony Primary School (within 1km radius)Swiss Cottage Secondary School (within 2km radius)Millennia Institute(within 2km radius)Bukit Batok Secondary SchoolBukit View Secondary SchoolDunearn Secondary SchoolHillgrove Secondary SchoolLian Hua Primary SchoolPrincess Elizabeth Primary SchoolYuhua Primary SchoolFor families with younger children, several pre-schools are conveniently located in neighbouring HDB estates such as MY World at West Plains, My First Skool at West Edge, PCF Sparkletots at Hong Kah North, and MOE Kindergarten @ Dazhong.Nearby healthcare facilities include:Luke’s Hospital (four minutes’ drive away)Bukit Batok West ClinicHealthway MedicalOnceCare Clinic Bukit BatokEverhealth Family Clinic & SurgeryQingjian Realty is a subsidiary of Qingjian Group Co, Ltd (CNQC). CNQC broke into the Singapore market in 2008 as Qingjian Realty and was primarily involved in developing residential, industrial, and commercial properties.Established in 1983 as a brick-and-mortar general contractor, Santarli Realty Pte Ltd has since diversified into property development and evolved into a world-class builder of complex engineering works in the public and private sectors.Altura EC has already been launched for viewing and sale since August 2023. To book a showflat viewing and learn more about Altura EC and floor plans, potential buyers can contact the official development team or listed agents.Sitting on a plot size of 134,000 sqft, the condo comprises three 15-storey blocks housing approximately 360 residential units. All three blocks are designed to face different directions so buyers enjoy wider options when it comes to selecting their desired views. Prospective buyers get to pick between views of neighbouring residential projects or of the future Bukit View Primary School.Buyers who require larger living spaces can consider units with study corners or flexi rooms.Given the strategic position on the fringe of Tengah, future residents will also get to enjoy the exciting developments planned for the area.Moreover, the completion of the JRL slated in 2029 will further enhance the connectivity of residents to the JLD. Complementing the existing EWL and NSL, the new JRL will further increase accessibility to the rest of Singapore so residents can get to major business centres and education hubs.Altura EC will also be close to the upcoming Jurong Innovation District (JID) and Jurong Lake District (JLD), which are massive projects set to transform the western region of Singapore.Qingjian Realty and Santarli Construction won the Altura EC site with a bid price of $266 million, which works out to $661.67 per sq ft per plot ratio (psf ppr). As the only EC launched in 2023, Altura EC sold 61.1% of units on launch day and now has a take-up rate of 87.5%. Altura EC’s popularity can likely be attributed to pent-up demand with the last EC, The Dew, launched in the Bukit Batok area over 20 years ago. Furthermore, homeseekers are increasingly open to residing in and around Tengah. Upcoming developments in the collective Jurong and Tengah area provide great potential for further expansion that developers and investors alike are keen to capitalise on.All in all, Altura EC is a project to be considered as homeowners and investors alike get to enjoy first mover advantage in an area with no new ECs. With the condo located amongst new HDB BTO projects, those residing there can expect an increase in demand from HDB upgraders looking to continue residing in the same estate. Check out Altura EC listings and units for sale and rental on PropertyGuru Singapore.
View project details


















