Altez
16 Enggor Street
S$ 2,490,000
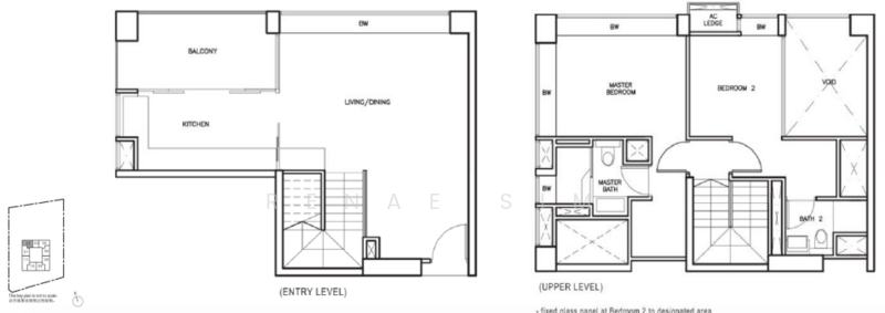
2
Beds
2
Baths
1,109
sqft
S$ 2,245
psf
260 m (3 mins) from CC32 Prince Edward Road MRT
400 m (5 mins) from EW15 Tanjong Pagar MRT
About this property
Premium City Living Doorstep to MRT, Homely with Distinct Advantages
Connectivity: 2-minute walk to Tanjong Pagar EWL MRT, walking distance of upcoming Prince Edward Road CCL, Maxwell TEL MRT.
Integrated Lifestyle: Directly linked to Icon Village, giving you immediate access to Cold Storage supermarket, Michelin-starred dining & trendy cafes at doorstep
Sky Garden: Rare for CBD, Altez features five lifestyle gardens on the 18th, 28th, 40th, 52nd, 60th floors, providing a vertical escape 360-degree views of sea & city skyline
Rare CBD Sports Facilities: Unlike many downtown condos, Altez includes a half-basketball court, tennis court, 50m lap pool, a state-of-the-art gym
Soaring 6-meter double-volume ceilings in the living area, creating sense of space rarely found in CBD apartments
Dual-Level Privacy: The "work-from-home" or "lock-and-leave" lifestyle, typically separating the master suite on the upper level from guest/study room, living area below
High-End Provisions: Kitchens come fully equipped with premium Kuppersbusch, Bosch appliances incl integrated wine fridges, coffee makers
Panoramic Views: These units are strategically positioned to capture the best of both worlds—Marina Bay skyline, tranquil Sentosa sea views
Generous Footprint: these units cater to families or professionals who require a dedicated home office without compromising on living space
Master Suites: Features "His & Hers" wardrobes and luxurious marble-clad bathrooms, designed to rival high-end hotel suites
Contact Renae today for a curated viewing and discussion on city-living, assessment and strategies
Amenities
Bedroom cabinets
Marble floor
Modern kitchen furnishing
Tiled floor
Common facilities
24 hours security
Barbeque pits
Clubhouse
Covered car park
Affordability
Tell us your monthly income and expenses to see if this home fits your budget.
Altez
Altez is a 99-year leasehold condominium located along 16 Enggor Street, 079717, in District 2. The project comprises 280 residential units hosted within a single 62-storey skyscraper. Altez was completed in 2014 by Bishan properties Pte Ltd. With a stunning height of 250 metres, Altez offers residents sky-breaking, panoramic views of Singapore right from the heart of the city centre. The apartment suites are offered in anywhere between 1 to 5-bedroom layouts and built-up areas ranging between 527 up to a luxurious 8,850 sqft, catering to all lifestyle preferences. Bishan Properties is a subsidiary of Far East Organization, one of the leading real-estate developers in Asia. Their track record includes private residences, shopping centres, industrial properties and hotels, with projects across Singapore, Malaysia, Hong Kong, China and Australia. Altez is one of many successful projects that reflect their passion to developing innovative and high-quality architectural projects, as well as ensuring the comfort of their residents. Altez is located right within the downtown core of Singapore, within Tanjong Pagar district. As such, residents can expect to be immersed within a vibrant and fast-paced environment, surrounded by an endless list of amenities and services to suit all needs. Landmarks such as The Gardens by the Bay and Clarke Quay are all within close reach. Various shopping centres and medical centres can be founding in the surrounding area. Cafes and restaurants are scattered throughout the neighbourhood, offering international cuisines and other options right at your doorstep. Residents staying at Altez can expect a highly comfortable lifestyle with a high level of convenience and accessibility. Additionally, Altez offers a dazzling array of in-house facilities, such as a swimming and wading pool, private clubhouse, tennis courts, gymnasium, lounge, and barbeque area. The compound is monitored by 24-hour security, and includes covered car parking spaces. Altez is excellently linked to nearby public and private transport routes. The residence is located just a 5-minute walk away from Tanjong Pagar MRT Station along the East West Line. Outram Park MRT (East West Line) and Telok Ayer MRT Station (North South Line) are both located around a 15-minute walk away, equivalent to around 1 kilometre. A line of bus stops can be found along Enggor Street, right outside the building. Private transport owners travelling to the international business park can expect to arrive within 20 minutes via Ayer Rajah Expressway (AYE). Alternatively, travelling to Orchard Road shopping district will take around 15 minutes via Zion Road. Hyang To GolAmaraWhole Earth FY Institute of TechnologyColumbia Business SchoolNanyang Institute of Management Singapore General HospitalDA Clinic GroupFullerton Healthcare Clinic Tanjong Pagar PlazaIcon Village100 AM Altez is a massive leasehold condominium stretching 62 stories high, and hosting a total of 280 residential units. With its prime location and luxurious suites, units at Altez have estimated sales prices starting from S$ 1,250,000 up to S$ 29,000,000, depending on layout and size. Rental prices range between S$ 3,900 to S$ 18,500 per month. Units are available in a wide variety of sizes, from 1 to 5-bedroom layouts and built-up areas ranging between 527 up to 8,850 sqft. Project Name: AltezType: 99-year Leasehold CondominiumDistrict: 02 Unit Types:1-bedroom (527 - 900 sqft)2-bedroom (829 - 1,200 sqft)3-bedroom (1,500 - 2,400 sqft)4-bedroom (2,486 - 4,424 sqft)5-bedroom (8,840 - 8,850 sqft) The following projects are by the same developer as Altez:TownervilleBijouGerald ParkOrange RegencyThe Seawind The following developments are in the same neighbourhood as Altez: Wallich ResidenceOne Pearl BankSky EvertonIconAltezSkysuites @ Anson
View project details























