10 Evelyn
10 Evelyn Road
S$ 3,439,000
3
Beds
2
Baths
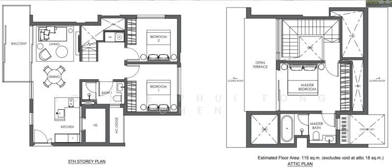
1,432
sqft (floor)
S$ 2,402
psf (floor)
590 m (7 mins) from NS21/DT11 Newton MRT
About this property
Price Reduce! Direct Developer Unit! Keys ready!
Price drop!
First come first book
Keys on hand
Secure your viewing slot today
Beauty home in the heart of Newton!
3 bedroom + 2 bath + 1 HS
List $3,900,000 now $3,439,000
List $3,800,000 now $3,659,000
Newton MRT, Novena MRT,
North south line & Downtown line
Within 1km to
Anglo - Chinese School (Junior)
Anglo - Chinese School (Pri)
St Joseph's Institution
United Square mall, Novena Square, Novena Square 2, Royal Square, Velocity.
Contact Joanne Chen @ 9***** to view!
Amenities
Air conditioner
Balcony
Fridge
Washing machine
Common facilities
Basement car park
Car park
Gymnasium room
Swimming pool
Affordability
Tell us your monthly income and expenses to see if this home fits your budget.
10 Evelyn

10 Evelyn is a freehold residential development project located at 10 Evelyn Road, 309312 in District 11. This development consists of four 4-storey condo blocks with 56 units in total. Its units' sizes are ranging from 495 sq.ft. To 1,432 sq.ft. With 1 bedroom or up to 3 bedrooms. This condominium has unique architecture with strong and stable construction. The units of the project is most highly regarded and developed by experienced developers in Singapore. It is best for a small family to invest in this project. The surroundings of this project is also clean and attractive. It is an affordable and sensible investment. 10 Evelyn is a freehold residential development located at 10 Evelyn Road, 309312 in District 11. There are not too many amenities on the doorstep, but that will more than likely change as gentrification tales hold of the area, and the impact is lessened to a large extent by the MRT. The Newton (DT11/NS21) MRT station of Downtown Line / North South Line is just about 8 minutes' walk away from 10 Evelyn. The condo is accessible at Evelyn Road from Newton Rd with easy connection toward the Central Expressway (CTE) via Bukit Timah Road at the Newton Flyover. United Square Goldhill Plaza Goldhill Centre Novena Square Velocity @ Novena Square Royal Square @ Novena Etonhouse Pre-school James Church Kindergarten (Gilstead) Pat's Schoolhouse Buckley Montessori for Children (Newton Campus)
View project details












