10 Evelyn
10 Evelyn Road
S$ 3,659,000
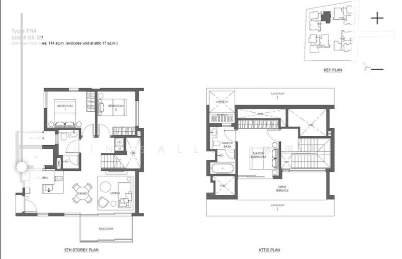
3
Beds
2
Baths
1,410
sqft (floor)
S$ 2,595
psf (floor)
590 m (7 mins) from NS21/DT11 Newton MRT
About this property
Probably the most under value penthouse in district 11
• Attractive Discounted Quantum – Priced at $3,659,000 (well below recent new launch benchmarks in the area), presenting immediate value and upside potential.
• Top Tier School Proximity (Within 1km) – Walking distance to Anglo Chinese School (Primary) and St. Joseph’s Institution Junior, highly sought after by families and owner occupiers.
• Efficient Layout with Premium Living – Well proportioned bedrooms, generous living/dining areas, and penthouse privacy ideal for both own stay and investment.
• Prime Novena / Newton Location – Minutes to Novena MRT, Orchard Road, and major medical and commercial hubs, ensuring strong rental demand and future resale appeal.
Arrange for an exclusive viewing now!
*photos are not actual unit
Common facilities
Basement car park
Car park
Gymnasium room
Swimming pool
Affordability
Tell us your monthly income and expenses to see if this home fits your budget.
10 Evelyn

10 Evelyn is a freehold residential development project located at 10 Evelyn Road, 309312 in District 11. This development consists of four 4-storey condo blocks with 56 units in total. Its units' sizes are ranging from 495 sq.ft. To 1,432 sq.ft. With 1 bedroom or up to 3 bedrooms. This condominium has unique architecture with strong and stable construction. The units of the project is most highly regarded and developed by experienced developers in Singapore. It is best for a small family to invest in this project. The surroundings of this project is also clean and attractive. It is an affordable and sensible investment. 10 Evelyn is a freehold residential development located at 10 Evelyn Road, 309312 in District 11. There are not too many amenities on the doorstep, but that will more than likely change as gentrification tales hold of the area, and the impact is lessened to a large extent by the MRT. The Newton (DT11/NS21) MRT station of Downtown Line / North South Line is just about 8 minutes' walk away from 10 Evelyn. The condo is accessible at Evelyn Road from Newton Rd with easy connection toward the Central Expressway (CTE) via Bukit Timah Road at the Newton Flyover. United Square Goldhill Plaza Goldhill Centre Novena Square Velocity @ Novena Square Royal Square @ Novena Etonhouse Pre-school James Church Kindergarten (Gilstead) Pat's Schoolhouse Buckley Montessori for Children (Newton Campus)
View project details














