Zedge
2 Akyab Road
S$ 3,200 /mo
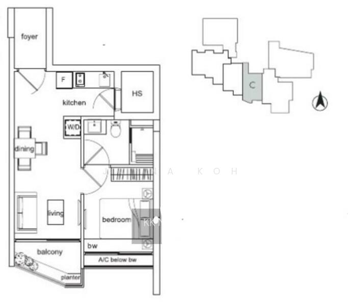
1
Bed
1
Bath
484
sqft (floor)
830 m (10 mins) from NS20 Novena MRT
Available from 5 Nov 2025
About this property
Available on 5th December 2025.
Zedge is a freehold condominium located at 2 Akyab Road
Novena MRT Station which is less than 9 minutes away by foot.
It is an arm’s length from Shaw Plaza and Balestier Plaza.
Lots of eatery within 2km.
Condo Faciliites at Zedge
Zedge features a lap pool, Jacuzzi, gymnasium, pool deck, barbeque area, car park, and 24-hour security.
Zedge is a heaven for food lovers as it within walking distance to Whampoa Drive Food Centre, where food lovers can enjoy a wide spread local dishes that are cheap and good. At the nearby Whampoa Estate, residents can find other amenities like wet market, supermarket, clinics, and provision shops.
Zedge is also near to shopping centres such as Novena Square and United Square.
Amenities
Air-conditioning
Bed
Bombshelter
City view
Common facilities
24 hours security
Barbeque pits
Covered car park
Gymnasium room
Zedge

ZedgeZedge is a condominium nestled on a freehold land in 2 Akyab Road, District 11 in Novena, Singapore. The contemporary high-rise property is a project by a developer, Macly Pte Ltd. The developer is a prominent company dealing with property development in Singapore. The properties are in the form of apartments, commercial buildings, condominiums as well as cluster housing projects. Completed in the year 2010, Zedge contains 102 condominium units in total in its 21 storeys. The units comprise of one, two and three-bedroom houses, one-bedroom units being the majority. The built-up areas of the units range from 400 square feet to 1,300 square feet. The condominium offers facilities like gymnasium, swimming pool, barbecue area Jacuzzi, parking areas and 24-hour security. It can be reached from various established areas in Singapore through Island Expressway (PIE) as well as Central Expressway (CTE) or by train via Novena, Toa Payoh or FARRER PARK MRT stations. You’ll find numerous amenities in the vicinity of this property. These amenities consist of schools, grocery stores, shopping malls, schools and restaurantsZedge - Unique Selling PointsZedge is an ideal property for investors who want to own a residential property that guarantees them reliable and high rental returns. It is also a serene home full of conveniences needed in a modern lifestyle. Being just a few minutes’ walk away from Novena MRT, central business district and major highways like PIE and CTE, the property enjoys huge rental demand. The access to various public amenities by the residents of this condo is a breeze, given that quite a number of them are just stone throw’s distance away. With the schools like San Yu Adventist School, Balestier Hill Secondary School and Balestier Hill Primary School being less than one kilometer away from the condominium, access to education is a simply a breeze. The locality also several shops, shopping malls and grocery stores where the residents can dash even at wee hours to get some goods. Being tastefully renovated and properly maintained, the condo is a place that one can proudly call their home. Besides, the availability of different amenities such as lap pool, gymnasium, barbeque pit and a Jacuzzi makes life in this condo to be very lively. The residents shouldn’t find any issue regarding parking their cars since the condominium has plenty of parking space, sufficient to accommodate nearly every occupant’s vehicle. The property is simply awesome and that’s the reason why you shouldn’t miss to have a home here.Zedge – AccessibilityZedge can be reached from various established areas in Singapore through Island Expressway (PIE) as well as Central Expressway (CTE) or by train via Novena, Toa Payoh or FARRER PARK MRT stations. Reaching Novena MRT Station or Toa Payoh MRT Station from the projects is a matter of 10 minutes and 20 minutes walk, respectively. The property is surrounded by numerous learning institutions like San Yu Adventist School, Balestier Hill Secondary School, Balestier Hill Primary School, Global Indian International School, Hong Wen School as well as the Farrer Park Primary School. Several child care centers like Cherie Hearts Kids Discovery Ark, Tai Pei Child Care Centre and Halifax Montessori Childcare Singapore are within a radius of 1.5 kilometers from the development. Being located near shopping centers like Novena Square and United Square, people who live in Zedge have a privilege to enjoy the wide variety of pocket-friendly, finger-licking, indigenous delicacies offered at the Whampoa Drive Food Centre. Coffee Bean Café, Guardian Pharmacy, clinics as well as various shopping options like 7-Eleven Convenience Store, Shaw Plaza Shopping Mall, FairPrice Grocery Store and numerous provision shops are also found near the condominium.Zedge - Amenities & AttractionsSchools and Education near Zedge:San Yu Adventist SchoolBalestier Hill Secondary SchoolBalestier Hill Primary SchoolGlobal Indian International SchoolHong Wen SchoolFarrer Park Primary SchoolChild Care Centre near Placename :Cherie Hearts Kids Discovery ArkTai Pei Child Care CentreHalifax Montessori Childcare SingaporeShopping near Placename:Novena SquareUnited SquareShaw Plaza Shopping MallFairPrice Grocery StoreDining near Placename:Whampoa Drive Food CentreCoffee Bean CaféZedge - Project informationZedge hosts an array of condominium facilities including a lap pool, swimming pool, barbecue pits, Jacuzzi, gym and a pool deck. Finding a safe and secure place to park cars isn’t a problem to the residents of Zedge since the property offers them enough parking area. The property is also equipped with 24-hour security to ensure that its occupants are safe all the time.Zedge hosts an array of condominium facilities including a lap pool, swimming pool, barbecue pits, Jacuzzi, gym and a pool deck. Finding a safe and secure place to park cars isn’t a problem to the residents of Zedge since the property offers them enough parking area. The property is also equipped with 24-hour security to ensure that its occupants are safe all the time.Project Name: ZedgeDistrict: 11Configuration: 102 residential unitsUnit types for Zedge :Unit With One BedroomUnit with Two BedroomUnit with Three BedroomZedge - Related ProjectsThe following projects are by the same developer as Zedge:Cassia Edge CondominiumLevenue CondominiumQube Suites CondominiumZedge - Nearby ProjectsThe following developments are in the same neighbourhood as Zedge:Residences @ NovenaNovena Lodge.
View project details