Thomson Impressions
3 Lorong Puntong
S$ 5,500 /mo
Starting From3
Beds
3
Baths
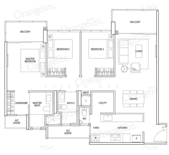
1,195
sqft (floor)
340 m (4 mins) from TE7/CR13 Bright Hill MRT
Available from 19 Dec 2025
About this property
Grab Fast! Rare!
Call 9***** ! Rol OT
Due to its location in a mainly landed property area, Thomson Impressions does not have a great deal of amenities on its doorstep. Marymount MRT is the closest station which is around a 7-minute drive away. When the Thomson East Coast Line is up and running in 2020, Bright Hill Station will be around a 10-minute walk from Thomson Impressions. There are a few malls a relatively short drive or bus journey away, and one of the island’s most famous primary schools which is Ai Tong Primary School. It is a 10-minute walk from the development.
Thomson Impressions - Amenities & AttractionsDining near Thomson Impressions:
Two Chefs Eating Place
Grub
Tomoe Japanese Cuisine
Spice Sutra
Parker Korean
Shopping near Thomson Impressions:
AMK Hub
Junction 8
Thomson Plaza
Jubilee Square
Djitsun Mall
Schools and Education near Thomson Impressions:
Peirce Secondary School
Catholic High School and Raffles Institution
Ai Tong Primary School
Amenities
Fridge
Washing machine
Common facilities
24 hours security
Car park
Children's playground
Clubhouse
Thomson Impressions

Thomson ImpressionsThomson Impressions is a residential development located in a tranquil part of District 20, surrounded by landed property. Being on elevated ground, Thomson Impressions is even more protected from what little street and traffic noise there is. The development consists of two 19 storey towers and an additional 5 strata landed semi d/bungalows in a 3 storey block. In total there are 288 units, ranging from 1 bed units up to 2 and 4 bed ones, as well as the strata landed properties. Thomson Impressions is very much a child and family friendly development, something that is borne out by the choice of facilities as well as the layout of the units.Nanshan Group is new in the property market especially in Singapore, but have achieved success in their Real Estate business in countries like China, and major trades like Aluminium, Textiles, Garment, Finance, Aviation, Education, and Tourism. Their motivation includes ‘Loyalty, Responsibility, Diligence & Dedication’ which has been implemented in their corporate lifestyle.Thomson Impressions – Unique Selling PointsThomson Impressions is a well-designed development offering a range of options from 1, 2, 3 and 4 bed units as well as 5 strata landed semi-d/bungalows. The development has been very much designed with families in mind, something that is in evidence in the layout of the rooms within the units and the child friendly facilities on site. The main attraction for Thomson Impressions however is its location. It is in a very tranquil part of Thomson, surrounded by landed property. Thomson Impressions is also on elevated land meaning it is even more protected from what noise there is.Thomson Impressions – AccessibilityDue to its location in a mainly landed property area, Thomson Impressions does not have a great deal of amenities on its doorstep. Marymount MRT is the closest station which is around a 7-minute drive away. When the Thomson East Coast Line is up and running in 2020, Bright Hill Station will be around a 10-minute walk from Thomson Impressions. There are a few malls a relatively short drive or bus journey away, and one of the island’s most famous primary schools which is Ai Tong Primary School. It is a 10-minute walk from the development.Thomson Impressions - Amenities & AttractionsDining near Thomson Impressions:Two Chefs Eating PlaceGrubTomoe Japanese CuisineSpice SutraParker KoreanShopping near Thomson Impressions:AMK HubJunction 8Thomson PlazaJubilee SquareDjitsun MallSchools and Education near Thomson Impressions:Peirce Secondary SchoolCatholic High School and Raffles InstitutionAi Tong Primary SchoolThomson Impressions - Project informationThomson Impressions is a residential development in an area dominated by landed housing. The development is very much aimed at people with families. This is borne out both with the facilities - which include several lawns, a maze, lap pool and dip pool - and the design of the rooms, where there is plenty of room for kids to do their homework and studies. Units come with Electrolux appliances and Bravat kitchen fittings. Thomson Impressions consists of 283 units in two 19 storey towers, and an additional 5 strata landed semi d/bungalows in a 3 storey block.Project Name: Thomson ImpressionsAddress: 1 or 3 Lorong Puntong (tower blocks)/ 5, 7, 9, 11 or 13 Lorong Puntong (strata landed)Type: ResidentialSite area: Approx. 10,502.8 sqmTenure: 99-year leaseholdDistrict: 20Configuration: 288 units in two blocks (19 storeys) inclusive of five strata landed (three storeys)Unit types:100 x 1-bedroom units (463 sqft)72 x 2-bedroom units (732 – 764 sqft)72 x 3-bedroom units (1,055 sqft)34 x 3-bedroom Premium units (1,195 sqft)5 x 4+ study single level penthouses (1,895 – 2,121 sqft)5 x strata landed semi-d/bungalow (2,034 sqft)Carpark lots: 288 + 3 handicapped lotsExpected TOP: Oct 2019Thomson Impressions - Nearby ProjectsThe following developments are in the same neighbourhood as Thomson Impressions:Faber GardensThe InglewoodCountry GrandeurCountry Esquire
View project details




















