The Glades
8 Bedok Rise
S$ 4,800 /mo
Negotiable3
Beds
3
Baths
1,065
sqft (floor)
580 m (7 mins) from EW4/CG Tanah Merah MRT
About this property
Next to mrt, premium 3bd for rent
-------------------------------------------------
Call / SMS/ Whatsapp Silvia 9660.8508 for viewing
--------------------------------------------------
We do not prefer co-living company, thank you
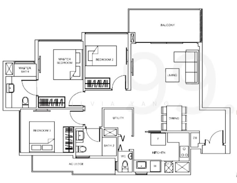
- Spacious 3 bedrooms + utility + balcony
- Spacious living area
- Nicely Furnished
- Full condo facilities
- Right next to Tanah Merah MRT
- 1 MRT Stop to EXPO, Bedok Mall, Bedok Bus Interchange, Bedok Hawker Centre
- Short drive to Changi Airport and East Coast Park
Do not miss!
View to appreciate the unit!
Landlord/Tenant/Buyer/Seller All welcome, contact 9660.8508 now fro no obligation discussion
-------------------------------------------------------------------------------
SUPERB LOCATION!
Facilities
BBQ pavilion
Children's playground
Dining pavilion
Function room
Gym
Jogging trail
Swimming pool
Tennis court
Terrace waterfalls
Shopping near The Glades:
Bedok Mall
Bedok Point
Eastpoint Mall
Changi City Point
Schools and Education near The Glades:
Bedok South Secondary School
Alps Academia
Bedok View Secondary School
Bedok Green Primary
Haig Girls’ School
Anglican High
Anthony’s Canossian Primary
Temasek Primary
DISCLAIMER:
While every reasonable care has been taken in providing the latest information with its content, the Developer, Owner and its agents shall not be held responsible for any inaccuracies and omissions therein.
All visual representations including drawings, illustrations, photographs, renderings and other graphic representations portray artist's impressions only and not to be relied upon as statements or representation of facts.
All information and specifications are latest at the time of publication and are subjected to change as may be required and do not form part of an offer or contract.
Amenities
Air-conditioning
Balcony
Common facilities
24 hours security
Basement car park
Drop off point
Lift lobby
The Glades

The GladesThe Glades is a large and distinctive residential development located on the New Upper Changi Road in District 16. It has 726 units ranging from 1 and 2 bed SoHo units up to 4 bed double volume and dual key units as well as 16 penthouses. All units have ramp and lift access for easy wheelchair access. The Glades’ most notable features however are the 3 Sky Pods – huge tree like structures that light up at night. The Glades also has many facilities including a long and winding swimming pool. The location has a lot to commend it too. Though there are no amenities in the immediate vicinity, it sits next to Tanah Merah MRT Station giving easy access to both Changi, and Bedok.The Glades is jointly developed by Keppel Land Limited and China Vanke Co. Ltd.The Glades – Unique Selling PointsBoth in terms of the development itself and its location, The Glades is an outstanding place to live. It features 3 huge sky pods, akin to the Super Trees at Gardens By The Bay, which also light up at night. All of its 9 blocks are north/south facing and all have ramps and lifts for easy wheelchair access. There are a lot of different options when it comes to the unit types, and The Glades boasts a good amount of facilities, including a large swimming pool that meanders river-like through the property’s grounds. The Glades is located next door to Tanah Merah MRT Station on the East West Line, making travelling to Changi, Bedok and the City quick and straightforward.The Glades – AccessibilityThe nearest MRT station to The Glades is Tanah Merah on the East West line, which is situated right next door. From there it is two stops to Changi, and a straight run into the city in the other direction. Bedok is one stop away with its malls and dining options which makes the fact that there is precious little within 5 minutes’ walk of The Glades less of an issue. There is a bus stop opposite the station which goes to Marine Parade giving an even wider choice. The development is situated on New Upper Changi Road which runs all the way to Bugis Junction along Victoria Street and past the Esplanade on its way to Jurong. Both the PIE and ECP are easily accessed.The Glades - Amenities & AttractionsDining near The Glades:SpizeNew HawaIsushiChoon Heng Place Seafood RestaurantShopping near The Glades:Bedok MallBedok PointEastpoint MallChangi City PointSchools and Education near The Glades:Bedok South Secondary SchoolAlps AcademiaBedok View Secondary SchoolBedok Green PrimaryHaig Girls’ SchoolAnglican HighAnthony’s Canossian PrimaryTemasek PrimaryThe Glades - Project informationThe Glades sets out to be an iconic development, with its 3 tree-like sky pods which light up at night. It is a large residential development, with 726 units in total. These are situated in 9 blocks, all north south facing, and between 10 and 12 storeys high. There is a large choice in terms of the units at The Glades, including 1 and 2 bed SoHo units, 4 bed double volume and dual key units and 16 penthouses. There are lifts and ramps throughout the development ensuring ease of access for disabled people. The Glades is very well endowed when it comes to facilities, with the highlights being a large swimming pool, that wends its way through the length of the development, gymnasium, tennis court, aqua gym, yoga deck, outdoor fitness station and children’s playground.Name: The GladesAddress: Tanah Merah (next to Tanah Merah MRT station)Type: CondominiumSite area: approx. 343,173 sqftTenure: 99 years leaseholdDistrict: 16Configuration: 726 units over 9 blocks (10 – 12 storeys)Unit types:160 x 1-bedroom & SOHO units (452 – 753 sqft)330 x 2-bedroom & SOHO units (570 – 914 sqft)190 x 3-bedroom units (840 – 1,248 sqft)20 x 4-bedroom & Double Volume units (1,281 – 1,680 sqft)10 x 4-bedroom Dual Key (DK) units (1,378 – 1,561 sqft)16 x Penthouse units (1,916 – 2,595 sqft)Parking lots: 734 including 5 handicapped lots (basement)Expected TOP: end 2017Legal TOP: 2020The Glades - Historical DataBy the end of October 2015, the number of caveated transactions at The Glades stood at 342, out of a total of 400 launched up to that point. Of those around 30 units had sold for $1.5M and above, with 5 of those coming in for $2M or more. Since its launch in 2014 there had been 95 1 and 2 bed units sold. The smallest units available, the 452 sqft 1 bedders, transacted between $1,458 and $1,649 psf which equates to approximately $659,000 and $746,000 respectively. The difference in psf is down to the block and orientation.The Glades - Related ProjectsThe following projects are by the same developer as The Glades:Highline ResidencesCorals at Keppel BayThe Glades - Nearby ProjectsThe following developments are in the same neighbourhood as The Glades:Urban VistaEast MeadowsOptima @ Tanah MerahGrandeur Park Residences
View project details







































