Sky Habitat
9 Bishan Street 15
S$ 6,950 /mo
Negotiable3
Beds
3
Baths
1,216
sqft (floor)
690 m (8 mins) from NS17/CC15 Bishan MRT
Available from 5 Feb 2026
About this property
C.H.E.A.P, Rare 30th floor up, Bright, Windy, No noon Sun, 5mins MRT
Available 5 Feb 2026 onwards
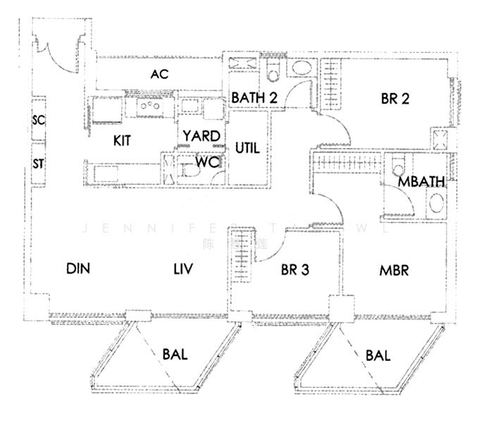
3BRs with 3 bathrooms with helper’s room & Two good-size balconies
Renovated
Bring Luggage!
Corner Unit
Super windy and bright.
No afternoon sun
Partial Furnish with white goods
Near to many good schools in Bishan
5 mins stroll to Junction 8 Shopping Mall and Bishan MRT (interchange for Red & Blue MRT line)
Discover this rare 3-bedroom, 3-bathroom c/w Helper’s quarter & Balconies, thoughtfully renovated just four years ago and kept in excellent condition. With a functional and compact layout, the home is designed for comfort and convenience. Two of the bedrooms come with access to their own bathroom, making it ideal for families.
The unit enjoys abundant Natural Ventilation, Breezy throughout the day, and Super Bright with no afternoon sun. Large windows open to Beautiful views all around the apartment, creating a bright and airy atmosphere. RARE ALERT : You get to have the pleasure of witnessing both sunrise and sunset everyday from your Living & Bedroom Balconies…..
Key Features:
• 3 Beds 3 Baths + Helper’s Quarter + Balcony at Living Hall & Master Bedroom
• Renovated 4 years ago, very well maintained
• Naturally breezy, no afternoon sun
• Beautiful views around
Stone throw to Amenities Around the Area:
• Easy access to Bishan public transports (MRT/bus) and major expressways
• Walking distance to supermarkets, wet markets, and convenience stores
• Surrounded by coffee shops, eateries, and shopping options
• Close to reputable schools and childcare centres
• Nearby parks and recreational facilities for outdoor activities
• Community facilities such as clinics, gyms, and sports complexes
This is an excellent choice for families who value both comfort and convenience in a vibrant, well-connected neighbourhood.
Call Jennifer now @ 9***** for viewing now!
www.w*****
Amenities
Air conditioner
Balcony
City view
Corner unit
Common facilities
24 hours security
Children's playground
Community garden
Covered car park
Sky Habitat

Situated in Bishan in District 20, Sky Habitat was designed by the same architect behind Marina Bay Sands. It is a stunning, eye catching building that boasts 509 homes ranging from 1 bed + study units up to duplex penthouses, with many different options and configurations in between. Sky Habitat also has a good range of facilities, including a 50-metre pool and tennis court, but it is its location that is its biggest draw. A 3-minute walk from Bishan MRT Station on the North South and Circle Lines, it is a quick commute into the city. Sky Habitat is also only a 10-minute drive to Orchard Road. Junction 8 with its numerous retail and dining options, as well as a cinema is also only 3 minutes’ walk away. Sky Habitat is developed by CapitaLand, one of Asia’s largest real estate companies headquartered and listed in Singapore. Its diversified global real estate portfolio includes integrated developments, shopping malls, serviced residences, offices and homes. Core markets include Singapore and China with Indonesia, Malaysia and Vietnam being potential new growth markets. Sky Habitat – Unique Selling Points Sky Habitat is a stunningly designed building (the same architect that was behind Marina Bay Sands), and it has a very good array of facilities, high-quality units, appliances and fixtures and fittings, but it is its location where it comes into its own. Located in Bishan on the city fringes, Sky Habitat is a 3-minute walk from Bishan MRT on the North South and Circle Lines. That means you can be in the CBD in a little over 20 minutes, door to door. Junction 8 with its retail and dining options and cinema is also a 3-minute walk from the development, while Bishan Ang Mo Kio Park is a short distance away providing residents of Sky Habitat some respite from the buzz of the city. Sky Habitat – Accessibility In terms of accessibility, Sky Habitat is hard to beat. Bishan MRT Station on the North South and Circle Lines is a 3-minute walk from the development. From there it is 8 stops to Raffles Place, and Orchard will take about 10 minutes. Bishan is also the location for the bus interchange, giving access to those parts of the island not covered by the MRT network. Junction 8 with more than 170 shops, plus a cinema is a 3-minute walk from Sky Habitat. In terms of driving, major arterial roads such as Braddell Road, Upper Thomson Road and Marymount Road are all within easy reach, as are the PIE and CTE. This means in good conditions, it is just a 10-minute drive to Orchard Road, and only very slightly longer to the CBD.
View project details













































