Riverfront Residences
53 Hougang Avenue 7
S$ 3,300 /mo
Starting From2
Beds
1
Bath
614
sqft (floor)
1.4 km (17 mins) from NE14/CR8 Hougang MRT
Ready to move in Condominium
About this property
Short Term Rental Preferred,Cheapest best facing 2 bed 1 bath for rent
Unit Features:
- No West Sun
- Pool Facing
- Windy and Bright
- High Floor
- Efficient Dumb-bell Layout
- North-South Facing
Some amenities:
- 1km to Holy Innocent School
- Hougang MRT and Future Cross Island Line
- Hougang Mall
- Park connector right in front of development - connects to Punggol, Lorong Halus and Coney Island
- Small park behind development
- Proximity to Punggol Park
Amenities
Air-conditioning
Balcony
Cooker hob/hood
Fridge
Common facilities
24 hours security
Badminton hall
Barbeque pits
Basketball court
Riverfront Residences
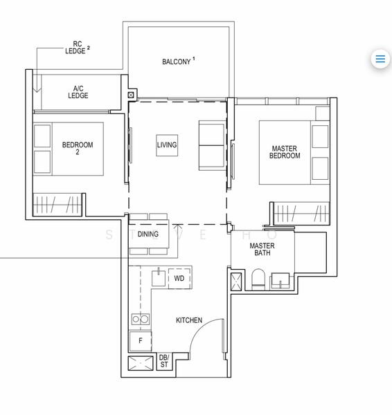
Riverfront Residences is a distinguished residential condominium at Hougang Avenue 7 in Singapore's sought-after District 19. Developed by Rio Casa Venture Pte Ltd, in partnership with Apricot Capital, the development was completed in 2024. The 99-year leasehold development comprises 1,472 residential units, including 1,451 apartments and 21 strata terrace houses, offering a range of one to five-bedroom homes to cater to varying lifestyle needs.Riverfront Residences stands out due to its strategic location in Hougang, offering residents seamless access to key locations in Singapore. Its proximity to the Central Business District (CBD) and other prominent areas ensures that residents can enjoy a convenient lifestyle while still being close to nature.The condominium offers modern, cutting-edge facilities, including a swimming pool, gymnasium, clubhouse, children's play area, BBQ area, function room, jogging track, lap pool, pool deck, steam room, tennis court, and yoga corner. These amenities are made to suit various leisure and wellness needs, creating a comprehensive living environment for its residents. Riverfront Residences has also been recognised for its design excellence and innovation, having received awards highlighting its unique architectural vision.Riverfront Residences is excellently connected to Singapore's extensive public transport network, ensuring easy commutes to key destinations. Hougang MRT Station (NE14) is within a 10 to 12-minute walk from the property, providing quick access to the North-East Line. The development is also well-served by major expressways, including the Kallang-Paya Lebar Expressway (KPE), facilitating easy travel to other parts of the island.The vibrant neighbourhood surrounding Riverfront Residences offers numerous amenities, ensuring convenience for its residents. Hougang Mall, Hougang Green Shopping Mall, and Heartland Mall are all close, providing a wide variety of retail, dining, and entertainment options. This proximity to essential services further enhances the appeal of living in Riverfront Residences.Riverfront Residences has been carefully designed to offer many services that meet the different needs of residents. The development includes:Badminton hallBasketball courtBarbeque areaClubhouseFitness cornerGymnasium roomLoungeMeeting roomMulti-storey car parkPavilionPool deckPlaygroundPutting greenReflexology path24-hour securitySteam bathSwimming poolTennis courtsWading poolThese features, along with the lovely green spaces and shared areas, make a peaceful place for people to relax, hang out, and have fun. The design brings people together, giving them plenty of chances to enjoy the outdoors.Riverfront Residences is located in a lively community. It provides families with many educational choices. In just a 3 km area, residents can find several schools. This means children have many chances to learn. Some nearby schools include:Montfort Junior SchoolHoly Innocents' Primary SchoolCHIJ Our Lady of the NativityThese institutions offer families easy choices for kids of different ages. This helps make the area feel more family-friendly.For healthcare convenience, residents of Riverfront Residences are within reach of several medical facilities. Nearby medical centres include:NHGP Hougang PolyclinicRiverSage Family ClinicSia Yeo Hougang Clinic Pte LtdTrucare Medical Clinic And Surgery (Hougang Central)These healthcare providers make it convenient for residents to get medical services in their area. This helps families and individuals feel more relaxed and secure.The area around Riverfront Residences has a good mix of dining spots for different tastes. Some well-known restaurants and eateries within 3 km are:Pasta LoftLabula BBQ Sichuan Restaurant @ Hougang VillageLemongrassGoldhill Family RestaurantAt these restaurants, you can enjoy a selection of cuisines, from Italian to Asian, providing residents with ample choice for dining out or having a relaxed meal with family and friends.Being close to supermarkets near Riverfront Residences makes things easier for people. This helps residents meet their daily needs quickly. Some nearby supermarkets are:NTUC FairPrice at Hougang MallNTUC FairPrice at Kang Kar MallGiant at Hougang Green Shopping MallThese supermarkets provide essential goods, ensuring residents can access everything they need daily.Riverfront Residences occupies a prime location along Hougang Avenue 7 in District 19. The development will cover about 463,000 sq ft. It will have 17 floors and look modern, fitting well with the natural surroundings. The units will be from 463 sq ft to 2,110 sq ft. This gives residents many options to choose from. The development's long frontage along the river creates an open, airy atmosphere, providing stunning views of the Serangoon River and surrounding green spaces.: Riverfront Residences: Condominium: 19: 1,472 residential units: 17: 30: Riverfront Residences offers one to five-bedroom apartments, including spacious strata-landed houses. Each unit is designed to maximise space and natural light, with modern kitchens, spacious living areas, and serene views of the surrounding landscape.Riverfront Residences was built by a group of developers called Rio Casa Venture Pte Ltd. This group includes Oxley Holdings Limited, KSH Holdings Limited, SLB Development Ltd, and Apricot Capital. They have a lot of experience in building properties. This helps ensure that the construction and design are high quality. The developers have worked on many important projects in Singapore.The team that built Riverfront Residences has also worked on several other key projects, including:Oxley TowerThe Verandah ResidencesAffinity at SerangoonThese projects show that the developers put a lot of effort into creating high-quality buildings, focusing on having those buildings in good spots.The Riverfront Residences area has several well-known housing developments. They add to the lively and active feel of the community. Nearby projects include:Kingsford WaterbayBoathouse ResidencesHeron BayThese developments further enhance the appeal of the Hougang area as a popular residential destination.Riverfront Residences offers a great place to live. It mixes modern comfort with natural beauty. It has many nice features, good transport links, and is close to essential services. This development is a good opportunity for people who want a balanced way of life. Riverfront Residences is perfect for families and individuals seeking a quality home in a great area. Here, ease and peace fit together well.Check the Residential units in City Gate for sale and units for rental. And also don’t miss also the commercial units for sale and rental units too.
View project details






