River Isles
Punggol Central
S$ 4,200 /mo
3
Beds
2
Baths
893
sqft (floor)
480 m (6 mins) from CP3/PE4 Riviera MRT
Available from 1 Dec 2025
About this property
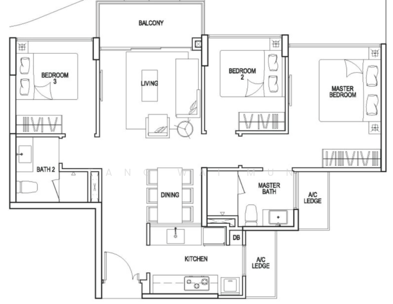
River Isles High Floor 3-Bedder Bright Breeze with Unblocked Views
Available from 1st December.
Unit Highlights:
* 3 bed 2 bath
* 893 sqft
* Above 10th floor
* Bright, windy, well-ventilated
* Efficient and spacious layout
* North-South facing with no afternoon sun
* High floor with picturesque unblocked views
Groceries and Shopping:
* A wide array of supermarkets are nearby, including NTUC FairPrice at Punggol Plaza and Sheng Siong at Punggol Central.
* Punggol Plaza is within walking distance, offering a variety of retail and dining options.
* For more extensive shopping, Waterway Point is just a short LRT ride away.
Food and Dining:
* Explore a diverse culinary scene with numerous options ranging from local delights at the One Punggol Hawker Centre to trendy cafes and restaurants at Punggol East Container Park and The Punggol Settlement.
* Enjoy waterfront dining experiences at nearby establishments like Whisk & Paddle.
Transport:
* LRT Access: A short walk takes you to Kadaloor (PE5) and Riviera (PE4) LRT stations, just a few stops from Punggol MRT/LRT Station (NE17/PTC).
* Bus Services: Numerous bus stops are conveniently located near the condominium, providing easy access to the rest of Singapore.
For Drivers:
Expressway Access: Enjoy quick and easy access to the Tampines Expressway (TPE) and Kallang-Paya Lebar Expressway (KPE), making your commute to the city or Changi Airport a breeze.
River Isles

River Isles is a leasehold condominium development that is located at Punggol Central in District 19. It is a condominium project that was completed recently. The project was completed in 2016 with a total of 610 units available for sale or rent. The condominium development is located close to public transportation that allows residents to move easily from one place to another from the condominium. There are many shops and amenities close to the condominium development which would ease the process for residents and they do not need to go far to find what they need. The project was developed by QianJian Realty, a mid-scale property developer that has developed 10 property projects in Singapore. - River Isles is a beautiful condominium development that has many charms to it. There are various facilities that residents can enjoy while living in River Isles. Residents of River Isles would not have to travel far to get their basic necessities as everything is close within their reach. Residents can enjoy the clubhouse with blue lagoon, meditation bay, sun deck, river ford, water spring massage, hydro gym, hammock haven tee square, dining deck, barbeque pavilion, Teppanyaki pavilion, gourmet pavilion, club house, the glade, Wade 'n' Waddies, aqua play, fun court, tennis court, spa seats, spa beds, dip lagoon, massage cabana, fitness courts, eco spring and pools of reflection There is a number of public transportation close to River Isles that residents can make use of. The closest bus stops are located at Greendale Primary School, Horizon Primary School, Coral Edge, Medirian Station and Oasis Station. For those with vehicles, the shopping district located at Orchard Road can be easily accessed via the Central Expressway in 15 to 20 minutes. Kamar WesternChia Cher Khiang RestaurantMiao Xin Health PotSing Yi Seafood GardenMaster Crab Seafood Restaurant Genius School HouseGraceland Student Care Centre @ Mee Toh SchoolGreendale Secondary SchoolHorizon Primary SchoolWaterway Primary School Healthway Punggol ClinicVictoria Dentalcare (Punggol) Pte LtdWomen’s Choice O & G ClinicPunggol Family Clinic Pte LtdThe Dental Inn FairPrice Punggol PlazaGiant ExpressAng Mo SupermarketPrime SupermarketFortune Supermarket River Isles is a condominium development that is made up of a total of 610. There are 4 types of unit available with various layouts that residents can browse through. The size for the unit ranges between 441 square feet to 2,207 square feet. The layouts for the units in River Isles aim to provide residents with homes that is comfortable for working adults, couples or families looking to own a spacious and manageable condominium unit. The sale price for the units can go ranges between S$ 608,000 to S$ 1,968,000. The rental price for the units ranges between S$ 800 to S$ 3,100. Project Name: River IslesType: CondominiumDistrict: 19Configuration: 610 residential units Unit Types:1 bedroom (441 sqft)2 bedrooms (753 sqft )3 bedrooms (893 sqft – 1,647 sqft)4 bedroom (1,324 sqft – 2,207 sqft) The following developments are projects developed by the same developer as River Isles:EcopolitanBellewatersBellewoods The following developments are in the same neighborhood as River Isles:The Florence ResidencesAffinity At SerangoonRiverfront ResidencesLa FiestaKingsford WaterbaySengkang Grand Residences
View project details


















