One Jervois
7 Jervois Close
S$ 8,800 /mo
Starting From3
Beds
3
Baths
1,496
sqft
1.1 km (13 mins) from EW17 Tiong Bahru MRT
1.3 km (16 mins) from TE15 Great World MRT
Available from 7 Jun 2026
About this property
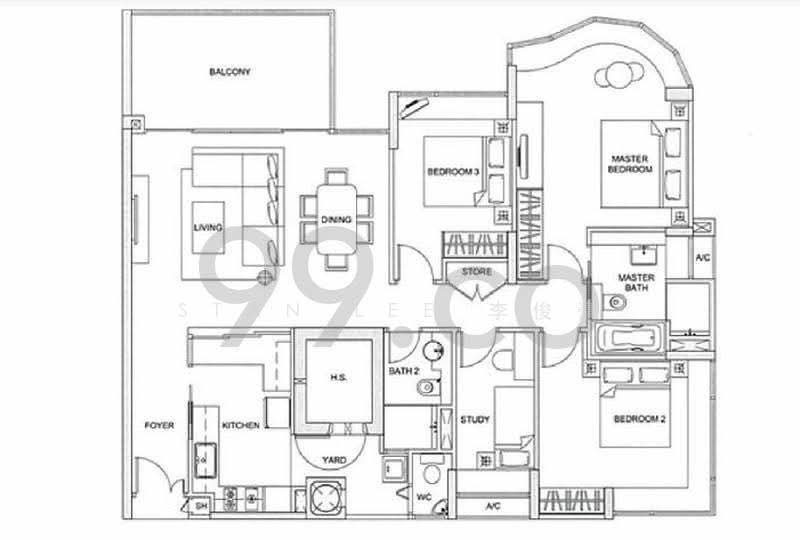
3 plus Study! Well maintained! Floor polished! View Now!
★ 1 or 2 years lease preferred ★
Don't Miss!
Ready for viewing!
Call Stan 9***** for viewing now!
★ Huge spacious 3 bedroom plus study
★ Well maintained unit
★ Ready to move in NOW!
★ White goods provided
★ Within 1km to Alexandra and Zhangde Primary School
Call Stan 9***** for viewing now!
One Jervios is a full facilities condominium with swimming pool and tennis court.
One Jervois is located at the heart of River Valley, a stone's throw from Valley Point Shopping Centre, a suburban mall with supermarkets, restaurants and fitness studios.
One Jervois is a 10 min bus ride to the main shopping belt at Orchard Road and Great World City, a large shopping mall with access to Great World MRT Station.
It is a 15min drive to the Central Business District (Raffles Place). There are several bus services outside the condo that will take you to the CBD in 20 mins.
One Jervois is next to the Alexandra Park Connector where you can cycle to the CBD and Marina Bay Area.
Amenities
Air-conditioning
Balcony
Cooker hob/hood
Corner unit
Common facilities
Swimming pool
Tennis courts
One Jervois

One Jervois is a condominium project which is located in Jervois Close, 249103, Orchard / Holland (D09-10) District 10. It was completed in 2009, it comprises of 12 storeys and 275 units. One Jervois offers a wide range of facilities at your disposal. These include swimming pool, lap pool, wading pool, family pool, reflecting pools, function room, gymnasium, meeting room, granite decks, timber decks, pool pavilion, ponds, pocket courts, sunken gardens, playgrounds, barbeque pavilions, sculpture, tennis courts, and car park. 10 units are available for buying purpose and 5 for rental purpose. The tenure of this project is freehold property. FCL Joo Chiat Place Pte Ltd are the developers of this project. Skilled workers of Singapore are responsible for building this Condominium projects numerous terraced house, housing projects and condominiums. One Jervois apartments promises a luxurious high life, on a luxurious high-rise apartment. The main objective of One Jervois is to provide a friendly and safe environment to the residents. It is a family oriented project which has many amenities around it. The architect of the building is very unique with strong construction. There are artificial plants with lightning around to enhance the beauty of the place. All the facilities are available at an affordable price. The developer has put in a lot of effort to give it a sense of luxury lifestyle in the apartment. Accessibility One Jervois is a freehold condominium located at Jervois Close in District 10. One Jervois is close to EW17 Tiong Bahru MRT Station. TE16 Havelock MRT Station and EW18 Red hill MRT Station are the nearest to the condominium. Public transportation has made the lives of residents easy who do not have their own vehicles. Bus stops are also located at walking distances. This project is created with immense planning to provide all the basic needs to the residents. The location is also accessible easily via different routes. Vehicle owners can take River Valley Road, Ayer Rajah Expressway (AYE) and Central Expressway (CTE) to get to the business hub or shopping district in the city. There are different amenities located near this building. Numerous restaurants and eating establishments are in the vicinity and residents can go to the nearby Shopping Centre or the Market and Food Centre to fulfil more than just daily necessities. One Jervois is close to EW17 Tiong Bahru MRT Station and not far from several Schools such as Gan Eng Seng Secondary School, Crescent Girl's School and Zhangde Primary School. Resident at One Jervois can get to the nearest NTUC Fair price Supermarket at 1 Jervois Road and Cold Storage Supermarket at Valley Point. It is also nearby to Valley Point, 302 Tiong Bahru Road and Great World City Shopping Malls for an array of amenities such as grocery and retail shopping, banks, eateries and more. Toast InnPinleLiang Kee Teochew RestaurantDelta Swimming Lessons - DolpSwim SchoolOrpheus Dive | PADI 5 Star IDC & Tec CentreAPSN Tanglin Special SchoolFairPrice Finest Tiong Bahru PlazaFairPrice Finest Valley PointFairPrice Havelock RdDelta Circus Fringe Car ParkAlexandra Park ConnectorTherapeutic Garden @ TBP One Jervois project was completed in 2009. The average price ranges from $ 1,850,000 to $ 4,280,000. It has 275 units in total. 10 units are available for buying purpose and 5 units for rental purpose. The unit for buying is with 3 bedrooms and 2 bathrooms with 1292 sqft. The units with 3 bedrooms and 5 bathrooms has 1991 sqft. All the bedrooms and bathrooms are totally furnished. It has enclosed kitchen with custom made steel shelves and cabinets. Project name: One JervoisProject Type: CondominiumUnits: 275District: 10 (Tanglin, Holland) Unit types3 bedrooms 3 bathrooms -:1335 sqft2 bedrooms 2 bathrooms – 990 sqftBoulevard 88d'Leedon (Former Farrer Court)Nouvel 18Royalgreen3 Orchard By-The-ParkFourth Avenue Residences
View project details























