Leedon Green
34 Leedon Heights
S$ 3,800 /mo
Negotiable1
Bed
1
Bath
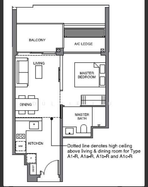
473
sqft
630 m (8 mins) from CC20 Farrer Road MRT
Ready to move in Condominium
About this property
Just TOP one bedroom ready for move in
☆ Ready to move in condition, defects all done
☆ House professionally cleaned
☆ Quality lights and curtains all up
☆ No West Sun
Call Dulcie 8*****
Leedon Green is the biggest luxury freehold new launch condo developed by MCL Land and Yanlord Land in Leedon Heights with lush landscaping and 638 units.
Amenities
Air-conditioning
Balcony
Cooker hob/hood
Corner unit
Common facilities
24 hours security
Barbeque pits
Basement car park
Car park
Leedon Green

Leedon Green is a luxury condominium located at 26-28 Leedon Heights, within the highly prestigious District 10 residential belt encompassing Tanglin, Holland, and Bukit Timah. Expected to be completed in 2026, Asia Radiant Pte Ltd, a joint venture between MCL Land and Yanlord Land, the development comprises seven residential blocks rising to 12 storeys, with a total of 638 residential units. Leedon Green is positioned as a large-scale freehold, low-rise luxury enclave within one of Singapore’s most tightly held freehold zones. The project’s planning and architectural approach emphasise resort-style living within a city-fringe environment, combining generous landscaping, flowing terrain, and curated communal spaces to create a private sanctuary within a mature residential neighbourhood. Leedon Green has set itself apart from the competition with its unique offerings (freehold tenure, large land site, and luxurious resort-like facilities) that appeal to both luxury and lifestyle buyers. Unlike other luxury developments, which are generally built up (or “high-rise”), Leedon Green is a low-rise, expansive development that allows for greater green space, more open views, and a greater sense of privacy. As a result of the development’s focus on integrating nature into the project, several elements in each apartment unit are included to enhance that connection, including terraces, trees, lakes, and gardens. In addition to these integration details, Leedon Green incorporates several high-end, imported materials and finishes throughout all residences and provides comprehensive concierge services to enhance residents' lifestyles. Because of the combination of all these elements, Leedon Green is positioned to be a luxury home that provides an extraordinary living experience for many years to come. Despite its tranquil setting, Leedon Green enjoys excellent connectivity to key parts of Singapore. Farrer Road MRT Station (CC20) on the Circle Line is within 670 metres, providing direct rail access to Holland Village, Buona Vista, and Marina Bay. Holland Village MRT Station (CC21) is also within close reach, further enhancing transport options. For motorists, Leedon Green benefits from direct access to Farrer Road and Holland Road, linking efficiently to Tanglin Road, Bukit Timah Road, and Orchard Road. Travel time to Orchard Road is typically within 10 to 15 minutes, while the Central Business District remains easily accessible during off-peak hours. Residents can also enjoy proximity to lifestyle and recreational landmarks such as Singapore Botanic Gardens, Dempsey Hill, and the established dining and retail hubs of Holland and Bukit Timah. Leedon Green is developed across a large freehold site of approximately 316,700 to 320,000 sq ft, with residential blocks rising to around 12 storeys. Leedon Green Condominium 10 638 residential units Low-rise, up to approximately 12 storeys Facilities at Leedon Green are designed to support a resort-style, self-contained living environment, offering a comprehensive suite of amenities without overcrowding. Key facilities include: Courtyard Tree top walk Various themed pavilions Sky terrace bar Aqua fitness pool Sensory walk BBQ pavilion Grand dining room Gymnasium & studio Grand pool Cabanas Play pool Tennis court These facilities are carefully distributed across the site to encourage wellness, leisure, and community interaction while preserving privacy. Leedon Green is located within one of Singapore’s most education-centric residential zones, making it particularly attractive to families planning for long-term schooling access: Nanyang Primary School Raffles Girls’ Primary School Hwa Chong Institution (College Section) The concentration of local schools within the District 10 and Bukit Timah corridor significantly strengthens Leedon Green’s appeal. The surrounding Holland and Bukit Timah precincts offer a diverse dining scene, catering to everyday meals as well as refined dining experiences: La Nonna Original Sin Tiong Bahru Bakery Ya Kun Kaya Toast (One Holland Village) Beyond immediate surroundings, Dempsey Hill and Orchard Road further expand dining choices, reinforcing Leedon Green’s lifestyle convenience. Healthcare access around Leedon Green is well supported, with a range of private hospitals and medical centres located within a short driving distance. Nearby facilities include: Gleneagles Hospital Camden Medical Centre Raffles Medical Raffles Holland V This ensures residents have convenient access to both primary care and medical services within the central region. Daily necessities are readily available at nearby supermarkets and speciality grocers in the Holland and Tanglin areas. Key options include: CS Fresh @ Holland Shopping Centre Little Farms Market Giant Express These outlets offer a wide selection of fresh produce, imported goods, and household essentials, enhancing residents' day-to-day convenience. The seven-block configuration allows for generous spacing between buildings, extensive landscaping, and unobstructed internal views. : 49 units, approximately 474 - 603 sq ft : 96 units, approximately 538 - 689 sq ft : 274 units, approximately 614 - 840 sq ft : 46 units, approximately 818 - 926 sq ft : 33 units, approximately 958 - 990 sq ft : 34 units, approximately 1,064 - 1,356 sq ft : 45 units, approximately 1,044 - 1,163 sq ft : 56 units, approximately 1,496 - 1,744 sq ft : 5 units, approximately 2,400 - 2,680 sq ft The site layout prioritises privacy, natural ventilation, and a seamless flow between built spaces and landscaped areas, reinforcing the project’s resort-inspired positioning. Leedon Green is developed through a joint venture between MCL Land, a long-established Singapore developer known for high-end residential projects, and Yanlord Land Company Limited, a developer with extensive experience in Asia’s luxury property market. Both parties bring deep expertise in delivering premium residential developments; the collaboration reflects a shared focus on design integrity and construction quality. Together, these strengths position Leedon Green as a refined freehold residential development aligned with long-term living standards and expectations. Other notable residential developments by MCL Land include: Parc Esta Margaret Ville These projects collectively highlight the developers’ consistent approach to quality-driven residential developments in prime locations. Leedon Green is situated within a mature luxury enclave, surrounded by several established residential developments that reinforce the area’s prestige: Leedon Residence d’Leedon Wilshire Residences These neighbouring developments contribute to the long-standing desirability of the Leedon Heights and Holland Road residential corridor. Leedon Green is a Freehold Residential Development located in District 10, one of the larger Freehold Low-Rise Residential Developments, and a "resort" - style living development. Leedon Green is a ‘long-term’ residential option rather than an investment, a distinctive and tightly held asset class in the ‘luxury’ segment offering space, privacy and long-term value. Browse current Leedon Green homes for sale and rent to find a residence that meets your needs.
View project details
































