Haig Court
152 Haig Road
S$ 6,500 /mo
Negotiable4
Beds
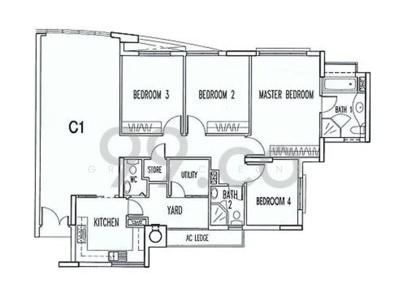
3
Baths
1,550
sqft
1.1 km (13 mins) from TE25 Tanjong Katong MRT
Available from 10 Jul 2026
About this property
Highly Sought After Rare Spacious Home Near Tanjong Katong MRT
• 1550sqft | 144sqm
• High Floor
• Pool View
• Spacious & Efficient Layout
• Family Friendly
• Quiet Facing
• Away from Construction
• Simple, Well Maintained Condition
• No Balcony, Planter Boxes & Bay Windows
• Value For Money
• Full Condo Facilities
NOTE:
• Available from 10 July 2026
• 2-year lease or longer preferred
• Partially furnished
TOP 3 REASONS WHY YOU WILL LOVE THIS LOCATION:
1. Prime East Coast location in the heart of Katong, just minutes from Parkway Parade, popular cafés and eateries, with easy access to the city
2. Around 12–15 minute walk to Tanjong Katong MRT Station, offering convenient connectivity on the Thomson East Coast Line
3. Spacious and well designed layout with proper living and dining areas, comfortably sized bedrooms, and no wasted space
MALLS:
• Parkway Parade
• Katong V
• i12 Katong
RECREATION:
• East Coast Park
TRANSPORTATION:
• Tanjong Katon MRT (TE25)
• Easy access to ECP & KPE
• Direct bus routes to CBD & city
1 KM SCHOOLS:
• Tanjong Katong Primary School
• Haig Girls’ School
Amenities
Air conditioner
Barbeque pits
Basic lights
Bathtub
Common facilities
24 hours security
Barbeque pits
Clubhouse
Covered car park
Haig Court
The Haig Court is a high-rise condominium development project that is located in District 15 in Singapore. The Haig Court offers a freehold tenure to its tenants. One of the greatest advantage that the residents of Haig Court can make use of is its extremely high accessibility. There is a lot of bus stops surrounding the development and a few MRT station that is closest to it. Furthermore, the Haig Court is suitable for a growing family to live in because it is located close to a number of schools in the area. The Haig Court development project was completed in the year of 2004 and it was developed by The Great Eastern Life Assurance Co Ltd. The Great Eastern Life Assurance Co Ltd has been the forefront of Asia’s insurance industry, providing financial security and peace of mind to millions for over a century. They were founded in 1908 and they are the oldest and most established life insurance group in Singapore and Malaysia. The Haig Court development project provides complete basic condominium facilities to its residents. First of all, the security within the compound of the Haig Court development is 24 hours and this is to ensure the safety and security of the residents. The car park available for vehicle owners is covered and this is to protect them from the rain and sun. There is also a swimming pool and a wading pool for the adults and children respectively. Furthermore, there is a Jacuzzi and a sauna available for the residents to take some time off and relieve some of the stress from work. There is also a playground for the children to spend some of their free time. Apart from this, there is a gymnasium room and a fitness corner to help the residents keep themselves in shape. There is also a BBQ area for the residents to have a good time of bonding with friends and families over some good BBQ. Also, there is a putting green for those that enjoy golfing. Last but not least, there is a function room and a clubhouse for the residents to organize various functions and activities. Having relatively high levels of accessibility is one of Haig Court’s strongest selling points as well. There is a lot of bus stations located within the vicinity of the development project and these bus stations are able to take the residents to wherever they need to. The nearest bus stop is located before the Katong Post Office and it is only about 340 metres and 5 minutes of walking distance away from the development. The nearest MRT stations that are available for the residents of Haig Court is the CC8 Dakota MRT station and the TE25 Tanjong Katong MRT station. As for vehicle owners, the Haig Court is accessible via the Tanjong Katong Road and East Coast Road. Trattoria L’OperettaPonggol Nasi LemakMiki Kitchen – Oriental CuisineRabbit Brand Seafood RestaurantChilli Padi Nyonya Restaurant Tanjong Katong Primary SchoolTanjong Katong Girls’ SchoolTanjong Katong Secondary SchoolCanadian International School SingaporeZhicheng Private School Wellness HomeopathyGuardian SingaporeKai Yuen Chinese Medical Hall Lee Yee Heng Trading CompanyFairPrice Finest Katong Village HotelGiant Express JK CentreViet ValuemartBes Price MinimartKatong Shopping CentreOdeon Katong Shopping ComplexKatong PlazaParkway ParadeParamount Shopping Centre The Haig Court is a high-rise condominium development project that offers a freehold tenure to its residents and it comprises a total number of 360 residential units spread across 4 building blocks with 17 floors each. The development is located along Haig Road, 438791, East Coast (D15-16). The selling price for each unit in the Haig Court ranges from SGD1.68mil to SGD5.09mil. Project Name: Haig CourtDistrict: 15Configuration: 360 residential units spread across 4 building blocks with 17 floors each. Unit types:2 bedrooms and 2 baths3 bedrooms and 3 baths4 bedrooms and 3 baths4 bedrooms and 4 baths5 bedrooms and 5 baths The following development projects are developed by the same developer as Haig Court:Newton GemsHolland Gems The following development projects are in the same neighbourhood as Haig Court:Amber ParkMeyer MansionSeaside ResidencesSilverseaAmber 45Frankel Estate
View project details





















