Commonwealth Towers
230 Commonwealth Avenue
S$ 5,200 /mo
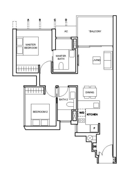
2
Beds
2
Baths
689
sqft (floor)
200 m (2 mins) from EW19 Queenstown MRT
Available from 6 Apr 2026
About this property
Most livable 2-bedder now available for your renting!
Well-maintained, well-renovated, generous storage, facing park connector with soothing greenery view. away from MRT station and quiet unit.
Amenities
Bed
Bedroom cabinets
Cabinets
Chandeliers
Common facilities
Barbeque pits
Fitness corner
Function room
Gymnasium room
Commonwealth Towers

Commonwealth Towers This two towered development benefits from very close proximity to Queenstown MRT Station, on the East West Line, meaning resident of Commonwealth Towers can be in Orchard Road, the CBD or Marina Bay in less than a quarter of an hour and it’s within District 3. Commonwealth Towers - Accessibility The fact that Commonwealth Towers is so close to the MRT – it is across the road from Queenstown MRT Station – is a huge plus point for this development and will be the reason most people buy. Queenstown is on the East West Line, three and five stops from the North East and North South Lines respectively. This means residents of Commonwealth Towers can easily be on Orchard Road, The CBD or Marina Bay within 15 minutes. Commonwealth Avenue can and does get busy with traffic, but it is not far to Queensway, and hence the AYE and MCE, giving drivers access to areas in the north, south, east and west of the island. There are not too many amenities on the doorstep, but that will more than likely change as gentrification tales hold of the area, and the impact is lessened to a large extent by the MRT. Commonwealth Towers - Amenities & Attractions Shopping near Commonwealth Towers: Anchor Point Alexandra Central Valley Point Great World City Schools and Education near Commonwealth Towers: New Town Primary School Queenstown Secondary School ACS International
View project details


























