Berkeley Residences
11 Lorong N Telok Kurau
S$ 4,500 /mo
Negotiable3
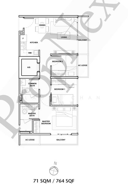
Beds
2
Baths
764
sqft (floor)
850 m (10 mins) from TE27 Marine Terrace MRT
Ready to move in Apartment
About this property
Well-maintained 3 bedder for immediate lease!
* 3-bedder unit for immediate lease
* Master bedroom can fit queen
* 2 common bedrooms can up to super single
* Open kitchen concept
* Near to eateries at East Coast & Changi Road
* 3 mins walk to main road , Still Road
* Near to several malls, ie: parkway parade, i12 Katong etc.
CALL/WA 9***** FOR VIDEO or ENQUIRIES NOW!
Amenities
Bedroom cabinets
Cabinets
Fridge
Oven / microwave
Berkeley Residences

Berkeley Residences is a freehold apartment complex located at Lorong N Telok Kurau in District 15. The project reached its completion in the year 2015. Bvlgari Park Residences Pte. Ltd are the sole developers of this amazing project. Bvlgari Park Residences Pte. Ltd is registered as a private company limited by shares. The company was incorporated in the year 2011. The company primarily deals in holding other companies. Its secondary business is participating actively in the real estate business. Berkeley Residences is located very ideally in the city. Most of the shopping malls, city attractions, schools, religious places and health centers are within easily reachable distances. The project is located in an extremely safe and secure area. Although the project does not have advance security arrangements like CCTV cameras, metal detectors, highly armed guards or scanning devices. The project’s entrance is secured by a moderately armed watchman patrolling around the entrance and the connecting part of the premises. The units are also built quite beautifully. There is a proper supply of the basic facilities the buyer or renter of these deserves, such as 24 hours supply of electricity and water. The project is surrounded by a beautiful display of greenery. There is a huge amount of plantation around the property, making the environment fresh, beautiful and extremely healthy. There also facilities like Lap Pool, Pool Deck, Pavilion, and Children Playground. Berkeley Residences is located in a very prime location. It is located in District 14. There are a lot of shopping centers, eateries, city attractions and schools, catering your entertainment and daily schedule. Schools near the property are of great standard and quality. There are also religious places for your respective religion near the condominium. If you have a car or any other vehicle, travelling within the city won’t be an issue for you. However, there is no parking space inside the complex’s premises. Therefore, you would have to find a solution for that. However, if you don’t own a vehicle, you can easily travel using a taxi. Taxis can be found on the taxi stand or on the road. You can also use cab booking applications like Uber and Grab. You can also catch a bus from the nearest bus stations. You can also catch a train from the nearest MRT stations such as EW7 Eunos MRT Station, EW6 Kembangan MRT Station and EW8 Paya Lebar MRT Station. DoongjiPenny Univeristy RestaurantBeach Road Prawn Noodle HouseChin Mee ChinMel’s PlaceZaffron KitchenSinpopo BrandThe Garden Slug, Family and Pets Friendly The Nuts WarehouseSouth East Tyre112 KatongKatong Shopping CentreTeo Heng KTV StudioRoyal Sporting HouseFairprice Finest Marine Parade CentralAvantech Tao Nan SchoolHaig Girl’s SchoolCHIJ (Katong) Primary SchoolNafa Arts KindergartenMarine Parade Public LibraryPat's Schoolhouse KatongLittle Big Pre-SchoolRosemary Hall Montessori Childcare KatongPink Tower Montessori Masjid Abdul Aleem SiddiqueChrist Methodist ChurchChurch of the Holy FamilyChurch of SingaporeMahaprajna Buddhist SocietyTemple on 121 Koon Seng RoadXiang Lian SiCharis Methodist Church Merlion ParkMarina Bay SandsGardens by the BayChinatownFort Canning ParkSingapore Flyer Berkeley Residences is a freehold apartment complex constructed by Bvlgari Park Residences Pte. Ltd. The project was completed in the year 2015. There are a total of 22 units in the condominium. The sale prices is in the range i.e. S$ 1,080,000 - S$ 1,580,000. The rental rates of the units are in the range i.e. S$ 1,649 - S$ 1,984 The SoundOne AmberSuites @ East CoastParc EleganceCubik
View project details





















