Ascentia Sky
3 Alexandra View
S$ 9,000 /mo
Negotiable3
Beds
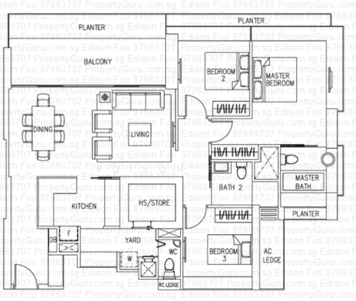
3
Baths
1,475
sqft
310 m (4 mins) from EW18 Redhill MRT
Ready to move in Apartment
About this property
Don't Miss Out! Abv 35th flr! Unblocked Greenery view!
- Renovated beautifully
- Unblock greenery and landed view
- Full-Furnished (can be discussed for Partial-furnished)
- Next to Redhill MRT Station and FairPrice Finest
- Friendly & approachable landlord
Keys on hand!
See it for yourself today!
Feel free to give me a call, Edison @ 9***** for viewing arrangements!
Tenants/Agents welcome!
Amenities
Air-conditioning
Balcony
Bathtub
Bombshelter
Common facilities
Gymnasium room
Jacuzzi
Lap pool
Multi-purpose hall
Ascentia Sky

Ascentia Sky is a leasehold apartment development that is located at Alexandria View in District 1. It is a condominium project that was completed recently. The project was completed in 2014 with a total of 373 units available for sale or rent. The apartment development is located close to public transportation that allows residents to move easily from one place to another from the apartment. There are many shops and amenities close to the apartment development which would ease the process for residents and they do not need to go far to find what they need as it is built in a strategic place. The project was developed by Wing Tai Holdings Ltd, a very large sized real-estate company that has built about 26 real estate projects in Singapore. - Ascentia Sky is a beautiful apartment development that has many charms to it. There are various facilities that residents can enjoy while living in Ascentia Sky. Residents of Ascentia Sky would not have to travel far to get their basic necessities as everything is close within their reach. Residents can enjoy the gymnasium room, lap pool, tennis court, Jacuzzi and if there is a meeting that you plan and can’t find a place there is a multi-purpose hall provided. There is a number of public transportation close to Ascentia Sky that residents can make use of. The closest MRT station to the apartment is Redhill ( EW18 ) MRT. The closest bus stops are located at Opp Tanglin View, Delta Sports Hall, Tiong Bahru Rd and Redhill Stn. For those with vehicles, the shopping district located at Orchard Road can be easily accessed via the Tanglin Road, Alexandra road and Grange Rd in 10 to 15 minutes. Ming Kitchen Seafood RestaurantSong of the Prince Korean Hot Stone BowlKFC Bukit Merah BranchHong Seng Curry RiceOld Chang Kee @ Bukit Merah Henderson Secondary SchoolBukit Merah Secondary SchoolGan Eng Seng SchoolAlexandria Primary SchoolCresent Girl’s School Providence Clinic @ RedhillDr Steven Ang Aesthetic & Family ClinicPacific Family ClinicLeong Clinic Ntuc Fairprice – Silver ACE Lengkok BahruGiant Express – Redhill CloseFair Price Bukit Merah CentralSheng Siong – Dawson SupermarketKhong Men Medical Store Ascentia Sky is an apartment development that is made up of a total of 373 units in 45-storey high buildings. There are 4 types of unit available with various layouts that residents can browse through. The size for the unit ranges between 947 square feet to 3,089 square feet. The layouts for the units in Vista Residence aim to provide residents with homes that is comfortable for working adults, couples or families looking to own a spacious and manageable condominium unit. The sale price for the units can go up to S$ 7,000,000. The rental for the units ranges between S$ 3,500 to S$ 7,500. Project Name: Ascentia SkyType: ApartmentDistrict: 1Configuration: 373 residential units Unit Types: 2 bedroom (947 sqft– 1,023 sqft)3 bedroom (1,475 sqft)4 bedrooms (1,733 sqft – 1,970 sqft)5 bedrooms (3,089 sqft) The following developments are projects developed by the same developer as Ascentia Sky:Cherry HillsHelios ResidenceThe BlossomvaleThe Light @ CairnHill The following developments are in the same neighbourhood as Ascentia Sky:Marina One ResidencesThe Sail @ Marina BayMarina Bay ResidencesFive on Shenton (V on Shenton)One ShentonRiviere
View project details

























