Amber Skye
8 Amber Road
S$ 6,600 /mo
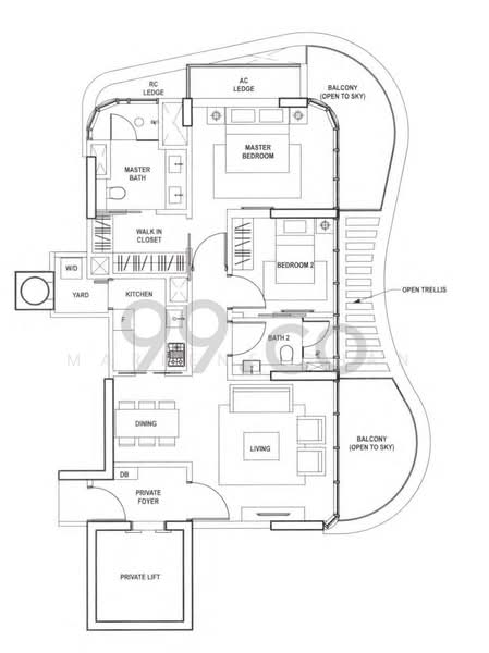
2
Beds
2
Baths
1,119
sqft (floor)
80 m (1 min) from TE25 Tanjong Katong MRT
Available from 29 Apr 2026
About this property
Rare and exclusive unit with private lift available! Doorstep to MRT
Call Marlene at 9***** !
- Doorstep distance to new Tanjong Katong MRT!
- Close to Canadian International School
- Walking distance to many eateries and cafes
- approximately 2 mins drive to Parkway Parade
- Easy access to major expressway like ECP, KPE, PIE
Actual unit comes partially furnished with no furniture. Only white goods appliances.
Photo illustrated might be from propertyguru default pictures.
Contact me to view now!
Amenities
Air-conditioning
Balcony
Common facilities
Barbeque pits
Clubhouse
Gymnasium room
Jacuzzi
Amber Skye

Amber SkyeAmber Skye is a freehold, luxury development in the lively heart of District 15. The surrounding area is packed with a huge range of dining and drinking options. It is also served by several bus routes connecting to all parts of the island, and the ECP is right behind the development. Amber Skye is also next door – the side gate opens on to the entrance – of the forthcoming Amber Road MRT Station. The development itself boasts a wide range of different options when it comes to the units available, from 1 bed flats up to 5 different types of villas and penthouses.Amber Skye is jointly developed by China Sonangol Land and OKP Land Pte Ltd. To date, China Sonangol Land has completed several residential luxury and commercial developments in Asia.Amber Skye – Unique Selling PointsThere are two main selling points for Amber Skye. First of all, there is the area it sits in. It is one of the most exciting areas to live and/or go out in, on the island, with a wealth of options when it comes to wining and dining all within easy walking distance. It is also very well connected, something that will improve even more when Amber Road MRT is finished – located right next to the development. Amber Skye itself, is a very well designed and built luxury condo, with many of the villas and penthouses having their own swimming pools. It is also a freehold property.Amber Skye – AccessibilityAccessibility is the byword, not just for District 15, but for Amber Skye in particular, especially when the Thomson East Coast Line is up and running. Amber Road Station will be right outside the side entrance to Amber Skye. Until then there are numerous busses that serve the area, taking you to all areas of the island. Amber Skye is located a stone’s throw from the ECP. Changi is 15 minutes in one direction, the other takes you directly to Suntec, Bugis and Marina Bay. When it comes to entertainment and dining options, it is hard to beat the local vicinity, for quality and choice.Amber Skye - Amenities & AttractionsDining near Amber Skye:Paradise TeochewRoland RestaurantJPOTKusina de PinoyRabbit Carrot GunShopping near Amber Skye:Katong Shopping CentreParamount Shopping CentreSchools and Education near Amber Skye:Tanjong Katong Girls SchoolChatsworth International SchoolNorthlight SecondaryBroadrick SecondaryAmber Skye - Project informationAmber Skye is a freehold residential development in the lively area of Tanjong Katong. Its 7 towers, located back to back house the 109 luxury units. As well as the 1, 2 and 3 bed standard units, Amber Skye also has 2 bed loft units, 3 and 4 bed penthouses, a 4 bed garden villa, 6 bed grand villas and 4 bed grandeur units.The units feature stone floors, high ceilings – up to 6 metres, and are done out in what is described as an Italian style, with the penthouses and villas having their own private pools. Facility wise Amber Skye relies on quality, instead of quantity, and has a 48 metre lap pool, sky terrace, gym and BBQ area, though there is no tennis court.Project Name: Amber SkyeAddress: 8 Amber RoadType: ApartmentTenure: FreeholdDistrict: 15Land size: 40,708 sqftConfiguration: 109 units/7 stacksUnit type:10 x 1-bedroom units (527 – 635 sqft)43 x 2-bedroom units (990 – 1,281 sqft)12 x 2-bedroom loft units (1,216 sqft)30 x 3-bedroom units (1,335 – 1,528 sqft)5 x 4-bedroom Grandeur units (2,540 – 2,982 sqft)1 x 4-bedroom Garden Villa (4,629 sqft)2 x 6-bedroom Grand Villa (5,059 & 5,177 sqft)1 x 3-bedroom Penthouse (3,326 sqft)5 x 4-bedroom Penthouse (3,348 – 4,112 sqft)Maintenance fees: $400 – $500 for 3-bedroomsParking lots: 112 parking lots and 3 handicap lots. (Including 6 private lots for villas)Expected TOP: 30th June 2017Amber Skye - Historical DataAs of 8th June 2017, 31 out of 109 units at Amber Skye had been sold, with the most recent having occurred on the 18th of May 2017. Sales have been steady if slow, possibly due to a combination of the developer’s low profile in Singapore and the fact the lowest priced unit is at $1M.Of those sales, 10 were for the 990 sqft 2 bed units. The median quantum for those was $1,940,400 which translates into $1,960 psf.Amber Skye - Related ProjectsThe following project is by the same developer as Amber Skye:TwentyOne Angullia ParkAmber Skye - Nearby ProjectsThe following developments are in the same neighbourhood as Amber Skye:Amber PointAmber ParkAmber Point38 Amber16@Amber
View project details


































