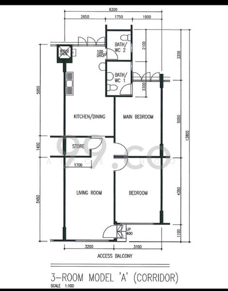
1 HDB Flat for Rent - 2 Bedrooms at 271 Tampines Street 21
Map View
We’ve shown you all the matches
Almost there!
Refining your recommendations.
This may take a few seconds...
271 Tampines Street 21
271 Tampines Street 21 520271(D18) Pasir Ris / Tampines
Summary
271 Tampines Street 21
Read more
Project details
TypeHDB
PriceS$ 900 - 3.2K
Completion year1984
Tenure99-year Leasehold
No. of blocks1
No. of floors11
DeveloperHousing & Development Board (HDB)











