Rivercove is a 624-unit executive condominium located at Anchorvale Lane and overlooking the Sungei Punggol. It has 3, 4 & 5-room units.
Project Name: Parc Life
Address: Sembawang Avenue
Type: Executive Condominium
Site area: Approx. 238,849 sqft
Tenure: 99-year leasehold
District: 27
Configuration: 628 units in 11, 15/16-storey blocks
Unit types: 46, 2BR units (764 – 775 sqft)
383, 3BR units (936 – 1,012 sqft)
105, 3BR + Universal verandah/vista (1,109 sqft)
78, 4BR units (1,270 – 1,259 sqft)
16, 5BR units (1,550 sqft)
Parking lots: 628
Expected TOP: 13th September 2018
Project Details
Parc Life is not the only development coming to Sembawang Crescent and Gambas Crescent. Skypark Residences is another upcoming EC that is close to Parc Life. It is slightly smaller in surface area and population density but it TOPs in January of 2017.
The one year gap may be off-putting for buyers, especially with yearly inflation but in this case, being in Sembawang may help to control prices better than if these properties were to be released a year apart in Orchard or Thomson for example.
With 628 units however, Parc Life is a massive development and the risk for big developments in less than popular districts in Singapore is high. A garish marketing video released by the developers to sell Sembawang as a good location may have hurt it more. This is terrible because despite being in the northern most region, Sembawang is actually a nice place to live in.
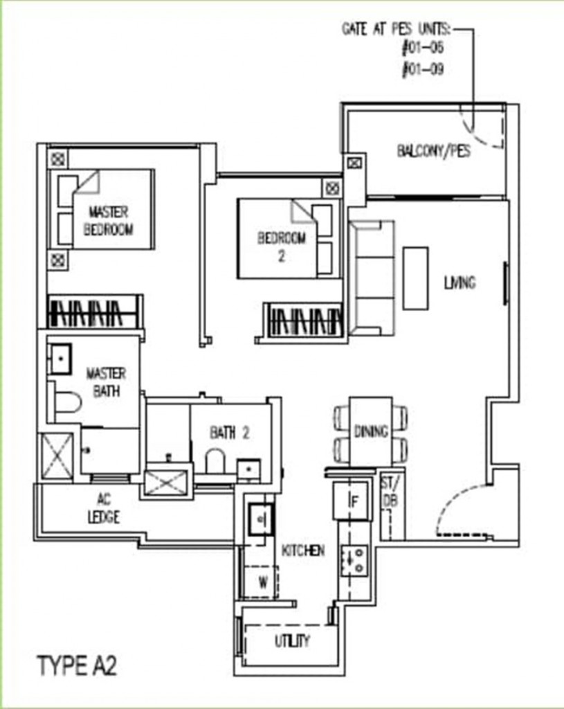
More importantly, the units in Parc Life are actually decently sized with rather good layouts.
The 2BR unit shown above starts at a typical size. But even at 775 sqft, it looks big enough for a family of three. The kitchen may be small as is usually the case with ECs, but it is big enough for a single person to work inside and with all the cabinets and countertops within reach. That accessibility is far more important than having a massive kitchen that demands you walk everywhere to get stuff.
The kitchen however, is not immediately visible as it is situated just behind the pillar. From the main door, it’s the living and dining area that you will first encounter but the configuration can be managed and tweaked at the resident’s discretion, after purchasing it.
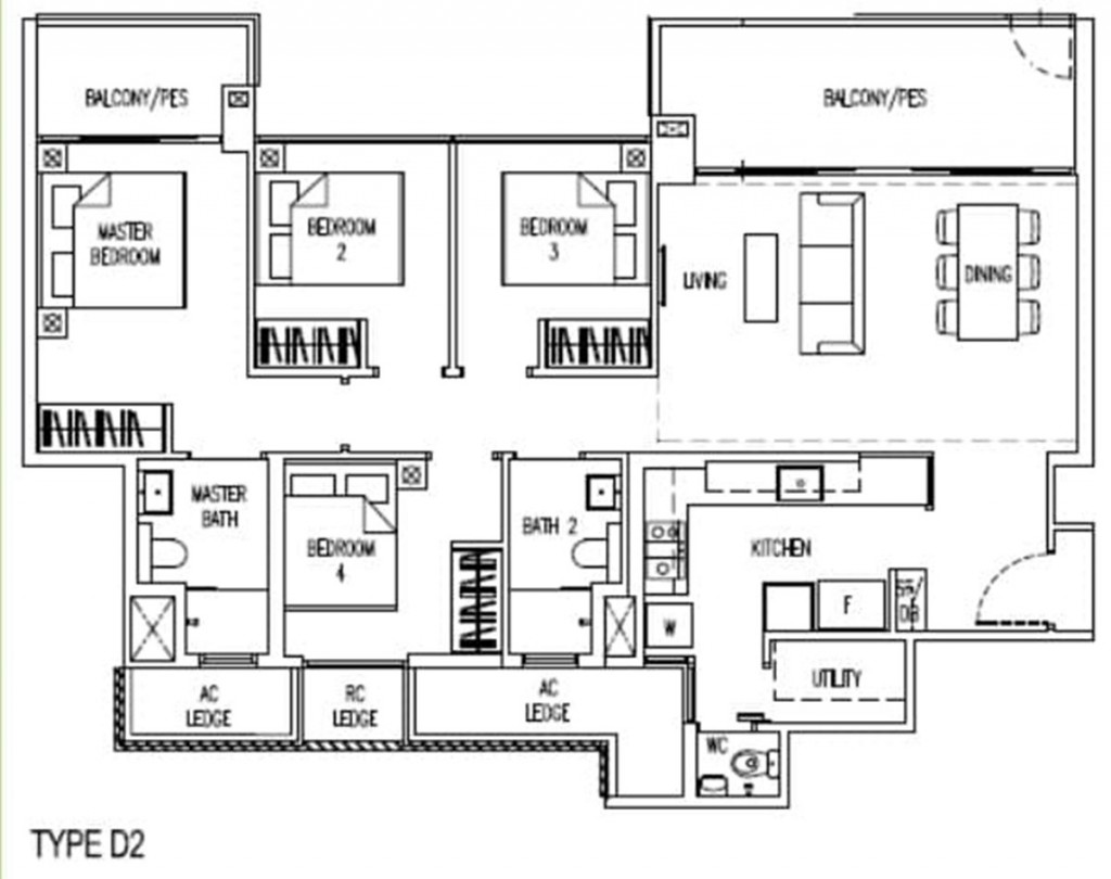
The 4BR units also have a decent layout, despite the large A/C ledges.
Part of the reason why larger A/C ledges and balconies are less contentious in ECs than condos is due to the price disparity. It’s not ideal but wasted space for a unit at $790 PSF is an easier pill to swallow than one that is $1,141 PSF. Besides, the balconies here are more long than wide and can be used as an extension of the living room.
Still, the 4BR unit could have done with one less balcony in favour of a larger master bedroom or a living room. The kitchen’s entrance here is opposite the main door which can be a good thing. When visitors come calling, at you’ll be within audible range to hear them knocking or ringing the bell.
The larger living room is beneficial too as it allows for a fairly big dining table to sit six to seven individuals. Bedrooms in all the units are as expected these days where they’re more functional as places of respite instead of leisure and entertainment.
But that isn’t to say that they’re not good-looking because they are. If you buy a vista unit that comes with an additional balcony for the master bedroom, that’s extra space to play around with. And since the units that face the park are largely unobstructed, you’ll get a good dose of indirect sunlight to keep the apartment looking big and feeling fresh.
Location
Executive Condominiums (ECs) nowadays seem to be the better option when compared with condominiums. That they begin the first ten years of their life under the auspices of HDB is irrelevant because eventually, they join the ranks of their condominium counterparts. It’s like secondary school where you have the Express and the Normal Academic streams. The Express students enter tertiary education faster than the NA students but given enough time, the playing field will even out and both sets of students will be on equal ground, defined only by their abilities.
In condominium terms, these abilities refer to its location and surrounding amenities and where Parc Life is concerned, its location is the scale upon which interest in the property is weighed, because very quickly, it will be judged on the same grounds as property that start out as private.
Sembawang is a tough sell, mostly because its name still brings up images of factories, swamps and forestry even though that visual is firmly in the past. Today it’s as full of HDB estates, hawker centres and schools as other districts.
Heartland malls like Sun Plaza exist for the benefit of the residents in the area even as new malls are being planned. But outside of people that already live in Sembawang or the areas surrounding it, it doesn’t give off the same impression as other, more commonly known districts.
It’s not as vivacious and bustling as Marine Parade is now, but even that district started from somewhere. As an example, long before there was as a cinema in 112 Katong, there was Republic Theatre – a cinema for the lack of a better word. Like Marine Parade, Sembawang is very much in the development phase now and it would be unfair to assume that it will stay this way forever. One walk through Sun Plaza and you’ll realize it’s nowhere as bad and pointless as Katong Mall was before that mall’s hefty renovation.
As a heartland mall, Sun Plaza is sufficient with numerous restaurants, a Kopitiam, a V.Hive furniture store (with some of the better furniture designs on the island, thus the higher price tags), banks and a grocery store. It has the essentials and then some, including a game shop and several phone outlets.
Malls aside, Sembawang has other interesting locales such as the 15 hectare Sembawang Park developed in the 70s and the historic Sembawang Hot Springs – Singapore’s only hot springs on the mainland. But while those two contribute to Singapore’s history, they’re largely irrelevant when deciding if Sembawang and Parc Life is the home for you.
The most important thing buyers new to the area need to ask is; how close is Parc Life to amenities, especially schools?
The answer is surprisingly, not far at all.
Sun Plaza which is integrated with Sembawang MRT station and bus interchange is about a 10-12 minute walk from Parc Life, though with several feeder buses going to and from there, you don’t have to walk.
There’s a bus stop directly in front of Parc Life’s main entrance and across the road so you can get to the MRT station in about five minutes, not including waiting time. So far, it looks like the interval between each bus is about eight to 10 minutes.
The closest eatery would be at the Canberra Community Club. It’s about a two minute walk from the entrance of Parc Life. Located across the street, at the traffic junction, the CC has a small café – Curry Café – and a POSB bank with ATMs.
The CC is also next to the Sembawang Neighbourhood Police Centre and across the road from Sembawang Primary School. The school raises the stock of Parc Life as well within the 2km radius, parents have a school they can enrol their kids in and not have to worry about additional transportation since it’s a two to three minute walk away.
The primary school is joined by Sembawang Secondary School which is located down the road from Parc Life, after the Singapore Christian Home. This is another three minute walk away.
With two schools, one primary and the other secondary, parents with children that are going to Primary 1 don’t have to worry much about having their children travel further away for at least 10 to 11 years (provided they attend both schools). And if this occurs as soon as the EC TOPs, Parc Life becomes private property just as your child graduates, allowing you to sell freely on the open market then, if you want to.
The other ‘feature’ Parc Life is raving about is the ‘two parks’ idea. Canberra Park is located just behind the development and should be seamlessly integrated with the planned greenery of the EC, despite it being public property. The concept is nice but other than playgrounds and swings, the park is nothing special. Even though it is new, the colour scheme applied to the shelters and other structures makes it look old and dull.
As a place to relax in, it’s sufficient but given how there are at least three new developments upcoming and an estimated 2,000 units in the area, the park is at a risk of overcrowding in the initial years before losing its novelty. As a result, the parks are a non-factor in the ultimate decision toward acquiring a unit in Parc Life.
The schools are the most attractive reasons as well as the development’s decent layouts for all their units.
Analysis
Out of 623 units, only 63 were transacted, all of which occurred during April of 2016. This was when Parc Life officially launched and as there has been no transactions reported since its launch, it is quite alarming.
Parc Life can be seen as a victim of surplus, what with so many ECs popping up. In nearby Canberra, there’s The Visionaire which is Singapore’s first smart home EC. Both are priced competitively close to one another although currently, Parc Life has the better location, as it is about a 10 to 12 minute walk to the existing Sembawang MRT station on a major line. But in the near future when Canberra MRT is up, The Visionaire residents are about two minutes away from it.
The high number of ECs in the market however makes most of that unimportant. There’s certainly too many ECs and so few of them are truly unique looking despite being built by different developers.
This shortcoming contributes to public exhaustion and for properties in far-flung Sembawang where buyers outside of those already living in the area aren’t finding enough reason to leave their own districts. Why would someone in Pasir Ris or Thomson move to Sembawang to live in a property where its biggest claim is that it is ‘only 30 minutes to the CBD’?
In such situations, lower quantums would have helped but Parc Life’s lowest was $590K for a 764 sqft unit. This lower price was course corrected to be competitive with The Visionaire. However, for a property in Sembawang, unless the developers expect all 628 people to be upgraders from the area, the price can be seen as a little steep even if it is much lower than what the Visionaire is going for. Parc Life’s PSF values on currently transacted units are as follows:
Compared to Skypark Residences however, Parc Life commands the higher quantum for smaller units. A 1,109 sqft unit in Parc Life has a median transacted price of $883,500 with an average $794PSF. Skypark Residences’ 1,141 sqft unit has a median transacted of $881,750 with an average $773PSF.
It also has lesser units – 506 – but has seen consistent sales from 2013 until now where the latest number stands at 483 units purchased. Perhaps Parc Life will make up its numbers in the coming years but with several competitors, in the area, it looks like an uphill battle.
Rental
Sembawang Crescent is being developed for the new properties but around them, along Sembawang Drive are HDB estates. The low 2.44% rental yield by URA supports this as HDB flats are traditionally occupied by the buyers. With new ECs in the area, rental yield may increase in the future, provided several enhancements are made to Sembawang Crescent. A shopping mall there will help, otherwise a significant increase in rental yield is not expected.
Buyers may be able to sell at a profit but investors looking to rent out units in Parc Life need to consider very strongly. Given the large number of competitors, supply may in fact exceed demand.
Speculating about the future with many of the pieces on the chessboard currently waiting to move can oftentimes lead to erroneous analysis but it does look like the decks are stacked against Parc Life. The location is decent but aside from being quiet and less chaotic than other districts, there’s little going on here. Parc Life is dependent on its location and the smart money is on the gradual future returns rather than immediate. Therefore, if you are a patient investor, then there’s room for growth here.
Summary
Parc Life is a decently built executive condominium in a location that has yet to come into its own. There are more wide opened spaces and plots of forestry than actual amenities in the immediate area and while this is great for people who love nature, it may be a bit lacking for others.
Being 30 minutes to the CBD is not a selling point, especially since that claim does not take into consideration waiting time for bus and the train, crowds and overall stability of travelling. A good thing however is that Sembawang is on the north-south line and is two stops from Woodlands Interchange and six stops to Bishan Interchange. It’s also on the same line as Orchard, Somerset and Dhoby Gaut so while travelling will take long, the trains are less occupied at Sembawang MRT station than they would be at Woodlands or Bishan.
Ordinarily, Parc Life would have seen a larger volume of sales but with supply of ECs, especially high-density ones, increasing all over the island, it’s probable that Parc Life’s slow transactions is a symptom of the EC market being flooded with more supply than demand.
But it is possible Parc Life will pick up the slack eventually. It’s hardly a bad property and nowhere near some of the worst offenders of the year which is why it is painful to see that sales has slowed to a crawl.
But with TOP not for another two years, there is much that can happen in this window. Parc Life and Sembawang Crescent is a nice place to raise kids for a good few years and with a Primary School less than 1km from the EC, Parc Life is a good option for parents with young children.















