97 Aljunied Crescent
97 Aljunied Crescent
S$ 410,000
Negotiable2
Beds
1
Bath
818
sqft (floor)
S$ 501
psf (floor)
930 m (11 mins) from EW9 Aljunied MRT
About this property
High floor 818sf 3rm near MRT. Genuine seller. Corridor-end unit.
$410K nego !
View to offer !
Motivated seller !
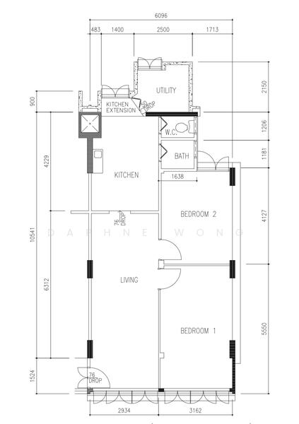
Bright and Spacious 3-Room Flat (76sqm/818 sq ft).
See attached floor plan.
Enjoy a well-designed layout with generous living space and excellent ventilation.
This 3-room unit offers 2 good-sized bedrooms, 1 bathroom + 1 separate toilet, and a useful utility room perfect for storage or household needs.
Transport & Connectivity
• Nearest MRT stations within walking distance: Aljunied MRT Station (EW-line) ~620 m, Mattar MRT Station (DT-line) ~680 m, and MacPherson MRT Station (DT/CC) ~760 m — giving easy access across Singapore. 
• Multiple bus stops nearby for flexible travel by bus. 
• Good road connections via major roads and expressways — useful for residents who drive.
Amenities & Daily Conveniences
• Supermarkets right nearby: FairPrice (just ~130–140 m away) and Sheng Siong Supermarket (~220–240 m) — very convenient for groceries and daily needs. 
• Malls and retail hubs within easy reach: Paya Lebar Square, Paya Lebar Quarter (PLQ), and Singapore Post Centre — great for shopping, dining, lifestyle and services. 
• Nearby everyday services: local minimarts, clinics, banking/ATM access, post office — making errands simple and close to home.
Education & Community Facilities
• Several schools nearby: Geylang Methodist School (Primary), Canossa Catholic Primary School, and Kong Hwa School, among others, ideal for families with children. 
• Established, mature estate feel with long-standing amenities and community
Viewing by appointment only !
#Aljunied
#3rm
#matured estate
#high floor
#geylang
#city
View to offer !
Motivated seller !
Bright and Spacious 3-Room Flat (76sqm/818 sq ft).
See attached floor plan.
Enjoy a well-designed layout with generous living space and excellent ventilation.
This 3-room unit offers 2 good-sized bedrooms, 1 bathroom + 1 separate toilet, and a useful utility room perfect for storage or household needs.
Transport & Connectivity
• Nearest MRT stations within walking distance: Aljunied MRT Station (EW-line) ~620 m, Mattar MRT Station (DT-line) ~680 m, and MacPherson MRT Station (DT/CC) ~760 m — giving easy access across Singapore. 
• Multiple bus stops nearby for flexible travel by bus. 
• Good road connections via major roads and expressways — useful for residents who drive.
Amenities & Daily Conveniences
• Supermarkets right nearby: FairPrice (just ~130–140 m away) and Sheng Siong Supermarket (~220–240 m) — very convenient for groceries and daily needs. 
• Malls and retail hubs within easy reach: Paya Lebar Square, Paya Lebar Quarter (PLQ), and Singapore Post Centre — great for shopping, dining, lifestyle and services. 
• Nearby everyday services: local minimarts, clinics, banking/ATM access, post office — making errands simple and close to home.
Education & Community Facilities
• Several schools nearby: Geylang Methodist School (Primary), Canossa Catholic Primary School, and Kong Hwa School, among others, ideal for families with children. 
• Established, mature estate feel with long-standing amenities and community
Viewing by appointment only !
#Aljunied
#3rm
#matured estate
#high floor
#geylang
#city
Amenities
Utility
Common facilities
Car park
Affordability
Can I afford this property?
Tell us your monthly income and expenses to see if this home fits your budget.
Mortgage breakdown
Est. monthly repayment
S$ 0 / mo
S$ 0 Principal
S$ 0 Interest
Upfront costs
Total downpayment
S$ 0
Downpayment
S$ 0 Loan amount at 0% Loan-to-value
97 Aljunied Crescent

97 Aljunied Crescent
View project detailsFAQs
The sale price of this unit at 97 Aljunied Crescent is S$ 410,000.
Current PSF at 97 Aljunied Crescent is about S$ 501.22 psf.
The estimated loan repayment is S$ 1,271 / mo.
97 Aljunied Crescent is located at 97 Aljunied Crescent Eunos / Geylang / Paya Lebar Balestier / Geylang (D12-14).
Floor size of this unit at 97 Aljunied Crescent is 818 sqft.
Explore other options in and around Eunos / Geylang / Paya Lebar
Based on the property criteria, you might be interested on the following
HDB Flat For Sale
Show MoreNearest MRT Stations























