503 Bedok North Street 3
503 Bedok North Street 3
S$ 450,000
Negotiable2
Beds
1
Bath
753
sqft (floor)
S$ 598
psf (floor)
750 m (9 mins) from DT30 Bedok Reservoir MRT
About this property
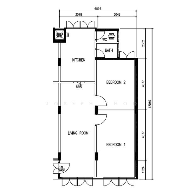
Corner Unit
Stylish 3I(Modified) HDB in the Heart of Bedok North — Convenience, Comfort, and Everyday Value
Positioned in a sought-after Bedok North enclave, this well-kept 2-bedroom home presents a compelling opportunity for buyers seeking a practical layout and strong connectivity. Enjoy a balanced lifestyle with everyday amenities, reputable schools, and transport links all within easy reach, offering a seamless living experience for singles, couples, or small families.
Property Highlights
- Address: BLK 503 Bedok North Street 3
- Property Type: HDB apartment
- Tenure: Public housing
- Asking Price: S$450,000
- Bedrooms: 2
- Functional layout that supports comfortable living and efficient space planning
- Bright interiors with good natural airflow to enhance day-to-day comfort
- Well-positioned within a mature estate known for amenities, dining options, and daily conveniences
- Practical choice for buyers eyeing long-term value and location-driven appeal
- Ideal for first-time homeowners, right-sizers, or investors seeking a strong rental catchment
Education Within Easy Reach
- Fengshan Primary School (0.20KM)
- Yu Neng Primary School (0.28KM)
- Red Swastika School (Primary) (0.35KM)
- Bedok Green Secondary School (0.44KM)
- Damai Secondary School (0.85KM)
- Anglican High School (Secondary) (0.96KM)
Connectivity and Transport
- Bedok Reservoir MRT (0.57KM)
- Bedok MRT (0.88KM)
Why This Home Stands Out
- Strategically located for swift access to transport, market places, eateries, parks, and community amenities
- Strong neighborhood profile with a blend of convenience and calm
- Sensible price point for a 2-bedroom address in a well-established locale
- Easy-to-maintain space that supports both work-from-home and relaxed downtime
Seize this opportunity to secure a well-situated home in Bedok North that ticks the boxes for comfort, convenience, and long-term appeal. For viewing arrangements and more details, contact JOSEPH KHOO at 9***** .
Positioned in a sought-after Bedok North enclave, this well-kept 2-bedroom home presents a compelling opportunity for buyers seeking a practical layout and strong connectivity. Enjoy a balanced lifestyle with everyday amenities, reputable schools, and transport links all within easy reach, offering a seamless living experience for singles, couples, or small families.
Property Highlights
- Address: BLK 503 Bedok North Street 3
- Property Type: HDB apartment
- Tenure: Public housing
- Asking Price: S$450,000
- Bedrooms: 2
- Functional layout that supports comfortable living and efficient space planning
- Bright interiors with good natural airflow to enhance day-to-day comfort
- Well-positioned within a mature estate known for amenities, dining options, and daily conveniences
- Practical choice for buyers eyeing long-term value and location-driven appeal
- Ideal for first-time homeowners, right-sizers, or investors seeking a strong rental catchment
Education Within Easy Reach
- Fengshan Primary School (0.20KM)
- Yu Neng Primary School (0.28KM)
- Red Swastika School (Primary) (0.35KM)
- Bedok Green Secondary School (0.44KM)
- Damai Secondary School (0.85KM)
- Anglican High School (Secondary) (0.96KM)
Connectivity and Transport
- Bedok Reservoir MRT (0.57KM)
- Bedok MRT (0.88KM)
Why This Home Stands Out
- Strategically located for swift access to transport, market places, eateries, parks, and community amenities
- Strong neighborhood profile with a blend of convenience and calm
- Sensible price point for a 2-bedroom address in a well-established locale
- Easy-to-maintain space that supports both work-from-home and relaxed downtime
Seize this opportunity to secure a well-situated home in Bedok North that ticks the boxes for comfort, convenience, and long-term appeal. For viewing arrangements and more details, contact JOSEPH KHOO at 9***** .
Affordability
Can I afford this property?
Tell us your monthly income and expenses to see if this home fits your budget.
Mortgage breakdown
Est. monthly repayment
S$ 0 / mo
S$ 0 Principal
S$ 0 Interest
Upfront costs
Total downpayment
S$ 0
Downpayment
S$ 0 Loan amount at 0% Loan-to-value
503 Bedok North Street 3

503 Bedok North Street 3
View project detailsFAQs
The sale price of this unit at 503 Bedok North Street 3 is S$ 450,000.
Current PSF at 503 Bedok North Street 3 is about S$ 597.61 psf.
The estimated loan repayment is S$ 1,395 / mo.
503 Bedok North Street 3 is located at 503 Bedok North Street 3 Bedok / Upper East Coast East Coast (D15-16).
Floor size of this unit at 503 Bedok North Street 3 is 753 sqft.
Explore other options in and around Bedok / Upper East Coast
Based on the property criteria, you might be interested on the following
HDB Flat For Sale
Show MoreNearest MRT Stations

















