273A Jurong West Avenue 3
273A Jurong West Avenue 3
S$ 550,000
Starting From3
Beds
2
Baths
1,195
sqft (floor)
S$ 460
psf (floor)
730 m (9 mins) from JS6 Jurong West MRT
About this property
Renovated Corner Unit With Plentiful Amenities @ Jurong West!
CEA Registration: L3010858B / R063104G
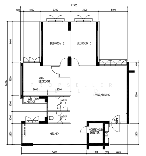
Discover an ideal family-friendly home where space and tranquillity come together. This generous unit offers a peaceful environment complemented by a practical and comfortable layout, featuring three bedrooms and two bathrooms—perfect for growing families.
Daily convenience is ensured with public transport, grocery options, and dining choices all just a short walk away. Commuting is easy with quick access to nearby transport links, and families will appreciate having multiple schools within a close radius, providing a range of educational options.
With its spacious design and well-planned layout, this home offers an excellent living experience for families seeking comfort and accessibility. Contact us today to arrange a viewing and explore the possibilities of making this your next home.
Size:
- 1195sqft.
- 3 bedrooms + 2 bathrooms
Attributes:
- EIP Quota: Indian not eligible
- Extension needed: 3 months strictly
- Unit orientation: Corner unit
- Low-floor unit
- Renovated condition
- Main door facing North-West
- Views from the unit: Street
Convenience:
- 1 min walk to the nearest bus stop (Blk 273B)
- 3 bus stops to the nearest MRT (Boon Lay EW27)
- 5 min walk to the nearest supermarket
- 5 min walk to the nearest eateries
- Schools within 1 km: Corporation Primary, West Grove Primary, and Westwood Primary
- Schools within 1-2 km: Frontier Primary, Jurong West Primary, and more
Discover an ideal family-friendly home where space and tranquillity come together. This generous unit offers a peaceful environment complemented by a practical and comfortable layout, featuring three bedrooms and two bathrooms—perfect for growing families.
Daily convenience is ensured with public transport, grocery options, and dining choices all just a short walk away. Commuting is easy with quick access to nearby transport links, and families will appreciate having multiple schools within a close radius, providing a range of educational options.
With its spacious design and well-planned layout, this home offers an excellent living experience for families seeking comfort and accessibility. Contact us today to arrange a viewing and explore the possibilities of making this your next home.
Size:
- 1195sqft.
- 3 bedrooms + 2 bathrooms
Attributes:
- EIP Quota: Indian not eligible
- Extension needed: 3 months strictly
- Unit orientation: Corner unit
- Low-floor unit
- Renovated condition
- Main door facing North-West
- Views from the unit: Street
Convenience:
- 1 min walk to the nearest bus stop (Blk 273B)
- 3 bus stops to the nearest MRT (Boon Lay EW27)
- 5 min walk to the nearest supermarket
- 5 min walk to the nearest eateries
- Schools within 1 km: Corporation Primary, West Grove Primary, and Westwood Primary
- Schools within 1-2 km: Frontier Primary, Jurong West Primary, and more
Amenities
Air conditioner
Common facilities
24 hours security
Affordability
Can I afford this property?
Tell us your monthly income and expenses to see if this home fits your budget.
Mortgage breakdown
Est. monthly repayment
S$ 0 / mo
S$ 0 Principal
S$ 0 Interest
Upfront costs
Total downpayment
S$ 0
Downpayment
S$ 0 Loan amount at 0% Loan-to-value
273A Jurong West Avenue 3

273A Jurong West Avenue 3
View project detailsFAQs
The sale price of this unit at 273A Jurong West Avenue 3 is S$ 550,000.
Current PSF at 273A Jurong West Avenue 3 is about S$ 460.25 psf.
The estimated loan repayment is S$ 1,705 / mo.
273A Jurong West Avenue 3 is located at 273A Jurong West Avenue 3 Boon Lay / Jurong / Tuas West (D22-24).
Floor size of this unit at 273A Jurong West Avenue 3 is 1,195 sqft.
Explore other options in and around Boon Lay / Jurong / Tuas
Based on the property criteria, you might be interested on the following
HDB Flat For Sale
Show MoreNearest MRT Stations
















