Listing has an ongoing offer.You can still contact the agent to indicate interest in the property
18C MacPherson Residency
18C Circuit Road
S$ 979,000
Negotiable3
Beds
2
Baths
1,001
sqft
S$ 978
psf
530 m (6 mins) from CC10/DT26 MacPherson MRT
About this property
Serious Seller! Beautiful Corner 4RM. Mins to MRT, Mall & Food Centre
Beautiful Corner 4-Room HDB for Sale at 18C Circuit Road – Rare & Convenient Location! Serious Seller!
Unit Highlights:
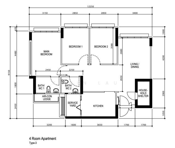
- Rare corner 4-room HDB (3 bedrooms) with good privacy
- North-South facing – excellent airflow and no west sun
- Bright and well-ventilated layout
- Ideal for families and own-stay buyers
Super Convenient Location:
- Mins walk to MacPherson MRT (Circle & Downtown Line)
- Short walk to Circuit Road Hawker Centre & multiple coffee shops
- Sheng Siong supermarket just downstairs
- Daily amenities right at your doorstep
Family Friendly Environment:
- Childcare and infant care located just downstairs
- Surrounded by reputable schools: Canossa Catholic / Cedar Primary / Maha Bodhi / Maris Stella / Geylang Methodist
*some pictures are served as artists impression*
Should any owners require assistance in selling or renting your unit in Singapore, all marketing spends are free and covered with professional photography and videography.
Hi, I'm Kevin Lau, a Singapore Property Investment Consultant at ERA Realty Network Pte Ltd.
With a Master of Philosophy from the University of Hong Kong and Certified Public Accountant (CPA) credentials, I bring over a decade of experience running my own real estate business and 20+ years of global expertise in investments and MNCs.
As an asset progression strategist, I’m passionate about helping families elevate their lifestyle through smart, strategic property investments. Whether you’re a first-time buyer or a seasoned investor, I’m here to make your property journey seamless and rewarding.
Check out kevinlauconsultancy webpage to discover how I can help you achieve your property goals!
您好,我是刘先生,新加坡ERA地产公司的房地产投资顾问。
我拥有香港大学哲学硕士学位,同时是注册会计师(CPA),具备超过十年的房地产创业经验,以及逾20年的跨国公司和投资领域的全球专业背景。
作为一名资产增值策略师,我致力于通过明智、战略性的房地产投资,帮助家庭提升生活品质。不论您是首次购房者还是经验丰富的投资者,我都将为您提供无缝且富有回报的房地产旅程。
微信ID:kevinlauconsultancy ,了解如何助您实现您的房地产目标!
Unit Highlights:
- Rare corner 4-room HDB (3 bedrooms) with good privacy
- North-South facing – excellent airflow and no west sun
- Bright and well-ventilated layout
- Ideal for families and own-stay buyers
Super Convenient Location:
- Mins walk to MacPherson MRT (Circle & Downtown Line)
- Short walk to Circuit Road Hawker Centre & multiple coffee shops
- Sheng Siong supermarket just downstairs
- Daily amenities right at your doorstep
Family Friendly Environment:
- Childcare and infant care located just downstairs
- Surrounded by reputable schools: Canossa Catholic / Cedar Primary / Maha Bodhi / Maris Stella / Geylang Methodist
*some pictures are served as artists impression*
Should any owners require assistance in selling or renting your unit in Singapore, all marketing spends are free and covered with professional photography and videography.
Hi, I'm Kevin Lau, a Singapore Property Investment Consultant at ERA Realty Network Pte Ltd.
With a Master of Philosophy from the University of Hong Kong and Certified Public Accountant (CPA) credentials, I bring over a decade of experience running my own real estate business and 20+ years of global expertise in investments and MNCs.
As an asset progression strategist, I’m passionate about helping families elevate their lifestyle through smart, strategic property investments. Whether you’re a first-time buyer or a seasoned investor, I’m here to make your property journey seamless and rewarding.
Check out kevinlauconsultancy webpage to discover how I can help you achieve your property goals!
您好,我是刘先生,新加坡ERA地产公司的房地产投资顾问。
我拥有香港大学哲学硕士学位,同时是注册会计师(CPA),具备超过十年的房地产创业经验,以及逾20年的跨国公司和投资领域的全球专业背景。
作为一名资产增值策略师,我致力于通过明智、战略性的房地产投资,帮助家庭提升生活品质。不论您是首次购房者还是经验丰富的投资者,我都将为您提供无缝且富有回报的房地产旅程。
微信ID:kevinlauconsultancy ,了解如何助您实现您的房地产目标!
Common facilities
Car park
Affordability
Can I afford this property?
Tell us your monthly income and expenses to see if this home fits your budget.
Mortgage breakdown
Est. monthly repayment
S$ 0 / mo
S$ 0 Principal
S$ 0 Interest
Upfront costs
Total downpayment
S$ 0
Downpayment
S$ 0 Loan amount at 0% Loan-to-value
18C MacPherson Residency
FAQs
The sale price of this unit at 18C MacPherson Residency is S$ 979,000.
Current PSF at 18C MacPherson Residency is about S$ 978.02 psf.
The estimated loan repayment is S$ 2,920 / mo.
18C MacPherson Residency is located at 18C Circuit Road Macpherson / Potong Pasir Balestier / Geylang (D12-14).
Floor size of this unit at 18C MacPherson Residency is 1,001 sqft.
Explore other options in and around Macpherson / Potong Pasir
Based on the property criteria, you might be interested on the following
HDB Flat For Sale
Show MoreNearest MRT Stations






















