1 Saint George's Road
1 Saint George's Road
S$ 550,000
Starting From3
Beds
1
Bath
883
sqft (floor)
S$ 623
psf (floor)
580 m (7 mins) from NE9 Boon Keng MRT
About this property
No Extension Needed! Centrally Located Unit Near Boon Keng MRT!
CEA Registration: L3010858B / R063104G
This unit is located at the corridor end, providing an extra boost of security and keeping it away from nosy neighbours. With no extension needed, you can take over the unit upon the completion of the sale with no fuss. Competitively priced, this unit is perfect for those who are looking to furnish and renovate the whole unit to their own liking, a perfect canvas for you to unleash your creativity!
The bus stop is right outside the block, connecting you to different MRT stations along the way. If you want further connectivity to the rest of the island, the nearest MRT station is just within walking distance. Right out your doorstep, there are plenty of eateries for you to choose from, making sure that you will never go hungry. To replenish your daily essentials and groceries, there is a grocery store nearby as well! There are many reputable schools that are close to the unit, making it one of the prime locations for those with school-aged children.
What are you waiting for?! Schedule a viewing with us today!
Exclusive Propseller Listing!
Size:
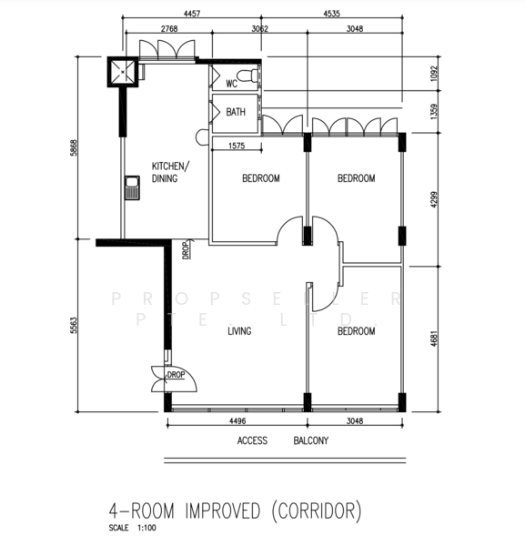
- 883 sqft
- 3 bedrooms + 1 bathroom
Attributes:
- EIP Quota: None
- No extension needed
- Corridor-end unit
- Middle floor unit
- Original condition
- The main door faces South-East
- Views from the unit: Courtyard
Convenience:
- 1 min walk to Blk 1 bus stop (Services: 140)
- 8 min walk to NE9, Boon Keng MRT Station (North-East Line)
- 8 min walk to Sheng Siong Supermarket
- 1 min walk to the nearest eateries around Blk 3 & 4
- 3 min walk to St Wilfred ActiveSG Sports Centre
- 11 min walk to Bendemeer Market & Food Centre
- 12 min walk to Kallang CC
- Within 1-2 km of these schools: St. Joseph's Institution Junior, Pei Chun Public, Hong Wen Primary, St. Andrew's Junior, and more.
DISCLAIMER: The price listed is a "Starting From" amount, intended to encourage viewings and offers. It does not reflect the final sale price. Buyers are invited to submit their best offer after viewing
This unit is located at the corridor end, providing an extra boost of security and keeping it away from nosy neighbours. With no extension needed, you can take over the unit upon the completion of the sale with no fuss. Competitively priced, this unit is perfect for those who are looking to furnish and renovate the whole unit to their own liking, a perfect canvas for you to unleash your creativity!
The bus stop is right outside the block, connecting you to different MRT stations along the way. If you want further connectivity to the rest of the island, the nearest MRT station is just within walking distance. Right out your doorstep, there are plenty of eateries for you to choose from, making sure that you will never go hungry. To replenish your daily essentials and groceries, there is a grocery store nearby as well! There are many reputable schools that are close to the unit, making it one of the prime locations for those with school-aged children.
What are you waiting for?! Schedule a viewing with us today!
Exclusive Propseller Listing!
Size:
- 883 sqft
- 3 bedrooms + 1 bathroom
Attributes:
- EIP Quota: None
- No extension needed
- Corridor-end unit
- Middle floor unit
- Original condition
- The main door faces South-East
- Views from the unit: Courtyard
Convenience:
- 1 min walk to Blk 1 bus stop (Services: 140)
- 8 min walk to NE9, Boon Keng MRT Station (North-East Line)
- 8 min walk to Sheng Siong Supermarket
- 1 min walk to the nearest eateries around Blk 3 & 4
- 3 min walk to St Wilfred ActiveSG Sports Centre
- 11 min walk to Bendemeer Market & Food Centre
- 12 min walk to Kallang CC
- Within 1-2 km of these schools: St. Joseph's Institution Junior, Pei Chun Public, Hong Wen Primary, St. Andrew's Junior, and more.
DISCLAIMER: The price listed is a "Starting From" amount, intended to encourage viewings and offers. It does not reflect the final sale price. Buyers are invited to submit their best offer after viewing
Amenities
Original condition
Affordability
Can I afford this property?
Tell us your monthly income and expenses to see if this home fits your budget.
Mortgage breakdown
Est. monthly repayment
S$ 0 / mo
S$ 0 Principal
S$ 0 Interest
Upfront costs
Total downpayment
S$ 0
Downpayment
S$ 0 Loan amount at 0% Loan-to-value
1 Saint George's Road

1 Saint George's Road
View project detailsFAQs
The sale price of this unit at 1 Saint George's Road is S$ 550,000.
Current PSF at 1 Saint George's Road is about S$ 622.88 psf.
The estimated loan repayment is S$ 1,705 / mo.
1 Saint George's Road is located at 1 Saint George's Road Balestier / Toa Payoh Balestier / Geylang (D12-14).
Floor size of this unit at 1 Saint George's Road is 883 sqft.
Explore other options in and around Balestier / Toa Payoh
Based on the property criteria, you might be interested on the following
HDB Flat For Sale
Show MoreNearest MRT Stations