813 Tampines Street 81
813 Tampines Street 81
S$ 3,100 /mo
Negotiable2
Beds
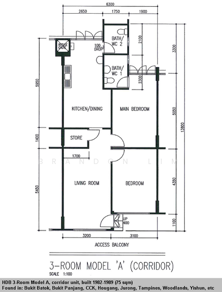
2
Baths
786
sqft (floor)
390 m (5 mins) from DT31 Tampines West MRT
Ready to move in HDB Flat
About this property
Unfurnished 3 Rm flat for rental in Tampines, 5 mins to MRT.
3 Room flat for rent.
High floor
Near Amenities
Unfurnished
Market
Tampines West Community Centre
Subway, Macdonalds, Mr Teh Tarik, 24 Hour eateries nearby.
MRT in 5 mins walk.
Simple unit, aircon available.
Call for more information
Brandon Lim
ERA Realty Network Private Limited
Senior Marketing Director
+6*****
High floor
Near Amenities
Unfurnished
Market
Tampines West Community Centre
Subway, Macdonalds, Mr Teh Tarik, 24 Hour eateries nearby.
MRT in 5 mins walk.
Simple unit, aircon available.
Call for more information
Brandon Lim
ERA Realty Network Private Limited
Senior Marketing Director
+6*****
813 Tampines Street 81

813 Tampines Street 81
View project detailsFAQs
There are 2 bedroom(s) with 2 bathroom(s) in this unit.
The rent of this unit at 813 Tampines Street 81 is about S$ 3,100 /mo.
The current rental PSF at 813 Tampines Street 81 is about S$ 3.94 psf.
813 Tampines Street 81 is located at 813 Tampines Street 81 Pasir Ris / Tampines Changi / Pasir Ris (D17-18).
Floor size of this unit at 813 Tampines Street 81 is 786 sqft.
Explore other options in and around Pasir Ris / Tampines
Based on the property criteria, you might be interested on the following
HDB Flat For Rent
Show MoreNearest MRT Stations












