122 Pending Road
122 Pending Road
S$ 2,800 /mo
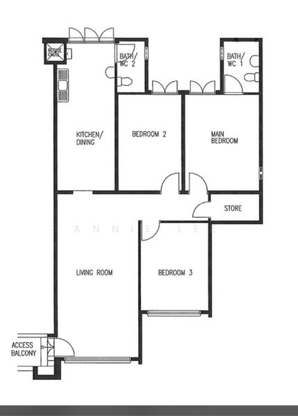
2
Beds
2
Baths
1,108
sqft (floor)
440 m (5 mins) from BP8 Pending LRT
Ready to move in HDB Flat
About this property
122 Pending Road
Discover an exceptional opportunity to reside in the heart of District 23 with this active rental listing at 122 Pending Road. This HDB apartment offers a blend of comfort and convenience, perfectly suited for young professionals, families, and those seeking a luxurious lifestyle at an affordable price. With a monthly rental of just $2,600, enjoy the vibrant community and modern living in a well-maintained setting.
This property features two spacious bedrooms and two well-appointed bathrooms, ensuring ample space and privacy for its residents. Constructed in 1988 and boasting a lease tenure of 99 years, this apartment reflects quality living with its thoughtful design and enduring appeal. Located at 122 Pending Road 670122, this apartment provides easy access to nearby amenities and transportation, making it an ideal choice for those looking to balance work and leisure effortlessly.
Positioned in a prime location within a sought-after neighborhood, this HDB apartment allows you to experience the charm and dynamism of District 23. Whether you are a young professional seeking proximity to the city or a family desiring a nurturing environment, this listing caters to diverse needs. Don't miss the chance to make 122 Pending Road your new home – where comfort meets affordability in a thriving community.
This property features two spacious bedrooms and two well-appointed bathrooms, ensuring ample space and privacy for its residents. Constructed in 1988 and boasting a lease tenure of 99 years, this apartment reflects quality living with its thoughtful design and enduring appeal. Located at 122 Pending Road 670122, this apartment provides easy access to nearby amenities and transportation, making it an ideal choice for those looking to balance work and leisure effortlessly.
Positioned in a prime location within a sought-after neighborhood, this HDB apartment allows you to experience the charm and dynamism of District 23. Whether you are a young professional seeking proximity to the city or a family desiring a nurturing environment, this listing caters to diverse needs. Don't miss the chance to make 122 Pending Road your new home – where comfort meets affordability in a thriving community.
Amenities
Air-conditioning
Bombshelter
Cooker hob/hood
Corner unit
Common facilities
Car park
122 Pending Road

122 Pending Road
View project detailsFAQs
There are 2 bedroom(s) with 2 bathroom(s) in this unit.
The rent of this unit at 122 Pending Road is about S$ 2,800 /mo.
The current rental PSF at 122 Pending Road is about S$ 2.53 psf.
122 Pending Road is located at 122 Pending Road Dairy Farm / Bukit Panjang / Choa Chu Kang West (D22-24).
Floor size of this unit at 122 Pending Road is 1,108 sqft.
Explore other options in and around Dairy Farm / Bukit Panjang / Choa Chu Kang
Based on the property criteria, you might be interested on the following
Nearest MRT Stations





















