Victoria Park Villas
Victoria Park Grove
S$ 6,600,000
Negotiable6
Beds
6
Baths
2,539
sqft (land)
S$ 2,599.45
psf (land)
940 m (11 mins) from DT8 Tan Kah Kee MRT
1.4 km (17 mins) from CC20 Farrer Road MRT
About this property
Semi-D with home lift, ensuites for all bedrooms.
Located in Good Class Bungalow Area. Prestigious address.
Flagship landed development by CapitaLand.
Main door face north.
Can park 2 cars.
Schindler lift to all levels.
Efficient layout with stairs tucked one side.
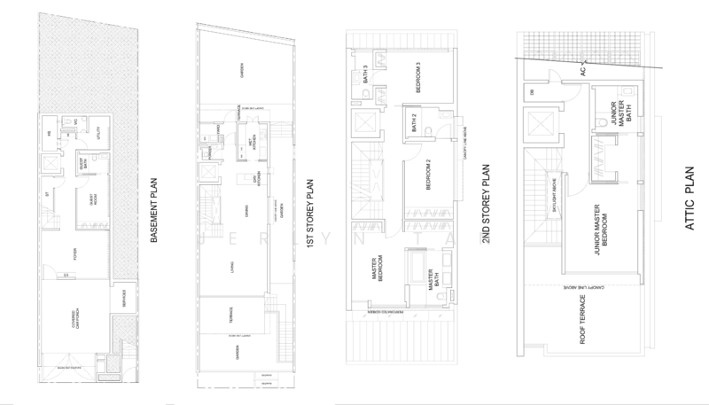
• Basement
Entrance.
Park 2 cars.
Study room or guest room.
Helper room.
2nd living room.
Store room.
• Level 1
Width 5.6m
Ceiling height 2.99m
Ducted aircon in living area
Dry kitchen and wet kitchen.
Front and rear terrace.
Open garden.
Powder room.
Yard.
Level 2
Master bedroom with ducted aircon.
2 ensuite bedrooms.
Ceiling height 2.9m
Level 3
Junior master bedroom with walk in wardrobe and ensuite bathroom.
Ceiling sloping from 4m to 2.7m
Skylight.
Land area 2539 sqft.
Built-up area 4,187 sqft.
TOP 2018.
View today and secure this as your next home!
Amenities
Air conditioner
Balcony
Covered car parking
Common facilities
Car park
Affordability
Tell us your monthly income and expenses to see if this home fits your budget.
Victoria Park Villas

Victoria Park VillasVictoria Park Villas, located on an elevated land in a Good Class Bungalow area within District 10, is an extremely prestigious residential development. Comprised of 109 landed homes, made up of 100 semi-detached garden villas, 6 semi-detached pool villas and 3 detached bungalows, Victoria Park Villas has been specifically designed to allow the living quarters of each home to overlook their private garden or pool area. They also feature an innovative ABB Smart Home System, basement car park and lift for each unit. Victoria Park Villas are located in a very quiet and respected neighbourhood, but are still only 10 minutes’ walk from both Farrer Road and Tan Kah Kee MRT Stations, as well as a 5 minute drive to Holland Village and Dempsey Hill, and 10 minutes to Orchard Road.CapitaLand is one of Asia’s main real estate companies based and listed in Singapore. Their diversified global real estate portfolio includes joined developments, shopping malls, serviced residences, offices and housing projects. CapitaLand’s main markets include Singapore, China, Indonesia, Malaysia & Vietnam being a potential new growth market.Victoria Park Villas – Unique Selling PointsThere are many aspects that stand out for Victoria Park Villas. Its location in a Good Class Bungalow area is one, and the whole development has an air of exclusivity. The units themselves are designed by 3 separate architects giving the whole development a less homogenous look and feel. All units also come with a lift, giving flexibility to the living arrangements, and not forcing senior family members to take the ground floor. Because of the basement carparks, the living quarters look out onto the pool or garden areas. Victoria Park Villas also feature the ABB Smart Home System, allowing residents to remotely turn on and off lights and the air conditioning system, as well as monitor energy usage within their home.Victoria Park Villas – AccessibilityLocated where it is in a Good Class Bungalow area, there is nothing in the immediate vicinity of Victoria Park Villas. There are amenities within easy reach however. Farrer Road MRT on the Circle Line, and Tan Kah Kee on the Downtown Line are a 10 minute walk away. There are numerous dining options at the vicinity of both Sixth Avenue and Tan Kah Kee stations. Both Dempsey Hill and Holland Village are a short drive away from Victoria Park Villas, with Orchard Road only 10 minutes by car. Bukit Timah Road and the PIE are both located nearby affording access to all other parts of the island.Victoria Park Villas - Amenities & AttractionsDining near Victoria Park Villas:Mai ThaiSamy’s CurryJim ThompsonEl PatioShopping near Victoria Park Villas:Holland Road Shopping CentreCoronation PlazaOrchard RoadSchools and Education near Victoria Park Villas:Nanyang Primary SchoolNanyang Girls High SchoolSt Margaret’s Secondary SchoolHwa Chong International SchoolVictoria Park Villas - Project informationVictoria Park Villas are a luxury residential development in a Good Class Bungalow area of District 10 designed for multi-generational living at its finest. The design of the estate, which is itself on a small hill, is ground breaking, with the developer scooping out the earth to create basement carparks, and hence eliminating one of the common issues of landed property, namely the living quarters overlooking the parking spaces. The three types of homes at Victoria Park are the semi-detached pool and garden villas, and the detached bungalows. The three variations are designed by different architects and each unit comes with a lift, giving extra flexibility to the living arrangements.All units at Victoria Park Villas feature Miele appliances and Ernestomeda breathable cabinets, specially designed to cope with the Singaporean climate.Project Name: Victoria Park VillasAddress: 1 Victoria Park GroveType: 109 luxury landed homesSite area: 403,000 sqftTenure: 99 years leaseholdDistrict: 10 Configuration: 109 unitsUnit types:100 x Semi Detached Garden Villas (4,166 – 5,285 sqft)6 x Semi Detached Pool Villas (6,082 – 6,943 sqft)3 x Detached Bungalows (10,904 – 11,539 sqft)TOP: 31st December 2018Victoria Park Villas - Historical DataBy September 2016, there had been 8 caveated transactions for Victoria Park Villas, all as a result of a soft launch just over a month before. All of those were for semi-detached houses and were for between $4,347,000 and $5,135,000. The median price for those sales works out at $2,005 psf.Victoria Park Villas - Related ProjectsThe following projects are by the same developer as Victoria Park Villas:Cairnhill NineSky HabitatMarine BlueThe InterlaceVictoria Park Villas - Nearby ProjectsThe following developments are in the same neighbourhood as Victoria Park Villas:Charming GardenSpanish VillageGallop Gablesthe Levelz
View project details



















