⭐ Triple Treat! Brand New 2-Sty (4 Level) Detached Series w Natural Basement, Attic, Pool and Lift
S$ 12,180,000
Negotiable6
Beds
9
Baths
4,317
sqft (land)
S$ 2,821
psf (land)
580 m (7 mins) from CC14 Lorong Chuan MRT
About this property
New $1.2M Discount! TOP soon- Call to view all detached series in D13!
3 Units of Brand New Detached Homes for Multi-Generational Living!
Exclusive units by renowned builder & award-winning architect, feat. expansive interiors with premium finishes across 4 levels of modern luxury.
Located in prestigious Braddell Heights Estate, these homes offer the perfect mix of convenience & sophistication; ideally situated just minutes from key transport hubs.
Highlights
•••••••••••••••••••••
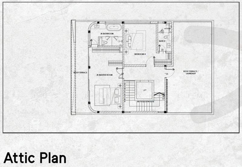
• Family Entertainment Hall with Pool View
• Roof Terrace Accessible on 2 sides of the Attic Level
• Naturally Lit Basement
• Skylight Ceiling
•••••••••••••••••••••
UNIT DESCRIPTION
___________
Plot 1: 12.18 MIL (600K DISCOUNT!)
• Land Size: 4317 sqft (approx.)
• Built Up: 8698 sqft (approx.)
Plot 2: 14.68 MIL
• Land Size: 5766 sqft (approx.)
• Built Up: 10,123 sqft (approx.)
Plot 3: 13.38 MIL (1.2 MIL DISCOUNT!)
• Land Size: 5617 sqft (approx.)
• Built Up: 13,603 sqft (approx.)
• 6/7 Ensuite Bedrooms + 1 Helper’s Room w Attached Bath
• Powder Room
• Dry Kitchen + Enclosed Wet Kitchen
• Master Bed & Junior Master Bed comes with a Walk-In Wardrobe (& Balcony)
• Junior Master Bed has direct access to Open Roof Terrace
• Est. TOP Q4 2025
• Able to Park 2 Cars
Schools within 1KM:
• St Gabriel Pri Sch
• Yang Zheng Pri Sch
• Australian International Sch
Schools within 2KM:
• Maris Stella High Sch
• St Gabriel Sec
• Kuo Chuan Presbyterian Pri/Sec Sch
• Nanyang Junior College
Shopping within 3KM:
• NEX Shopping Centre
• Upper Serangoon SC
• Woodleigh Mall
• Junction 8 SC
• Kovan Heartland Mall
MRT Stations:
• Lor Chuan 850m
• Serangoon 1KM
• Woodleigh 1.3KM
Photos are for illustration purposes only.
Call now for viewing or enquiries!
+6*****
Justin Alexis Lim
Website - linktr.ee/justinalexislim
Disclaimer: All land & built-up areas are based on approximate measurements and are subject to final survey and shall not form part of any offer or contract or constitute any warranty by the salesperson & shall not be regarded as statements of facts.
Exclusive units by renowned builder & award-winning architect, feat. expansive interiors with premium finishes across 4 levels of modern luxury.
Located in prestigious Braddell Heights Estate, these homes offer the perfect mix of convenience & sophistication; ideally situated just minutes from key transport hubs.
Highlights
•••••••••••••••••••••
• Family Entertainment Hall with Pool View
• Roof Terrace Accessible on 2 sides of the Attic Level
• Naturally Lit Basement
• Skylight Ceiling
•••••••••••••••••••••
UNIT DESCRIPTION
___________
Plot 1: 12.18 MIL (600K DISCOUNT!)
• Land Size: 4317 sqft (approx.)
• Built Up: 8698 sqft (approx.)
Plot 2: 14.68 MIL
• Land Size: 5766 sqft (approx.)
• Built Up: 10,123 sqft (approx.)
Plot 3: 13.38 MIL (1.2 MIL DISCOUNT!)
• Land Size: 5617 sqft (approx.)
• Built Up: 13,603 sqft (approx.)
• 6/7 Ensuite Bedrooms + 1 Helper’s Room w Attached Bath
• Powder Room
• Dry Kitchen + Enclosed Wet Kitchen
• Master Bed & Junior Master Bed comes with a Walk-In Wardrobe (& Balcony)
• Junior Master Bed has direct access to Open Roof Terrace
• Est. TOP Q4 2025
• Able to Park 2 Cars
Schools within 1KM:
• St Gabriel Pri Sch
• Yang Zheng Pri Sch
• Australian International Sch
Schools within 2KM:
• Maris Stella High Sch
• St Gabriel Sec
• Kuo Chuan Presbyterian Pri/Sec Sch
• Nanyang Junior College
Shopping within 3KM:
• NEX Shopping Centre
• Upper Serangoon SC
• Woodleigh Mall
• Junction 8 SC
• Kovan Heartland Mall
MRT Stations:
• Lor Chuan 850m
• Serangoon 1KM
• Woodleigh 1.3KM
Photos are for illustration purposes only.
Call now for viewing or enquiries!
+6*****
Justin Alexis Lim
Website - linktr.ee/justinalexislim
Disclaimer: All land & built-up areas are based on approximate measurements and are subject to final survey and shall not form part of any offer or contract or constitute any warranty by the salesperson & shall not be regarded as statements of facts.
Affordability
Can I afford this property?
Tell us your monthly income and expenses to see if this home fits your budget.
Mortgage breakdown
Est. monthly repayment
S$ 0 / mo
S$ 0 Principal
S$ 0 Interest
Upfront costs
Total downpayment
S$ 0
Downpayment
S$ 0 Loan amount at 0% Loan-to-value
FAQs
The sale price of this unit at ⭐ Triple Treat! Brand New 2-Sty (4 Level) Detached Series w Natural Basement, Attic, Pool and Lift is S$ 12,180,000.
Current PSF at ⭐ Triple Treat! Brand New 2-Sty (4 Level) Detached Series w Natural Basement, Attic, Pool and Lift is about S$ 2,821.40 psf.
The estimated loan repayment is S$ 35,715 / mo.
⭐ Triple Treat! Brand New 2-Sty (4 Level) Detached Series w Natural Basement, Attic, Pool and Lift is located at Macpherson / Potong Pasir .
Floor size of this unit at ⭐ Triple Treat! Brand New 2-Sty (4 Level) Detached Series w Natural Basement, Attic, Pool and Lift is 8,698 sqft.
Explore other options in and around Macpherson / Potong Pasir
Based on the property criteria, you might be interested on the following
Detached House For Sale
Nearest MRT Stations


















