The Commodore
59 Canberra Drive
S$ 1,800,000
Starting From3
Beds
3
Baths
1,023
sqft
S$ 1,759.53
psf
330 m (4 mins) from NS12 Canberra MRT
About this property
Canberra low density good 3 bedroom condo
* Low density, peaceful place. Good sunlight and ventilation
* Good layout. 3 bedroom plus storage room
* Nice place for self and rental
* Walking distance to Fairprice and food court
* 3 Primary School within 1km
# Ahmad Ibrahim Primary School
# Sembawang Primary School
# Yishun Primary School
* 步行3分钟到Canberra 地铁站
* 小高层,低密度,安静舒适
* 好的采光和通风
* 3个卧室加上储藏室,良好的格局。非常适合自住和出租
* 步行可到超市和食阁
* 1公里内3所小学
Common facilities
24 hours security
Car park
Lap pool
Playground
Affordability
Tell us your monthly income and expenses to see if this home fits your budget.
The Commodore

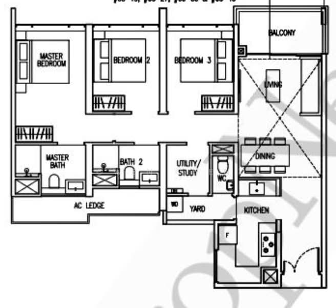
The Commodore is a 99-year leasehold condo by developer JBE Holdings in Yishun (D27) along Canberra Drive. Comprising 219 units and six residential blocks, the low-rise condo is a new development that will replace the forested area along Canberra Drive, which was sold under the Government Land Sale (GLS) program in March 2020. The Commodore is expected to be completed (or obtain its Temporary Occupation Permit or TOP) in Q1 2026.The low entry price compared to resale condo options in the area makes the development an affordable choice, especially if you are looking for a private property near an MRT station. There is even a sheltered linkway to Canberra MRT. With 1-bedroom options at The Commodore, it caters to buyers with budgets as low as $700k. In addition, Canberra is an up-and-coming estate with potential for a significant capital gain for property investment. Prices start at just $1k+ psf.Canberra MRT station is the nearest MRT station to The Commodore, and is within walking distance ( 300m). The condo is also a short drive away from the Gambas Avenue/Woodlands Avenue 12 route that will connect you to the Seletar Expressway (SLE).The residents have access to more than 30 facilities, thanks to the big site area that the development sits on. The facilities are focused on a few key themes such as nature, personal wellness, and family-friendly activities. Residents can find green spaces around the development, from a garden lounge to picnic lawn. There are also multiple personal wellness corners, including the gym, cardio fitness corner, and physio fitness corner. The condo comes with a child-friendly pool, family lounge, children’s playground, tree house, and children’s activity room that create opportunities for family bonding time.With Primary and Secondary schools surrounding the development, you can easily find schooling options around the area. There are a total of eight Primary schools and four secondary schools in the vicinity of The Commodore. Yishun Innova Junior College is also located right at the cusp of the 2km radius.Immediate nearby healthcare facilities includes Admiralty Medical Centre, Khoo Teck Puat Hospital, and Yishun Community Hospital. You can also get access to subsidized healthcare at Canberra Polyclinic at the new Bukit Canberra Integrated Hub.Though Canberra is a new estate, you can still find a variety of shopping malls around The Commodore. From the nearby Canberra Plaza and Sembawang Shopping Centre to Sun Plaza and Yishun Northpoint City, those who live at The Commodore won’t run out of dining and shopping options.Residents can find lots of restaurants and eateries in the four shopping malls (Canberra Plaza, Sembawang Shopping Centre, Sun Plaza, Yishun Northpoint City) around Yishun/Canberra. There is also a hawker centre at the newly opened Bukit Canberra Integrated Hub. You can also find a number of famous eateries along the shophouses opposite Sembawang Shopping Centre. This is also where the famous Sembawang White Beehoon made its name.The Commodore is located in the northern region of Singapore where you can find industrial parks like Proxima @ Gambas, ARK @ Gambas, Nordcom I, Nordcom II, and Ascent @ Gambas. Besides job opportunities in the industrial area, there are also many new and interesting integrated one-stop hubs like Bukit Canberra, Canberra Plaza, and Woodlands Health Campus that have started operating in the north. This has created a positive effect on the job opportunities in the region. Besides that, under the URA Master Plan, Sembawang Shipyard is set to cease operations and turned into a mixed-use waterfront lifestyle precinct. There will be development opportunities to turn Sembawang’s unique coastal profile into new waterfront public spaces and bring new life into the area. More than just creating a more vibrant precinct, this development will also bring more jobs to the north of Singapore.The Commodore is a 6-block condo located on a site area of 143,325 sq ft, which is the size of almost 2.5 football fields. Each block is five storeys tall and comes with a total of 44 stacks to yield a total of 219 units.Below are unit types, number of units and size range of units in the development.25 Units463 sq ft Size25 Units624 sq ft Size60 Units743 to 915 sq ft Size20 Units969 to 1,152 sq ft Size25 Units1,023 to 1,184 sq ft Size19 Units1,184 to 1,356 sq ft Size27 Units1,270 to 1,464 sq ft Size8 Units1,421 to 1,658 sq ft Size20 Units1,668 to 1,916 sq ft SizeThe monthly maintenance fees for each unit at the development is estimated to be from $1,100 to $2,400, payable to management.The Commodore is developed by Oasis Development Pte Ltd, a subsidiary under JBE Holdings Group. JBE Holdings Group is one of the boutique developers in Singapore and has been around since 2004. To date, they have more than 15 years of experience in residential and mixed-use developments. They have completed multiple developments and their portfolio includes The Luxe, Skypark Residences EC, and Signature at Yishun.The Commodore’s new launch took place in November 2021 with 219 units put up for sale and is expected to be completed and obtain its Temporary Occupation Permit (TOP) in Q1 2026.The showflat is located at the actual site of the condo, which puts it in close proximity to Canberra MRT station. Located just 300m from Canberra MRT station, the showflat is a 5-minute walk away.The Commodore selling price is expected to be from $1,030 psf onwards and the listing is below for sale and rental. To find out the latest selling price, you can check out the other available condo units on PropertyGuru.
View project details









