The Alps Residences
103 Tampines Street 86
S$ 1,450,000
Negotiable3
Beds
2
Baths
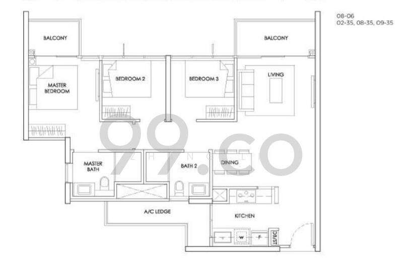
936
sqft (floor)
S$ 1,549
psf (floor)
About this property
Alps 3br for sale
- low floor, facing HDB
- Seller did a partition for a store room but not big enough as maid room.
- Within 1 km of Poi Ching and St. Hilda's Primary School, near UWC international school and other education institutions
- amenities nearby
- shuttle bus to Tampinines MRT
Currently tenanted till 31 May 2026, Sell with tenancy.
For viewing, pls WhatsApp Zhang Li @ 9***** to make an appointment. Thank you:)
Common facilities
24 hours security
Barbeque pits
Children's playground
Clubhouse
Affordability
Tell us your monthly income and expenses to see if this home fits your budget.
The Alps Residences

The Alps ResidencesSituated in a currently undeveloped part of Tampines in District 18, The Alps Residences is a very competitively priced, very well designed and built residential development. Though the immediate vicinity has few if any amenities, this will undoubtedly change as more developers and developments move into the area. The Alps Residences is equidistant between Tampines Central and Pasir Ris, and for those with transport it is relatively easy to get to a good range of different commercial and retail centres. There will also be an increase in the number of bus routes serving the area, and the developer themselves are putting on 2 shuttle busses that take residents to either Tampines MRT Station or to one of its mixed developments.MCC Land (Singapore) Pte Ltd is part of the MCC Group in Singapore which is a subsidiary of the Fortune 500 company Metallurgy Corporation of China Ltd. It is a total building services provider with capabilities in property development, construction and project management, as well as engineering services.The Alps Residences – Unique Selling PointsThe Alps Residences represents an ideal opportunity to buy into – at very competitive prices – what will surely become a popular and sought after area. Currently undeveloped this area of Tampines will see major development and gentrification in forthcoming years, and The Alps Residences provides some of the cheapest – and best value – units available anywhere in Singapore. The development itself is well designed by a developer who knows and understands the market.The Alps Residences – AccessibilityThere is very little in the immediate vicinity of The Alps Residences as of yet, but that will change over the years to come as more developments come to the area. It is not close to any MRT stations, even the forthcoming Tampines West Station will not be that near, but there will be increased bus services in the area, including ones straight to Bedok North. Tampines Avenue 10, on which The Alps Residences is situated, leads to the TPE and Pasir Ris, the former subsequently linking with the PIE and ECP. Courts Megastore, Giant and IKEA are also a short drive away. MCC Land will initially be laying on 2 shuttle buses for The Alps Residences, one going to and from Tampines MRT Station, and the other to Poiz Residences, one of its developments that has a shopping mall within it.The Alps Residences - Amenities & AttractionsDining near The Alps Residences:Soi Thai KitchenAlsalam RestaurantSeoul Garden RestaurantCrystal Jade KitchenJin Hock SeafoodShopping near The Alps Residences:Tampines 1Tampines MallCentury SquareSchools and Education near The Alps Residences:Hilda's Secondary SchoolEast View Primary SchoolSpringfield Secondary SchoolMeridian Junior CollegeUWCThe Alps Residences - Project informationThe Alps Residences is a residential development located in a so far undeveloped part of Tampines. MCC Land have created a very affordable condominium that concentrates on making the most of the space it has, sacrificing such features as balconies. The units are all well designed, with the quality increasing in step with their size – and cost.Project Name: The Alps ResidencesAddress: Tampines Ave 10, Singapore 528573Type: CondominiumSite area: approx. 16,8567.1 sqftTenure: 99-years leaseholdDistrict: 18Configuration:Configuration: 626 residential unitsUnit types:56 x 1BR (441 – 463 sqft)126 x 1BR + study (495 – 506 sqft)183 x 2BR (689 – 700 sqft)55 x 2BR + study (689 sqft)178 x 3BR (936 – 1,087 sqft)22 x 4BR (1,410 sqft)4 x 4BR penthouses (1,668 – 2,088 sqft)2 x 5BR penthouses (2,486 sqft)TOP: 2020The Alps Residences - Historical DataThe Alps Residences were officially launched over the weekend of 1st and 2nd of October 2016. Over those 2 days, 270 of the 626 units were sold, 88% of which were 1 or 2 bed. Prices at The Alps Residences, especially when it comes to the 1 bed units are among some of the lowest on the island for condominiums and start at $491K.The prices for the units, at launch were:1BR: $491k to $538k1+1BR: $536k to $610k2BR: $693k to $806k2+1BR: $691k to $751k3BR (smaller): $918k to $1.04m3BR (bigger): $1.04m to $1.14m4BR: $1.37m to $1.44mThe Alps Residences - Related ProjectsThe following projects are by the same developer as The Alps Residences:NorthwaveSea HorizonThe Poiz ResidencesThe Alps Residences - Nearby ProjectsThe following developments are in the same neighbourhood as The Alps Residences:The SantoriniArc at TampinesQ Bay ResidencesWaterview
View project details

































