Symphony Suites
11 Yishun Close
S$ 1,238,888
3
Beds
2
Baths
915
sqft
S$ 1,353.98
psf
About this property
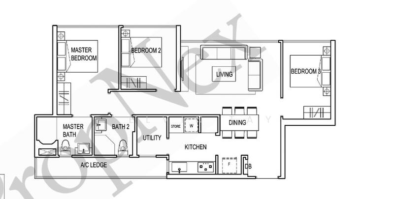
For Sale: 3 Bedroom Condominium at 11, Yishun Close
Amenities
Air conditioner
Covered car parking
Security guard
Common facilities
Car park
Affordability
Tell us your monthly income and expenses to see if this home fits your budget.
Symphony Suites

Symphony Suites is a 99-year leasehold condominium located at Yishun Close, Singapore 768004, in District 27. Developed by EL Development (Yishun) Pte. Ltd., the project reached completion in 2019 and features a total of 660 residential units. The condominium development comprises 11 blocks rising to 15 storeys, forming a modern residential address within the Yishun estate. The condominium offers a range of two - to four-bedroom apartments. This mix supports a range of lifestyle needs, whether for singles, couples, or families who prefer more space. Each unit layout focuses on practical living, natural light, and efficient use of space. The overall design combines comfort and function while maintaining a calm residential setting. Symphony Suites is located in Yishun, a well-known residential town in northern Singapore. District 27 continues to see development plans under the Yishun Master Plan and the North Coast Innovation Corridor, supporting long-term growth in the region. This adds value to the surrounding community and strengthens its appeal as a residential choice. The development is close to green spaces and park connectors, providing residents with access to outdoor recreation. The presence of nature parks and open areas allows residents to enjoy morning walks, jogging, or simple relaxation away from busy city zones. Another key feature lies in its balanced setting. While it offers access to transport and shopping, it also maintains a quieter environment than central districts. The layout of the blocks and landscaped areas within the project enhances privacy and promotes a peaceful atmosphere. Connectivity remains one of Symphony Suites' strong points. Residents can access Yishun MRT Station (NS13) on the North South Line with a short bus ride or drive. For drivers, the development is well connected to key expressways, including the Seletar Expressway (SLE), Tampines Expressway (TPE), and Central Expressway (CTE). These routes support smoother travel towards the city centre and other regions across the island. Retail and lifestyle options are available nearby. Northpoint City stands as one of the main shopping centres in the area. It offers retail shops, dining outlets, supermarkets, and daily services. Residents can complete most errands within a short distance from home. The surrounding Yishun neighbourhood also features community facilities, recreational spaces, and public services. This established environment supports daily living without the need to travel far for essentials. Symphony Suites occupies a regular-shaped site at Yishun Close in District 27. The blocks rise to around 15 storeys and are arranged to allow space between buildings. This supports ventilation and residents' privacy. Symphony Suites Condominium 27 660 residential units The development layout emphasises open spaces, landscaped gardens, and water features. The facility layout supports both active and relaxing lifestyles. Facilities within the development include: 50 metre Lap Pool Family Pool and Aqua Gym Wading and Children’s Pools Clubhouse Gym Tennis Court Half Basketball Court Jogging Path Fitness Corners BBQ Pavilion Party Pavilion Sunken Water Cove Water Lounges Childcare Centre Jacuzzi and Spa Areas These elements help create a calm and pleasant environment within the residential compound. Families staying at Symphony Suites have access to several choice schools in the Yishun area. These include: Northland Secondary School Xishan Primary School Yishun Town Secondary School The presence of these schools provides families with options for different education levels within a short distance from home. Residents of Symphony Suites can explore various dining options in and around Yishun. Some nearby choices include: Labula Mala Sichuan Restaurant @ Yishun Unnie Korean Restaurant Riverside Canton Claypot Cuisine These dining outlets provide a mix of local and international flavours. Healthcare access remains convenient for residents. Nearby clinics include: Medivale Medical Clinic HMI OneCare Clinic Junction 9 Royal Care Medical Yishun Junction 9 These clinics provide general medical services for residents in the area. Daily grocery shopping remains simple with several supermarkets close to the development: Sri Murugan grocery store Sheng Siong Supermarket Prime Supermarket These supermarkets supply fresh produce, household goods, and daily essentials. The central area of the development houses the main pool and communal facilities. Surrounding walkways connect the compound's different parts, enabling smooth movement throughout the property. Landscaped zones add greenery throughout the site. Two bedrooms: 689 sq ft Three bedrooms: 786 sq ft to 797 sq ft Three bedrooms Premium: 893 sq ft to 915 sq ft Four bedrooms: 1,023 sq ft The larger units provide additional bedrooms, attached master bathrooms, and more spacious living areas. This mix accommodates households of different sizes and preferences. EL Development develops Symphony Suites through its Yishun entity. The developer has delivered multiple residential projects across Singapore. Its portfolio includes private condominiums and other housing developments, reflecting steady involvement in the local property market. The developer focuses on practical layouts, modern design, and functional facilities. Symphony Suites reflects this approach through its planning, unit mix, and communal spaces. Other related projects by the same developer include: Blossoms By The Park Parc Riviera La Fiesta These developments add to the developer’s residential portfolio across different districts in Singapore. Symphony Suites forms part of a wider residential cluster in Yishun. Nearby projects include: Nine Residences North Park Residences The Canopy These neighbouring developments contribute to an active, established community in the area. Symphony Suites offers a balanced residential option within District 27. Its location in Yishun provides access to transport links, retail centres, dining options, and daily services. The overall layout supports comfortable living with practical design features across the estate. Combined with practical unit sizes and on-site amenities, Symphony Suites presents a suitable choice for families, couples, and individuals seeking a home in the northern region of Singapore. Residents can enjoy a balanced environment that brings together convenience, accessibility, and everyday functionality. For more details on available units and pricing, visit the Symphony Suites sale or rent page today.
View project details

































