Spacious House Near Pasir Panjang MRT Station
S$ 4,800,000
Negotiable5
Beds
5
Baths
1,700
sqft (land)
S$ 2,824
psf (land)
720 m (9 mins) from CC26 Pasir Panjang MRT
About this property
Spacious 5-Bedroom House Near Pasir Panjang MRT Station
DISCLAIMER: Photos are of the actual interior structure. Only the furniture are AI-generated.
Discover a wonderful opportunity to own a freehold inter-terrace home in the charming Pasir Panjang neighbourhood, offering spacious living, excellent connectivity, and a peaceful residential environment.
Spacious Family Home
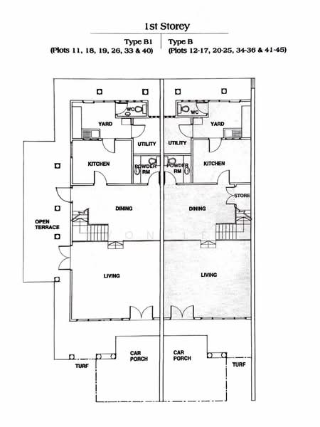
This well-sized property features 5 generous bedrooms, along with a helper’s room and helper’s bathroom, providing ample space for large or multi-generational families.
Bright, Breezy & Tranquil
Situated in a quiet cul-de-sac, the house enjoys minimal traffic and a serene atmosphere. The home is naturally bright and well-ventilated, creating a comfortable living environment throughout.
Excellent Connectivity
Less than 10 minutes’ walk to Pasir Panjang MRT station, as well as Pasir Panjang Food Centre and nearby shops, offering everyday convenience right at your doorstep.
Close to Nature
Nature lovers will appreciate the proximity to Kent Ridge Park, perfect for morning jogs, cycling, or relaxing walks surrounded by greenery.
Minutes to the City
Only about a 10-minute drive to the CBD, making it ideal for professionals who want to enjoy landed living while staying close to the city.
Discover a wonderful opportunity to own a freehold inter-terrace home in the charming Pasir Panjang neighbourhood, offering spacious living, excellent connectivity, and a peaceful residential environment.
Spacious Family Home
This well-sized property features 5 generous bedrooms, along with a helper’s room and helper’s bathroom, providing ample space for large or multi-generational families.
Bright, Breezy & Tranquil
Situated in a quiet cul-de-sac, the house enjoys minimal traffic and a serene atmosphere. The home is naturally bright and well-ventilated, creating a comfortable living environment throughout.
Excellent Connectivity
Less than 10 minutes’ walk to Pasir Panjang MRT station, as well as Pasir Panjang Food Centre and nearby shops, offering everyday convenience right at your doorstep.
Close to Nature
Nature lovers will appreciate the proximity to Kent Ridge Park, perfect for morning jogs, cycling, or relaxing walks surrounded by greenery.
Minutes to the City
Only about a 10-minute drive to the CBD, making it ideal for professionals who want to enjoy landed living while staying close to the city.
Affordability
Can I afford this property?
Tell us your monthly income and expenses to see if this home fits your budget.
Mortgage breakdown
Est. monthly repayment
S$ 0 / mo
S$ 0 Principal
S$ 0 Interest
Upfront costs
Total downpayment
S$ 0
Downpayment
S$ 0 Loan amount at 0% Loan-to-value
FAQs
The sale price of this unit at Spacious House Near Pasir Panjang MRT Station is S$ 4,800,000.
Current PSF at Spacious House Near Pasir Panjang MRT Station is about S$ 2,823.53 psf.
The estimated loan repayment is S$ 14,075 / mo.
Spacious House Near Pasir Panjang MRT Station is located at Buona Vista / West Coast / Clementi New Town City & South West (D01-08).
Floor size of this unit at Spacious House Near Pasir Panjang MRT Station is 3,000 sqft.
Explore other options in and around Buona Vista / West Coast / Clementi New Town
Based on the property criteria, you might be interested on the following
Terraced House For Sale
Nearest MRT Stations
















