Sennett Residence
31 Pheng Geck Avenue
S$ 1,188,000
Negotiable1
Bed
1
Bath
581
sqft (floor)
S$ 2,045
psf (floor)
150 m (2 mins) from NE10 Potong Pasir MRT
About this property
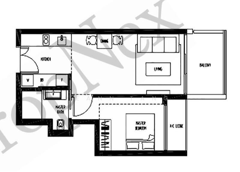
New Unit for Sale
A rare and efficiently designed 581 sqft 1-bedroom unit at The Sennett on Level 4, perfect for singles, couples or investors seeking a stable rental asset in a highly sought-after city-fringe location right next to Potong Pasir MRT.
Unit Highlights
• Spacious layout with good separation between living & bedroom
• Bright and breezy unit with full-height windows
• Generous balcony ideal for alfresco dining or chill-out space
• Well-maintained interior
• Move-in condition
For Investors
• Currently tenanted with healthy rental returns
• Strong rental demand due to immediate MRT access and surrounding amenities
• Start earning rental income from Day 1
Unmatched Convenience
• 1 minute walk to Potong Pasir MRT (NE10)
• Direct access to The Poiz Centre — supermarket, eateries, retail and services
• Near St Andrew’s Village, Cedar Girls, Maris Stella & international schools
• Easy connectivity to CTE/PIE and 10 min to CBD
Full Condo Facilities
• Swimming pools & sky gardens
• Tennis court, gym, clubhouse, BBQ pavilions
• 24-hour security & basement parking
A fantastic choice for both own-stay comfort and investment value in a fast-growing city-fringe neighbourhood.
Amenities
Air-conditioning
Balcony
Water heater
Common facilities
24 hours security
Barbeque pits
Clubhouse
Drop off point
Affordability
Tell us your monthly income and expenses to see if this home fits your budget.
Sennett Residence

Sennett ResidenceLocated in the heart of District 13 Sennett Residence is ideally situated in terms of both access to dining and grocery shopping options in its immediate vicinity, and in its closeness to an MRT. Being a mixed development, those living in Sennett Residence will have the added convenience of retail outlets being located in the development itself. The buildings and units are very well designed and built, and offer buyers a wide range of options when it comes to unit type. The penthouses are all different meaning you will not share the same style home as your neighbour. Sennett Residence boasts a 7th floor Olympic size swimming pool stylishly located on a bridge between two of its towers, overlooking an area dominated by landed property.Tuan Sing Holdings Limited is mainly an investment holding company with interests in multiple industries, particularly in the areas of property development, property investment and hotels investment. Headquartered in Singapore, the Group has over 60 subsidiaries and a portfolio of residential, commercial and industrial properties in Singapore and China.Sennett Residence – Unique Selling PointsSennett Residence is an extremely well designed and thought out development. It has a wide range of units, and a lot of different penthouse options, each unique meaning residents really will have a home like no one else in the development, or indeed on the island. Units are also relatively large compared to its competitors. Location wise, Sennett Residence is also very tough to beat. As well as a good amount of options when it comes to eateries in the vicinity, the development is also right outside the MRT station, affording residents an easy and speedy journey to other parts of the island.Sennett Residence – AccessibilitySennett Residence is located right behind Potong Pasir MRT Station on the North East Line. From there it is 2 stops to Serangoon Interchange, with NEX shopping Mall. 4 stops in the other direction is Dhoby Ghaut which then connects you to the North South Line and hence Orchard Road and the CBD. Sennett Residence is also convenient for buses, with a stop outside the station serving routes to Clementi Interchange, Geylang, Toa Payoh Interchange, Upper East Coast, Hougang and even Resorts World Sentosa.For car owners, the PIE and CTE are easily accessed from Sennett Residence, and from there both Orchard Road and the CBD are a 10 – 15 minute drive away.Sennett Residence - Amenities & AttractionsDining near Sennett Residence:Casuarina Curry RestaurantRiver South Prawn MeeSer Heng Herbs RestaurantTian Wai Tian Fish Head SteamboatShopping near Sennett Residence:NEXSchools and Education near Sennett Residence:St Andrew's Secondary SchoolSt Andrew's Junior SchoolCedar Primary SchoolSennett Residence - Project informationSennett Residence consists of four 19 storey blocks, and houses 332 residential units as well as 3 shops located at the rear of the development. The residential units consist of 1, 2, 3 and 4 bed homes, as well as 2, 3, 4, 5 and 6 bed penthouses, giving options for everyone, no matter the size of their family. A nice design touch that helps Sennett Residence stand out is a bridge on the 7th storey linking two of its towers, and it is there that the Olympic sized swimming pool is located. Even though it is only on the 7th floor, it overlooks largely landed property meaning the view is more pleasing than you at first think.Project Name: Sennett ResidenceAddress: Upper Serangoon RoadType: CondominiumSite area: approx. 93,253.13 sqftTenure: 99-years leaseholdDistrict: 13Configuration: Four 19-storey blocks of 332 units & 3 shopsUnit types:87 x 1BR units (485 – 915 sqft)140 x 2BR units (711 – 1,551 sqft)1 x 2BR + study unit (1,260 sqft)29 x 3BR units (948 – 1,7777 sqft)33 x 3BR + study units (1,195 – 2,358 sqft)31 x 4BR units (1,346 – 2,358 sqft)Penthouses:1 x 2BR + roof terrace unit (2,229 sqft)1 x 3BR + roof terrace unit (2,638 sqft)2 x 4BR + roof terrace units (2,282 / 2,896 sqft)2 x 4BR + study + roof terrace units (3,154 / 3,251 sqft)1 x 5BR + roof terrace unit (3,391 sqft)2 x 5BR + study + roof terrace units (3,391 / 3,445 sqft)2 x 6BR + study + roof terrace units (4,209 / 4,252 sqft)Carpark lots: 284Estimated TOP: 2016Sennett Residence - Historical DataBy the end of May 2016, there had been 299 caveated transactions at Sennett Residence (out of a total number available of 332). The area as a whole has seen good sales in terms of its new developments, but even so, Sennett Residence has been head and shoulders above its competitors. Almost exactly half (150) of those sales were in the $1M to $1.5M range.With regards to the median prices at Sennett Residence, 1 bed units were showing figures of $1,557 psf, 2 bed units of $1,465 psf and 4 bed units of $1,414 psf. The 3 beds come with either a study or without, and the median prices were $1,408 psf and $1,430 psf respectively. The figure for the penthouses is $1,074 psf.Sennett Residence - Related ProjectsThe following projects are by the same developer as Sennett Residence:Seletar Park ResidenceCluny Park ResidencesSennett Residence - Nearby ProjectsThe following developments are in the same neighbourhood as Sennett Residence:The Poiz Residences Sant RitzThe Venue
View project details














