Sembawang Park | Penaga Place
Sembawang Park | Penaga Place
S$ 3,190,000
Negotiable5
Beds
6
Baths
1,898
sqft (land)
S$ 1,681
psf (land)

Photos

Floor Plans
Video
About this property
Inter terrace near sembawang park penaga place
Inter Terrace for Sale at Penaga Place
Great Layout to maximised used of space to provide maximum internal living area
Comes with 5 bedrooms with 4 of them ensuites
Helper’s room available on ground level with WC
There’s Alternative to build an extra room on level 4
Well renovated with high quality finishing
--- More about the Property ---
Spanning across 1,898sqft of land, the developer maximised every inches hence providing est. 4620sqft of internal living area.
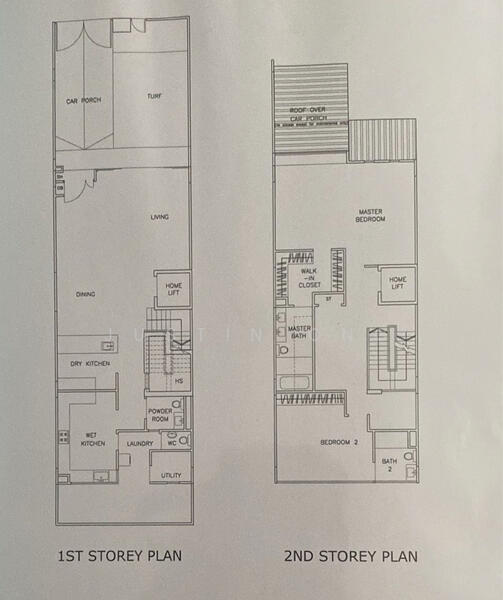
Walking into the unit, you will have a space for 1 car with garden space. One may choose to enter by the 4panels sliding doors or the main wooden door and enjoy the high ceiling spacious living hall and the dining area accompanied with dry kitchen/bar top/island. This unit comes with private lift and the stair well is tucked by the side of the lift over the bomb shelter. A Powder room is available for guest. Wet Kitchen is generous in size for those who loves to cook and host. At the backyard, there's a WC and a helper's room/utility room.
Level 2
· Master bedroom w ensuite
· Bedroom 2 w ensuite
· Study area
· Entertainment area
Level 3
· Master bedroom w ensuite and walk in wardrobe
· Bedroom 4 w ensuite
· Entertainment area
Level 4
· Bedroom 5
· Bathroom
· Family area / extra room
· Sheltered Terrace/Balcony
Genuine Seller
For enquiry and viewing
Call
9*****
Great Layout to maximised used of space to provide maximum internal living area
Comes with 5 bedrooms with 4 of them ensuites
Helper’s room available on ground level with WC
There’s Alternative to build an extra room on level 4
Well renovated with high quality finishing
--- More about the Property ---
Spanning across 1,898sqft of land, the developer maximised every inches hence providing est. 4620sqft of internal living area.
Walking into the unit, you will have a space for 1 car with garden space. One may choose to enter by the 4panels sliding doors or the main wooden door and enjoy the high ceiling spacious living hall and the dining area accompanied with dry kitchen/bar top/island. This unit comes with private lift and the stair well is tucked by the side of the lift over the bomb shelter. A Powder room is available for guest. Wet Kitchen is generous in size for those who loves to cook and host. At the backyard, there's a WC and a helper's room/utility room.
Level 2
· Master bedroom w ensuite
· Bedroom 2 w ensuite
· Study area
· Entertainment area
Level 3
· Master bedroom w ensuite and walk in wardrobe
· Bedroom 4 w ensuite
· Entertainment area
Level 4
· Bedroom 5
· Bathroom
· Family area / extra room
· Sheltered Terrace/Balcony
Genuine Seller
For enquiry and viewing
Call
9*****
Amenities
Air-conditioning
Balcony
Bathtub
Bombshelter
Affordability
Can I afford this property?
Tell us your monthly income and expenses to see if this home fits your budget.
Mortgage breakdown
Est. monthly repayment
S$ 0 / mo
S$ 0 Principal
S$ 0 Interest
Upfront costs
Total downpayment
S$ 0
Downpayment
S$ 0 Loan amount at 0% Loan-to-value
FAQs
The sale price of this unit at Sembawang Park | Penaga Place is S$ 3,190,000.
Current PSF at Sembawang Park | Penaga Place is about S$ 1,680.72 psf.
The estimated loan repayment is S$ 9,354 / mo.
Sembawang Park | Penaga Place is located at Sembawang Park | Penaga Place Sembawang / Yishun .
Floor size of this unit at Sembawang Park | Penaga Place is 4,620 sqft.
Explore other options in and around Sembawang / Yishun
Based on the property criteria, you might be interested on the following
Terraced House For Sale








