Rivelle Tampines
65 Tampines Street 95
S$ 1,438,888
3
Beds
2
Baths
926
sqft (floor)
S$ 1,554
psf (floor)
560 m (7 mins) from DT31 Tampines West MRT
About this property
Brand New Ec! 5min to Tamp West MRT, opp mall, 1km to St. Hilda's Pri!
Why Rivelle Tampines Executive Condominium?
✓ 5 mins' walk to Tampines West MRT (Downtown Line)
✓ Across the road from Pinery Mall (supermarket, eateries, shops)
✓ Within 1km to highly coveted St. Hilda's Primary, Junyuan Primary, St Anthony's Canossian Primary and Tampines Primary
✓ Massive safety net and investment potential of $500k - $900k price gap compared to neighboring private condos
✓ Proven developer track record - Sim Lian known for exceptionally well-designed and profitable ECs
✓ GCB-Inspired Clubhouse, 70 facilities including 8 pools, tennis court and pickleball court! Basement carpark with EV charging too!
✓ Ultimate privacy & exclusivity with only 4 units per floor
✓ Highly efficient & flexible layouts (enquire for full floor plans!)
✓ Premium Finishings provided (e.g. quartz countertops, glass kitchen panel, glass balcony railings, complimentary 2-in-1 washer/dryer)
✓ Last EC launch in the East!
CAUTION!
Buying an Executive Condominium is an 8-year commitment and a highly privileged, 7-figure investment. It is not a "one-size-fits-all" process.
As an EC Specialist, I have personally helped 25 families successfully secure their ECs—whether they are first-timers or HDB BTO upgraders.
When you work with me, you get:
1. Precision Eligibility Checks & Appeals
2. Crystal Clear Financial & Timeline Planning: a customized, step-by-step financial breakdown of exactly how much Cash, CPF, and Loan (including bridging loans for HDB upgraders) you need, and when you need to pay it. Zero financial stress.
3. Strategic Balloting Game Plan: Stack and unit shortlisting, personal monitoring of unit availability.
4. End-to-End Support: Trusted network of EC conveyancing lawyers & mortgage bankers to guide you.
WhatsApp or call me today to schedule a 1-on-1 financial and eligibility assessment before the showflat opens, so you are 100% ready to ballot with confidence!
Elizabeth Mok 9008.8123
ERA Network Realty
✓ 5 mins' walk to Tampines West MRT (Downtown Line)
✓ Across the road from Pinery Mall (supermarket, eateries, shops)
✓ Within 1km to highly coveted St. Hilda's Primary, Junyuan Primary, St Anthony's Canossian Primary and Tampines Primary
✓ Massive safety net and investment potential of $500k - $900k price gap compared to neighboring private condos
✓ Proven developer track record - Sim Lian known for exceptionally well-designed and profitable ECs
✓ GCB-Inspired Clubhouse, 70 facilities including 8 pools, tennis court and pickleball court! Basement carpark with EV charging too!
✓ Ultimate privacy & exclusivity with only 4 units per floor
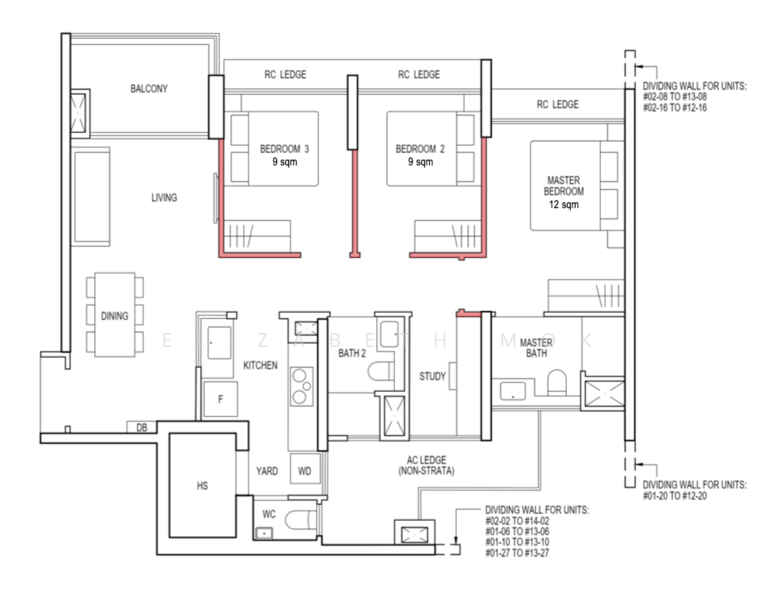
✓ Highly efficient & flexible layouts (enquire for full floor plans!)
✓ Premium Finishings provided (e.g. quartz countertops, glass kitchen panel, glass balcony railings, complimentary 2-in-1 washer/dryer)
✓ Last EC launch in the East!
CAUTION!
Buying an Executive Condominium is an 8-year commitment and a highly privileged, 7-figure investment. It is not a "one-size-fits-all" process.
As an EC Specialist, I have personally helped 25 families successfully secure their ECs—whether they are first-timers or HDB BTO upgraders.
When you work with me, you get:
1. Precision Eligibility Checks & Appeals
2. Crystal Clear Financial & Timeline Planning: a customized, step-by-step financial breakdown of exactly how much Cash, CPF, and Loan (including bridging loans for HDB upgraders) you need, and when you need to pay it. Zero financial stress.
3. Strategic Balloting Game Plan: Stack and unit shortlisting, personal monitoring of unit availability.
4. End-to-End Support: Trusted network of EC conveyancing lawyers & mortgage bankers to guide you.
WhatsApp or call me today to schedule a 1-on-1 financial and eligibility assessment before the showflat opens, so you are 100% ready to ballot with confidence!
Elizabeth Mok 9008.8123
ERA Network Realty
Amenities
Air conditioner
Balcony
Covered car parking
Ev car parking
Common facilities
Car park
Affordability
Can I afford this property?
Tell us your monthly income and expenses to see if this home fits your budget.
Mortgage breakdown
Est. monthly repayment
S$ 0 / mo
S$ 0 Principal
S$ 0 Interest
Upfront costs
Total downpayment
S$ 0
Downpayment
S$ 0 Loan amount at 0% Loan-to-value
Rivelle Tampines
FAQs
The sale price of this unit at Rivelle Tampines is S$ 1,438,888.
Current PSF at Rivelle Tampines is about S$ 1,553.87 psf.
The estimated loan repayment is S$ 4,320 / mo.
Rivelle Tampines is located at 65 Tampines Street 95 Pasir Ris / Tampines Changi / Pasir Ris (D17-18).
Floor size of this unit at Rivelle Tampines is 926 sqft.
Explore other options in and around Pasir Ris / Tampines
Based on the property criteria, you might be interested on the following
Executive Condominium For Sale
Show MoreNearest MRT Stations
























