Quinterra
359 Holland Road
S$ 5,800,000
Negotiable5
Beds
5
Baths
4,532
sqft
S$ 1,279.79
psf
1.6 km (19 mins) from EW22 Dover MRT
About this property
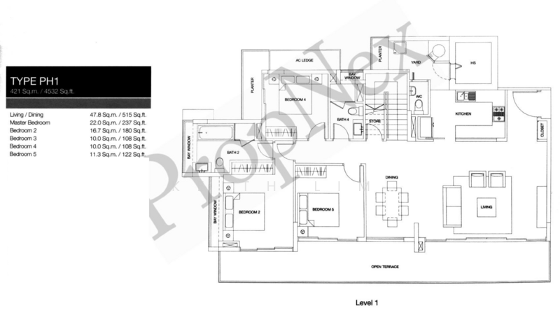
Landed In The Sky With Panoramic Views, Featured On Tatler Homes!
A statement residence in the Holland vicinity, this 4500sqft triplex penthouse at Quinterra combines the scale of a landed home with the prestige of elevated living. Previously featured in Tatler Homes for its timeless design, it offers unmatched lifestyle appeal.
Project Details:
• District 10
• 51 exclusive units only, rare low-density development
• Developed by Ho Bee Land, renowned for luxury projects
• TOP in 2009
Penthouse Highlights:
• Rare triplex penthouse with 5 huge bedrooms & 5 bathrooms
• Expansive 4500 sqft layout - ideal for luxury or multi-generational living
• 6 metres ceiling in living with travertine stone cladding; over 3 metres ceilings in all bedrooms
• Panoramic views of Mount Sinai / Bukit Timah landed enclave - enjoy sunrise, sunset & festive fireworks
• Wet & Dry kitchens with island – perfect for family dining & entertaining
• Third floor entertainment level – “landed in the sky” concept with sweeping terraces
• Master suite expanded with adjoining ensuite room, creating a grand walk-in wardrobe
• Within 1km to Henry Park Primary School – highly sought-after address for families
• Prestigious Holland vicinity – minutes to Dempsey, Orchard & One-North
This is more than a home – it’s a landmark penthouse that offers space, privacy, and prestige in one of Singapore’s most coveted neighbourhoods. Rarely available, and truly irreplaceable.
WE ARE | THE REAL COLLECTIVE |
Real People • Real Estate • Real Results
Over 100 million worth of Real Estate SOLD in the last 9 months! Find out how we can add | REAL | value to your | REAL | Estate
Amenities
Air conditioner
Balcony
City view
Corner unit
Common facilities
24 hours security
Barbeque pits
Clubhouse
Covered car park
Affordability
Tell us your monthly income and expenses to see if this home fits your budget.
Quinterra

Quinterra is located at 359 Holland Road which is in District 10 near Dover MRT Station. This is a condominium project with a nineteen storey building. The tenure of building is 99- years’ leasehold which was completed in year 2007. This building has 55 units. This building is a great work of architecture as well as modern construction. The condo is located at a place where there are a lot of ameneties just around the corner for the facility of people living there. The facility of gymnasium, sun deck, club house and pools are also available in the building. Place is near to many MRT Stations as well as schools. This condominium project is developed by a company named as Ho Bee Land which is well known for its unique and modern construction in Singapore. This company is known for its unique architectural designs, providing all the basic and modern facilities to the residents. Quinterra has a plus point as the developers have provided their residential with a facility of covered car parking with 24-hour security and surveillance. Vehicle owners do not have to be worried at all about the parking of their cars as there will be no issue during harsh weathers also. More than this, wading pool and swimming pool is also inside the building to have relaxing and enjoyable time for children as well as adults. There is a barbeque area and a clubhouse for the residents to enjoy. Therefore, Quinterra provides all the lavish facilities for a modern and comfortable living of the residents. Quinterra is located at a place where there is easy access to access to many MRT Stations. The nearest one is at the walking distance of 10 minutes and it is at a distance of 0.82 kilometers which is EW22 Dover MRT Station. The other two which are CC22 Buona Vista MRT Station and EW21 Buona Vista MRT Station are at a walking distance of 19 minutes that makes a distance of 1.56 kilometers and 20 minutes that is at a distance of about 1.65 kilometers respectively. Quinterra is located in such an area that is surrounded by too many amenities and attractions just at a walking distance. There are a lot of schools in this area which is a huge advantage for families living there so it is easy for them to give pick and drop to their children. Henry Park Primary SchoolDunman High SchoolNexus International SchoolGhimMoh Primary SchoolPat’s Schoolhouse RidgewoodCasabella Mini Mart Quinterra is a 99-years leasehold condominium project. It has 55 units in total. There are two units available for rent; one unit has four bedrooms with attached bathrooms while the other one consists of three bedrooms with attached bathrooms. There are seven units available for sale which varies from two to four bedrooms availability. The square feet area of two bedrooms units is 1,184 square feet while that with three bedrooms is 1,389 – 1,787 square feet. Project Name: QuinterraType:CondominiumTotal Units: 55Types of Units to Buy: 7Types of Units to Rent: 2Year of Completion: 2009District: D09-D10 There are some more interesting projects in the same area as Quinterra:Fernhill CourtFernhill LodgeGarden ApartmentOrange RegencyOrange Grove Residences
View project details
























