PARKTOWN Residence
Tampines Street 62
S$ 2,542,000
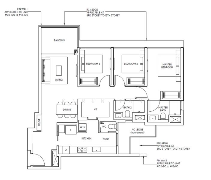
3
Beds
2
Baths
1,066
sqft (floor)
S$ 2,385
psf (floor)
620 m (7 mins) from CR6 Tampines North MRT
About this property
Super convenient. Good floor layout. Sheltered Connection to MRT
Super convenient and close to nature with direct link to Park Connector . Essy cycling to Pasir Ris Beach and other parks
Parktown Residence is a large, integrated development in Tampines North, Singapore, offering a mix of residential, commercial, and community spaces. It is directly linked to the future Tampines North MRT station (Cross Island Line) and an integrated bus interchange.
The development includes a retail mall, a community club, and a hawker centre, aiming to create a self-sufficient urban hub. It's developed by a consortium including UOL Group, CapitaLand, and SingLand.
Full condo facilities that offers a wide array of entertainment , recreational and sport activities for all ages.
PM me for more information and viewing appointment
Karen Tan
Amenities
Balcony
Bedroom cabinets
Cabinets
Covered car parking
Common facilities
24 hours security
Adult fitness stations
Aerobic pool
Aircon facilities
Affordability
Tell us your monthly income and expenses to see if this home fits your budget.
PARKTOWN Residence

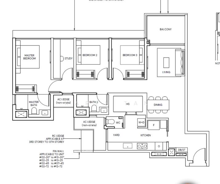
PARKTOWN Residence is a distinguished 99-year leasehold integrated development located at 1 – 23 Tampines St 62 in the highly desirable District 18, Pasir Ris / Tampines, Singapore. This condominium development is brought to life by the esteemed collaboration between UOL, CapitaLand, and Singapore Land Group. PARKTOWN Residence has 1,193 homes with different sizes and layouts.It offers options from one-bedroom + study to spacious five-bedroom premium apartments to suit different needs. This expansive development is further enhanced by commercial spaces, including a retail mall and essential facilities such as a bus interchange, community club, hawker centre, and green boulevard, all designed to provide a comprehensive living experience.PARKTOWN Residence boasts a prime location in Tampines North, offering residents exceptional connectivity to the rest of Singapore. The development is strategically positioned near the Tampines North MRT Station (CR6) on the Cross Island Line, providing direct access to the island's extensive public transport network.Residents also benefit from proximity to major expressways such as the Tampines Expressway (TPE), Pan-Island Expressway (PIE), and Kallang-Paya Lebar Expressway (KPE), ensuring smooth commuting to key destinations including the Central Business District (CBD) and Changi Airport.PARKTOWN Residence has top-notch facilities like swimming pools, fitness clubs, green spaces, and a shopping mall, all designed for a better living experience. Smart Home technology makes it easy to control appliances from anywhere. With its mix of comfort, convenience, and eco-friendly features, it is a great place to call home.PARKTOWN Residence is perfectly positioned for convenience, ensuring accessibility to public transport and major roads. The development is directly linked to Tampines North MRT Station (CR6) on the Cross Island Line and features an integrated Tampines North Bus Interchange for seamless connectivity.For residents who drive, PARKTOWN Residence offers quick access to the Tampines Expressway (TPE), Pan-Island Expressway (PIE), and Kallang-Paya Lebar Expressway (KPE), facilitating smooth commutes to the Central Business District, Changi Airport, and other key locations.The vibrant neighbourhood enhances its appeal with nearby attractions such as Jewel at Changi Airport and shopping centres like Tampines One, Tampines Mall, and Century Square, which have many shops to explore, dining, and entertainment options.PARKTOWN Residence is thoughtfully built with many facilities to suit different lifestyles, making it a comfortable and well-rounded place to live. The development features:Adult Fitness StationsAircon FacilitiesAmphitheatreAqua GymBasement Car ParkBBQ PavilionChanging RoomChildren's PoolCommunity PlazaCo-Working SpaceDance Studio/Yoga RoomDining PavilionFunction RoomGymnasium RoomJogging TrackLap PoolLeisure PoolMultipurpose CourtPavilionPoolside CabanaPoolside LoungePutting GreenSwimming PoolTennis CourtsThese facilities are designed to keep residents relaxed, stay active, and connect with others. They create a peaceful environment where people can enjoy a modern lifestyle while being close to nature.Families residing in PARKTOWN Residence benefit from proximity to several educational institutions, including:Elias Park Primary SchoolAngsana Primary SchoolCavenur KindergartenUnited World CollegePoi Ching SchoolResidents have access to various medical facilities, such as:Guardian Health & Beauty + PharmacyHealthway Medical (Tampines St 71)Healthway Medical (Tampines Central)Northeast Medical Group (Tampines Clinic)Our Family Physician Clinic & SurgeryPARKTOWN Residence is surrounded by a diverse range of culinary delights, including:YAYOI Japanese RestaurantMcDonald's Tampines Green ViewLet's Grill Western Food 610Kiev's Cuisine Mala HotpotChee Wei Vegetarian @ 610Convenience is further enhanced with supermarkets nearby, including:FairPrice Tampines North 633Giant Hypermarket - TampinesKRUSHA STORESSheng Siong SupermarketGood Price HubPARKTOWN Residence occupies a prime site at Tampines Avenue 11 in District 18. The development, spread over a 545,511 sq ft site area, is architecturally distinguished and expected to rise to approximately 30 storeys. The design harmoniously blends urban elegance with natural serenity, showcasing notable architectural elements that enhance the aesthetic appeal. PARKTOWN ResidenceCondominium 1812 121,193 residential units PARKTOWN Residence offers a variety of homes, ranging from one-bedroom + study to five-bedroom premium apartments, catering to different lifestyle needs.PARKTOWN Residence is a UOL, CapitaLand, and Singapore Land Group project. These three developers teamed up to design and build a well-planned living space. Each brings years of experience in creating quality homes. Their combined efforts ensure a modern, comfortable, and convenient lifestyle for residents, making this development a great place to live.The development is thoughtfully planned, offering spacious homes, green spaces, and various amenities. Every detail is designed to make life easier and more enjoyable for residents. From quality construction to smart home features, PARKTOWN Residence provides a comfortable and stylish living environment, making it a great choice for individuals and families looking for a well-rounded home.The developers of PARKTOWN Residence have built many other well-known homes. Here are some of their other notable developments:Avenue South Residence Principal Garden The Clement CanopyThere are many other housing projects around PARKTOWN Residence, making the area lively and well-connected. Some of the nearby projects include:Tampines TrilliantQ Bay ResidencesThe SantoriniPARKTOWN Residence is a great choice for those looking for a modern and convenient home in Singapore. Located in a well-connected area, it offers easy access to transport, shopping, dining, and essential services. The development features a range of facilities, including swimming pools, fitness spaces, and green areas, designed for a comfortable and active lifestyle.With different apartment sizes available, it caters to individuals, couples, and families. Smart home features make life easier, and having schools, medical centres, and supermarkets nearby adds to daily convenience. Whether for living or investment, PARKTOWN Residence offers a blend of comfort, accessibility, and future growth potential, making it a standout option in District 18's vibrant neighbourhood.Visit the PARKTOWN Residence sale page to explore available units today and also units for rental too.
View project details


























