PARKTOWN Residence
Tampines Street 62
S$ 3,200,000
4
Beds
3
Baths
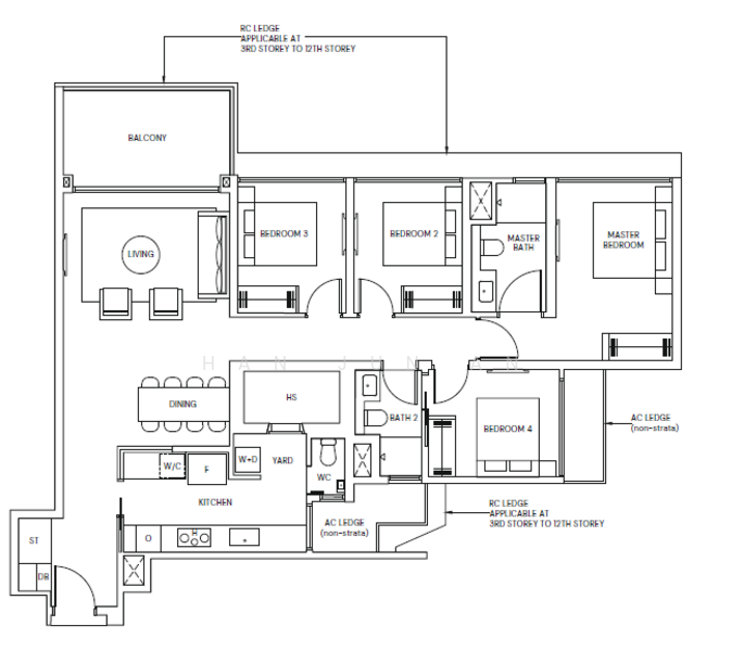
1,335
sqft (floor)
S$ 2,397
psf (floor)
620 m (7 mins) from CR6 Tampines North MRT
About this property
Direct developer sales, Vvip discount
*Preview est Feb 2025, secure your appointment now*
- 1193 Residential Units
12 Blocks Consisting of 1+Study to 5 Bedrooms
Commercial Space - 13,600 Sqm
- Integrated with Retail mall, Covered Plaza, Bus Interchange, Community
Club, Hawker Centre & Direct Connectivity to the upcoming Tampines
North Mrt Station (CRL)
Unit Mix:
1 + Study 463 to 506 sqft - Total 73 Units
2 Bedroom 592 sqft - Total 160 Units
2 Bedroom Premium 678 to 721 sqft - Total 292 Units
2 + Study 764 sqft - Total 134 Units
3 Bedroom 926 to 947 sqft - Total 135 Units
3 Bedroom Premium 1055 to 1076 sqft - Total 158 Units
3 Bedroom Premium + Study 1163 to 1184 sqft - Total 115 Units
4 Bedroom 1335 to 1356 sqft - Total 57 Units
4 Bedroom Premium 1485 to 1496 sqft - Total 47 Units
5 Bedroom 1679 sqft - Total 22 Units
Book your appointment with us today!
Amenities
Air-conditioning
Balcony
Cooker hob/hood
Corner unit
Common facilities
24 hours security
Adult fitness stations
Aerobic pool
Aircon facilities
Affordability
Tell us your monthly income and expenses to see if this home fits your budget.
PARKTOWN Residence
PARKTOWN Residence is a distinguished 99-year leasehold integrated development located at 1 – 23 Tampines St 62 in the highly desirable District 18, Pasir Ris / Tampines, Singapore. This condominium development is brought to life by the esteemed collaboration between UOL, CapitaLand, and Singapore Land Group. PARKTOWN Residence has 1,193 homes with different sizes and layouts.It offers options from one-bedroom + study to spacious five-bedroom premium apartments to suit different needs. This expansive development is further enhanced by commercial spaces, including a retail mall and essential facilities such as a bus interchange, community club, hawker centre, and green boulevard, all designed to provide a comprehensive living experience.PARKTOWN Residence boasts a prime location in Tampines North, offering residents exceptional connectivity to the rest of Singapore. The development is strategically positioned near the Tampines North MRT Station (CR6) on the Cross Island Line, providing direct access to the island's extensive public transport network.Residents also benefit from proximity to major expressways such as the Tampines Expressway (TPE), Pan-Island Expressway (PIE), and Kallang-Paya Lebar Expressway (KPE), ensuring smooth commuting to key destinations including the Central Business District (CBD) and Changi Airport.PARKTOWN Residence has top-notch facilities like swimming pools, fitness clubs, green spaces, and a shopping mall, all designed for a better living experience. Smart Home technology makes it easy to control appliances from anywhere. With its mix of comfort, convenience, and eco-friendly features, it is a great place to call home.PARKTOWN Residence is perfectly positioned for convenience, ensuring accessibility to public transport and major roads. The development is directly linked to Tampines North MRT Station (CR6) on the Cross Island Line and features an integrated Tampines North Bus Interchange for seamless connectivity.For residents who drive, PARKTOWN Residence offers quick access to the Tampines Expressway (TPE), Pan-Island Expressway (PIE), and Kallang-Paya Lebar Expressway (KPE), facilitating smooth commutes to the Central Business District, Changi Airport, and other key locations.The vibrant neighbourhood enhances its appeal with nearby attractions such as Jewel at Changi Airport and shopping centres like Tampines One, Tampines Mall, and Century Square, which have many shops to explore, dining, and entertainment options.PARKTOWN Residence is thoughtfully built with many facilities to suit different lifestyles, making it a comfortable and well-rounded place to live. The development features:Adult Fitness StationsAircon FacilitiesAmphitheatreAqua GymBasement Car ParkBBQ PavilionChanging RoomChildren's PoolCommunity PlazaCo-Working SpaceDance Studio/Yoga RoomDining PavilionFunction RoomGymnasium RoomJogging TrackLap PoolLeisure PoolMultipurpose CourtPavilionPoolside CabanaPoolside LoungePutting GreenSwimming PoolTennis CourtsThese facilities are designed to keep residents relaxed, stay active, and connect with others. They create a peaceful environment where people can enjoy a modern lifestyle while being close to nature.Families residing in PARKTOWN Residence benefit from proximity to several educational institutions, including:Elias Park Primary SchoolAngsana Primary SchoolCavenur KindergartenUnited World CollegePoi Ching SchoolResidents have access to various medical facilities, such as:Guardian Health & Beauty + PharmacyHealthway Medical (Tampines St 71)Healthway Medical (Tampines Central)Northeast Medical Group (Tampines Clinic)Our Family Physician Clinic & SurgeryPARKTOWN Residence is surrounded by a diverse range of culinary delights, including:YAYOI Japanese RestaurantMcDonald's Tampines Green ViewLet's Grill Western Food 610Kiev's Cuisine Mala HotpotChee Wei Vegetarian @ 610Convenience is further enhanced with supermarkets nearby, including:FairPrice Tampines North 633Giant Hypermarket - TampinesKRUSHA STORESSheng Siong SupermarketGood Price HubPARKTOWN Residence occupies a prime site at Tampines Avenue 11 in District 18. The development, spread over a 545,511 sq ft site area, is architecturally distinguished and expected to rise to approximately 30 storeys. The design harmoniously blends urban elegance with natural serenity, showcasing notable architectural elements that enhance the aesthetic appeal. PARKTOWN ResidenceCondominium 1812 121,193 residential units PARKTOWN Residence offers a variety of homes, ranging from one-bedroom + study to five-bedroom premium apartments, catering to different lifestyle needs.PARKTOWN Residence is a UOL, CapitaLand, and Singapore Land Group project. These three developers teamed up to design and build a well-planned living space. Each brings years of experience in creating quality homes. Their combined efforts ensure a modern, comfortable, and convenient lifestyle for residents, making this development a great place to live.The development is thoughtfully planned, offering spacious homes, green spaces, and various amenities. Every detail is designed to make life easier and more enjoyable for residents. From quality construction to smart home features, PARKTOWN Residence provides a comfortable and stylish living environment, making it a great choice for individuals and families looking for a well-rounded home.The developers of PARKTOWN Residence have built many other well-known homes. Here are some of their other notable developments:Avenue South Residence Principal Garden The Clement CanopyThere are many other housing projects around PARKTOWN Residence, making the area lively and well-connected. Some of the nearby projects include:Tampines TrilliantQ Bay ResidencesThe SantoriniPARKTOWN Residence is a great choice for those looking for a modern and convenient home in Singapore. Located in a well-connected area, it offers easy access to transport, shopping, dining, and essential services. The development features a range of facilities, including swimming pools, fitness spaces, and green areas, designed for a comfortable and active lifestyle.With different apartment sizes available, it caters to individuals, couples, and families. Smart home features make life easier, and having schools, medical centres, and supermarkets nearby adds to daily convenience. Whether for living or investment, PARKTOWN Residence offers a blend of comfort, accessibility, and future growth potential, making it a standout option in District 18's vibrant neighbourhood.Visit the PARKTOWN Residence sale page to explore available units today and also units for rental too.
View project details








