Palm Road
Palm Road
S$ 11,180,000
Negotiable7
Beds
9
Baths
4,591
sqft (land)
S$ 2,435
psf (land)
850 m (10 mins) from TE28 Siglap MRT
About this property
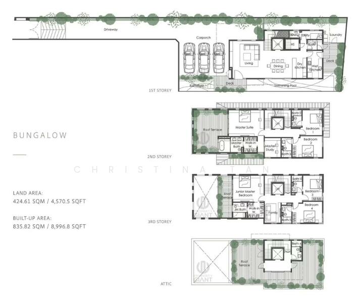
Brand New Pair of 3.5-storey Detached Bungalows with Attic, Pool, Lift
Courtyard @ Palm is a development of four exclusive freehold landed properties comprising of 2 Detached Bungalows and 2 Semi-Detached Houses in District 15, Singapore. Along Upper East Coast Road, the development offers a luxurious living experience enhanced by lush greenery and private pools. The carefully landscaped surroundings create a tranquil environment, while the private pools provide a personal oasis for relaxation, entertainment, and fitness. Together, these features contribute to a sophisticated lifestyle that prioritises comfort, privacy, and enjoyment of natural beauty.
Key Highlights
6 Bedrooms (All with Ensuite Bathrooms)
1 Helper's Room with Attached Bathroom
1 Powder Room with Shower
Wet and Dry Kitchens
Swimming Pool with Decking
Home Lift Serving All Levels
Park at least 3 Cars
Master Bedroom with Walk-in Wardrobe and Master Study Area
Family Area on 3rd Storey
Laundry / Utility / Yard
Roof Terraces
Location
Living near the city while enjoying extensive amenities, scenic natural surroundings, and seaside proximity provides a unique and enriching lifestyle. The blend of convenient transportation, urban convenience, and peaceful natural beauty fosters an ideal environment for relaxation, adventure, and a strong sense of community.
Stroll or take a short ride to East Coast Park, where the horizon kisses the sea. Spend a day basking in the sun for a golden tan or refreshing your body, mind, and soul with a dip in the water.
For an adrenaline rush, head to the nearest country clubs like Laguna National Golf & Country Club and Tanah Merah Country Club for an invigorating 18-hole morning spree just a short drive away.
Schools Near to Courtyard at Palm Road
Within 1km:
Opera Estate Primary School
Within 2km:
Bedok Green Primary School
Fengshan Primary School
Ngee Ann Primary School
St. Stephen's School
Temasek Junior College
Please Call/ WhatsApp Me for an Exclusive Tour of these Beautiful Homes:
Christina Tan
+6*****
SRI Pte Ltd
Key Highlights
6 Bedrooms (All with Ensuite Bathrooms)
1 Helper's Room with Attached Bathroom
1 Powder Room with Shower
Wet and Dry Kitchens
Swimming Pool with Decking
Home Lift Serving All Levels
Park at least 3 Cars
Master Bedroom with Walk-in Wardrobe and Master Study Area
Family Area on 3rd Storey
Laundry / Utility / Yard
Roof Terraces
Location
Living near the city while enjoying extensive amenities, scenic natural surroundings, and seaside proximity provides a unique and enriching lifestyle. The blend of convenient transportation, urban convenience, and peaceful natural beauty fosters an ideal environment for relaxation, adventure, and a strong sense of community.
Stroll or take a short ride to East Coast Park, where the horizon kisses the sea. Spend a day basking in the sun for a golden tan or refreshing your body, mind, and soul with a dip in the water.
For an adrenaline rush, head to the nearest country clubs like Laguna National Golf & Country Club and Tanah Merah Country Club for an invigorating 18-hole morning spree just a short drive away.
Schools Near to Courtyard at Palm Road
Within 1km:
Opera Estate Primary School
Within 2km:
Bedok Green Primary School
Fengshan Primary School
Ngee Ann Primary School
St. Stephen's School
Temasek Junior College
Please Call/ WhatsApp Me for an Exclusive Tour of these Beautiful Homes:
Christina Tan
+6*****
SRI Pte Ltd
Affordability
Can I afford this property?
Tell us your monthly income and expenses to see if this home fits your budget.
Mortgage breakdown
Est. monthly repayment
S$ 0 / mo
S$ 0 Principal
S$ 0 Interest
Upfront costs
Total downpayment
S$ 0
Downpayment
S$ 0 Loan amount at 0% Loan-to-value
FAQs
The sale price of this unit at Palm Road is S$ 11,180,000.
Current PSF at Palm Road is about S$ 2,435.20 psf.
The estimated loan repayment is S$ 32,783 / mo.
Palm Road is located at Palm Road East Coast / Marine Parade East Coast (D15-16).
Floor size of this unit at Palm Road is 8,996 sqft.
Explore other options in and around East Coast / Marine Parade
Based on the property criteria, you might be interested on the following
Detached House For Sale
Nearest MRT Stations

















