One Marina Gardens
3 Marina Gardens Lane
S$ 2,521,400
3
Beds
2
Baths
904
sqft
S$ 2,789
psf
190 m (2 mins) from TE21 Marina South MRT
About this property
Prime Marina Bay, Direct MRT, Growth Plans, Sea View, City Central
Direct Developer Sales !!
Prime Location, Attractive Price !!
Undervalued Gem owning a Prime Asset in City Center Marina District !!
- Spacious Layout plans
- Direct Door Step MRT
- Seaview, MBS View
- 1st Mover Advantage
- Awesome GWS Planning
Units to choose from
2Bedroom From - S$1.8x mil
3Bedroom From - S$2.5x mil
4Bedroom From - S$4.7x mil
Contact Developer Appointment Agency
Huttons Asia Pte Ltd
- Showflats Appointment
- Virtual Tour / Door-Step Discussion
Ray Chua
9*****
Amenities
Air conditioner
Balcony
Bedroom cabinets
Cabinets
Common facilities
Car park
Affordability
Tell us your monthly income and expenses to see if this home fits your budget.
One Marina Gardens

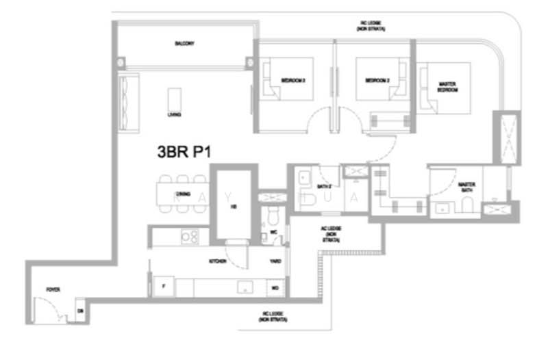
One Marina Gardens, a 99-year leasehold development at 1, 3, 5 Marina Gardens Lane, Singapore 018916, occupies a prominent spot within the Boat Quay / Raffles Place / Marina area of District 01. Developed by Kingsford Development Private Limited (Ltd), this apartment project contains 937 residential units. Options extend from one to four-bedroom apartments, accommodating a wide range of lifestyles and residential preferences. Each unit design emphasises functionality, natural light, and modern finishes, creating spaces that balance style with comfort. The development's overall planning integrates both residential needs and lifestyle amenities, resulting in a harmonious blend of luxury living and urban convenience. Completion of the entire development is expected in 2029. A waterfront setting in the Marina South precinct creates a distinctive advantage for One Marina Gardens. Connections extend towards iconic destinations such as Marina Bay Sands, Gardens by the Bay, and the Central Business District (CBD). Integration with the Marina South precinct introduces a sustainable, car-lite neighbourhood designed with mixed-use features. Green spaces, shaded pedestrian-friendly walkways, and underground links to Mass Rapid Transit (MRT) stations form part of this urban plan. Facilities elevate the residential experience through a 50-metre infinity pool, landscaped sky gardens, and advanced Smart Home installations. Combining convenience, contemporary luxury, and environmentally conscious features, One Marina Gardens establishes a benchmark for high-quality urban living. The location benefits from immediate connections to multiple Mass Rapid Transit (MRT) stations, providing residents with efficient travel across Singapore. Major expressways and arterial routes further enhance connectivity, while surrounding amenities, including shopping, dining, and cultural attractions, add everyday convenience. Direct MRT access includes: Marina South MRT Station (NS28) Marina Bay MRT Station (TE20) Raffles Place MRT Station (NS26 / EW14) For motorists, proximity to the Marina Coastal Expressway (MCE) ensures a smooth passage to prime city locations, including the Central Business District (CBD), within a travel time of five to ten minutes. Nearby attractions such as Gardens by the Bay and the Marina Bay waterfront promenade further add vibrancy to the locale. The design features at One Marina Gardens create a holistic living experience. The development offers amenities that promote rest, leisure, and play, as well as opportunities for socialising and gathering with others. It includes an extensive range of landscaped spaces and lifestyle zones to cater for both active and relaxed activities. Residents can enjoy thoughtfully designed amenities that strike a balance between comfort, convenience, and sophistication, enhancing their day-to-day living. Swimming Pool Pool Deck Playground Grand Lawn Spa Seat Party Deck Meditation Lawn Childcare Centre Function Room Sustainable features complement the overall design, reflecting the wider Marina South precinct's car-lite and walkable neighbourhood planning. Residents gain access to ample greenery and interconnected pedestrian spaces, striking a balance between urban sophistication and natural elements. Several learning centres and institutions surround One Marina Gardens, supporting family-oriented lifestyles. Schools include: EtonHouse Garden School by the Bay Josiah Montessori (Raffles Place) MindChamps PreSchool at One Raffles Place Culinary choices surrounding the development encompass a diverse range of cuisines and experiences. Nearby establishments in the vicinity include: The Spot: Singapore Yardbird Southern Table and Bar RISE Healthcare facilities within easy reach of One Marina Gardens offer convenience for residents who require medical support. Available options include: Raffles Medical Marina Bay Financial Centre (MBFC) Healthway Medical (Downtown Gallery) Fullerton Health Marina Bay Financial Centre (MBFC) Daily conveniences remain accessible with multiple supermarkets in proximity. Choices include: Cold Storage: Marina One Jasons Deli Marina Bay Sands Jasons Deli Marina Bay Link Mall One Marina Gardens' site plan depicts its alignment along Marina Gardens Lane in the Boat Quay / Raffles Place / Marina precinct. It proposes the construction of two towers, approximately 44 storeys tall. The buildings' architecture features elegant glass facades, which provide a balance with the surrounding natural landscape. The view over Marina Bay and the city skyline further accentuates the quality of the location. One Marina Gardens Apartment 01 937 residential units 44 Two One Bedroom: 420 to 452 sq ft Two Bedroom: 646 to 667 sq ft Two Bedroom plus Study: 678 sq ft Two Bedroom plus Household Shelter: 689 to 732 sq ft Three Bedroom: 904 to 1,012 sq ft Three Bedroom Dual Key: 969 sq ft Three Bedroom Premium: 1,066 to 1,238 sq ft Four Bedroom Premium: 1,647 sq ft Kingsford Development Private Limited (Ltd) has a reputation for delivering excellent residential and commercial projects. Kudos for Status comes from their attention to design, construction standards, and customer-focused objectives. The developer's ability to consistently merge modern architecture with functional principles is one reason why you can feel good about this project and its other developments in Singapore's highly ranked property developments. Other projects by Kingsford Development Private Limited (Ltd) include: Kingsford Hillview Peak Kingsford Waterbay Normanton Park Developments in the surrounding Marina Bay and Central Business District (CBD) region include: Eon Shenton Marina Bay Residences The Sail @ Marina Bay One Marina Gardens presents an exceptional opportunity, thanks to its enviable location, lifestyle-oriented amenities, and access to Singapore's extensive transport and road network. The developer's history of sustainable neighbourhood development and local experience solidifies this residential development as a desirable prospect within District 01. These qualities, including dwelling with waterfront views, design sophistication, and access to landmarks, provide a living experience that marries tranquillity with urban endeavour. The internal unit layouts reflect the comfort and functionality of the dwelling space, while mixed-use developments, which enhance local amenities, promote a sense of community. The existing local amenities, including dining, shopping, and recreation, make this area a compelling choice, ensuring that accessibility is a priority in every dimension. Visit the One Marina Gardens sale page to explore opportunities in this landmark development.
View project details












